Рейтинг@Mail.ru
Переверните экран
Новостройки Квартиры Ипотека Новостройки Москвы Новостройки Подмосковья Новостройки Новой Москвы Готовые новостройки Новостройки на карте Акции от застройщиков Коммерческие помещения Продавцы и застройщики Панорамы новостроек Видеообзор новостроек Экспертиза новостроек Экология Москвы и Подмосковья Студии 1-комнатные 2-комнатные 3-комнатные Квартиры на карте Ипотечный калькулятор Семейная ипотека Военная ипотека Банки и программы Медиа Новости недвижимости Мнение эксперта Аналитика рынка Покупателю Экспертиза новостроек Эксперты и авторы О проекте Контакты Реклама на сайте Vk Youtube Telegram Дзен Машиноместа Апартаменты #траншевая ипотека #рассрочка ИТ-ипотека Квартиры со скидками до 40% Видео 360° новостроек Субсидированная застройщиком Rutube Поиск дома в Москве Программа реновации в Москве Новостройки премиум-класса Новостройки бизнес-класса Рассрочка Траншевая ипотека Дома и коттеджи Бизнес-центры Бизнес-центры в Москве Бизнес-центры рядом с метро Строящиеся бизнес-центры Бизнес-центры класса A Бизнес-центры класса B Ипотека со ставкой 0,1%
Данная квартира является лидером продаж среди двухкомнатных квартир в ЖК «СЕТ» по данным Росреестра
Данное предложение на 04.04.2026 неактуально. Пожалуйста, ознакомьтесь с другими похожими предложениями в ЖК «СЕТ» .
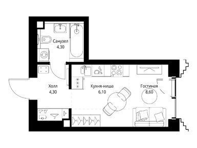
2-комн. квартира, 81.72 м2, 4 этаж
Срок сдачи 3 квартал 2028 года
39 246 030 
46 171 800
480 250 2
обновлено 6 марта

Описание 2-комн. квартиры

Новостройка
Застройщик
Срок ГК
3 квартал 2028 года
Стадия строительства
монтаж верхних этажей
Общая площадь
81.72 м2
Жилая площадь
29.27 м2
Площадь кухни
30.46 м2
Этаж
4 / 5
Отделка
нет

Расположение 2-комн. квартиры

Локация
Станция МЦД
Дом
Д
Адрес
ул. Верейская, вл. 29, стр. 32Б, корп. Д, секция 1

Способы покупки

Особенности

Продается двухкомнатная квартира в новостройке ЖК «СЕТ» по адресу Москва, ЗАО, Можайский, ул. Верейская, вл. 29, стр. 32Б, корп. Д. Общая площадь квартиры - 81.72 кв. м. Тип проекта, по которому построен дом — Монолитно-кирпичный, компания-застройщик — MR Group (МР Групп). Стоимость квартиры — 39 246 030 руб. Способы оплаты можно уточнить у продавца. Срок сдачи — 3 квартал 2028. Более подробная информация по телефону.
Инфоцентр новостроек
Инфоцентр новостроек
+7 (499) 705-91-41
Время работы 9:00 — 21:00
Этаж 22/45
Москва, ЖК «СЕТ»
Давыдково
22 мин.
Строится
Этаж 19/45
Москва, ЖК «СЕТ»
Давыдково
22 мин.
Строится
Этаж 31/45
Москва, ЖК «СЕТ»
Давыдково
22 мин.
Строится
Этаж 4/59
Москва, ЖК «СЕТ»
Давыдково
22 мин.
Строится
Посмотреть 61 квартира в ЖК «СЕТ»
Этаж 12/59
Москва, ЖК «СЕТ»
Давыдково
22 мин.
Строится
Этаж 12/59
Москва, ЖК «СЕТ»
Давыдково
22 мин.
Строится
Этаж 57/59
Москва, ЖК «СЕТ»
Давыдково
22 мин.
Строится
Этаж 57/59
Москва, ЖК «СЕТ»
Давыдково
22 мин.
Строится
Посмотреть 262 квартиры в ЖК «СЕТ»
Этаж 28/52
Москва, ЖК «СЕТ»
Давыдково
22 мин.
Строится
Этаж 37/52
Москва, ЖК «СЕТ»
Давыдково
22 мин.
Строится
Этаж 49/52
Москва, ЖК «СЕТ»
Давыдково
22 мин.
Строится
Этаж 49/52
Москва, ЖК «СЕТ»
Давыдково
22 мин.
Строится
Посмотреть 223 квартиры в ЖК «СЕТ»
Этаж 28/52
Москва, ЖК «СЕТ»
Давыдково
22 мин.
Строится
Этаж 22/45
Москва, ЖК «СЕТ»
Давыдково
22 мин.
Строится
Этаж 19/52
Москва, ЖК «СЕТ»
Давыдково
22 мин.
Строится
Этаж 34/45
Москва, ЖК «СЕТ»
Давыдково
22 мин.
Строится
Посмотреть 66 квартир в ЖК «СЕТ»
4-комн. квартира 97,41 м2 47 691 936
Этаж 48/59
Москва, ЖК «СЕТ»
Давыдково
22 мин.
Строится
4-комн. квартира 102,56 м2 49 080 088
Этаж 48/59
Москва, ЖК «СЕТ»
Давыдково
22 мин.
Строится
4-комн. квартира 109,63 м2 51 717 953
Этаж 4/5
Москва, ЖК «СЕТ»
Давыдково
22 мин.
Строится
4-комн. квартира 112,22 м2 53 416 720
Этаж 2/28
Москва, ЖК «СЕТ»
Давыдково
22 мин.
Строится
Посмотреть 6 квартир в ЖК «СЕТ»
Этаж 53/59
Москва, ЖК «СЕТ»
Давыдково
22 мин.
Строится

Скидки и спецпредложения от застройщиков

ЖК «СЕТ» на карте

Выгодные предложения на новостройки

Отзывы о ЖК «СЕТ»

Самый полезный отзыв
КР
20 ноября 2024
Оценка:
Достоинства
Социальная инфраструктура
Внешний вид фасада
Двор, окружение
Расположение
Жилой квартал состоит из трех корпусов, каждый из которых выполнен в своем стиле. Вроде как будут смотровые площадки, с которых панорама района предстанет как на ладони. Проектом предусмотрена своя инфраструктура - Фитнес-клуб с бассейном, детская школа искусств, школа и детский сад, центр культуры и досуга, медицинский центр, кафе и рестораны, мини-маркет
Ответить
Самый новый отзыв
ДМ
06 марта
Оценка:
Достоинства
Планировки
Способы покупки
Для меня бизнес-класс всегда означает больше удобства. Но ещё не определилась, готова ли платить такую цену за расположение.
Ответить

Оставить отзыв

Добавьте отзыв, заполнив личные данные, или сначала войдите на сайт, тогда информация будет автоматически взята из личного профиля.
Оценка*