Рейтинг@Mail.ru
Переверните экран
Новостройки Квартиры Ипотека Новостройки Москвы Новостройки Подмосковья Новостройки Новой Москвы Готовые новостройки Новостройки на карте Акции от застройщиков Коммерческие помещения Продавцы и застройщики Панорамы новостроек Видеообзор новостроек Экспертиза новостроек Экология Москвы и Подмосковья Студии 1-комнатные 2-комнатные 3-комнатные Квартиры на карте Ипотечный калькулятор Семейная ипотека Военная ипотека Банки и программы Медиа Новости недвижимости Мнение эксперта Аналитика рынка Покупателю Экспертиза новостроек Эксперты и авторы О проекте Контакты Реклама на сайте Vk Youtube Telegram Дзен Машиноместа Апартаменты #траншевая ипотека #рассрочка IT-ипотека Квартиры со скидками до 40% Видео 360° новостроек Субсидированная застройщиком Rutube Поиск дома в Москве Программа реновации в Москве Новостройки премиум-класса Новостройки бизнес-класса Рассрочка Траншевая ипотека Дома и коттеджи Бизнес-центры Бизнес-центры в Москве Бизнес-центры рядом с метро Строящиеся бизнес-центры Бизнес-центры класса A Бизнес-центры класса B
Данная квартира является лидером продаж среди двухкомнатных квартир в ЖК «Одинград» по данным Росреестра
2-комн. квартира, 50.60 м2, 20 этаж
Сдан
14 450 000 
285 573 2
обновлено 2 февраля

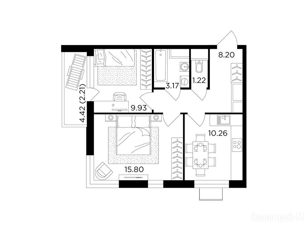
Описание 2-комн. квартиры

Новостройка
Застройщик
Срок ГК
Дом сдан
Стадия строительства
Тип проекта
Общая площадь
50.60 м2
Жилая площадь
48.40 м2
Площадь кухни
10.26 м2
Этаж
20 / 24
Отделка
нет
Грузовой лифт
есть

Расположение 2-комн. квартиры

Метро
Станция МЦД
Ж/Д-станция
Дом
10
Адрес
микрорайон Клубничное Поле, 10, секция 1

Способы покупки

Особенности

Продается двухкомнатная квартира в новостройке ЖК «Одинград» по адресу Московская область, Одинцовский район, Одинцово, микрорайон Клубничное Поле, 10. Общая площадь квартиры - 50.6 кв. м. Тип проекта, по которому построен дом — Монолит, компания-застройщик — Группа компаний «Вектор», ООО «Просторная долина». Стоимость квартиры — 14 450 000 руб. Способы оплаты можно уточнить у продавца. Более подробная информация по телефону.

Правовые документы

Инфоцентр новостроек
Инфоцентр новостроек
Время работы 9:00 — 21:00
Выбирайте квартиру в ЖК «Одинград» по ценам от застройщика Группы компаний «Вектор» 
Посмотреть все спецпредложения
Этаж 6/24
МО, ЖК «Одинград»
Одинцово
13 мин.
Сдан
студия 21,70 м2 8 376 000
Этаж 8/23
МО, ЖК «Одинград»
Одинцово
13 мин.
Строится
Этаж 19/23
МО, ЖК «Одинград»
Одинцово
13 мин.
Строится
студия 22,02 м2 6 798 000
Этаж 13/23
МО, ЖК «Одинград»
Одинцово
13 мин.
Строится
Посмотреть 20 квартир в ЖК «Одинград»
1-комн. квартира 34,41 м2 10 224 000
Этаж 19/23
МО, ЖК «Одинград»
Одинцово
13 мин.
Строится
1-комн. квартира 34,89 м2 8 655 000
Этаж 13/23
МО, ЖК «Одинград»
Одинцово
13 мин.
Строится
1-комн. квартира 34,90 м2 9 970 000
Этаж 22/24
МО, ЖК «Одинград»
Одинцово
13 мин.
Сдан
1-комн. квартира 35,10 м2 9 927 500
Этаж 24/24
МО, ЖК «Одинград»
Одинцово
13 мин.
Сдан
Посмотреть 78 квартир в ЖК «Одинград»
2-комн. квартира 37,40 м2 10 250 000
Этаж 12/24
МО, ЖК «Одинград»
Одинцово
13 мин.
Сдан
2-комн. квартира 42,60 м2 10 592 500
Этаж 20/24
МО, ЖК «Одинград»
Одинцово
13 мин.
Сдан
2-комн. квартира 46,28 м2 14 135 000
Этаж 20/23
МО, ЖК «Одинград»
Одинцово
13 мин.
Строится
2-комн. квартира 50,80 м2 14 340 000
Этаж 21/24
МО, ЖК «Одинград»
Одинцово
13 мин.
Сдан
Посмотреть 21 квартира в ЖК «Одинград»
3-комн. квартира 78,59 м2 18 165 000
Этаж 11/23
МО, ЖК «Одинград»
Одинцово
13 мин.
Строится
3-комн. квартира 78,63 м2 17 847 000
Этаж 16/23
МО, ЖК «Одинград»
Одинцово
13 мин.
Строится
3-комн. квартира 78,83 м2 18 549 000
Этаж 23/23
МО, ЖК «Одинград»
Одинцово
13 мин.
Строится
3-комн. квартира 78,85 м2 17 486 000
Этаж 21/23
МО, ЖК «Одинград»
Одинцово
13 мин.
Строится
Посмотреть 5 квартир в ЖК «Одинград»
4-комн. квартира 92,17 м2 20 357 000
Этаж 22/23
МО, ЖК «Одинград»
Одинцово
13 мин.
Строится
Этаж 17/23
МО, ЖК «Одинград»
Одинцово
13 мин.
Строится
4-комн. квартира 114,00 м2 25 251 000
Этаж 24/24
МО, ЖК «Одинград»
Одинцово
13 мин.
Сдан

Скидки и спецпредложения от застройщиков

ЖК «Одинград» на карте

Выгодные предложения на новостройки

Самый полезный отзыв
П
16 марта 2019
Оценка:
Транспортная доступность
Экология
Планировки
Скорость строительства
Ух ты, вот это проектище, прямо так глобально взялись застраивать Одинцово, 11 домов-высоток. Виды там конечно будут шикарные, вокруг много зелени, только не пойму, где точно пятно застройки на карте. Застройщик надежный, смотри-ка как развернулись!
Ответить
Полезный отзыв?
Самый новый отзыв
ЗК
16 января
Оценка:
Довольно спокойный и уютный район с развитой инфраструктурой с большим двором-парком. В пользу Одинграда, что дома монолитные и квартиры комфорт-класса с удобной планировкой. Дома в комплексе этажностью до 25 этажей, смотрятся не как безликие коробки, а интересно за счет деталей. Купили 2шку почти 57 квадратов на 3 этаже. Цена за кв. метр почти 254тыс. Считаю, что нормальная, даже немного ниже чем в целом в новых ЖК в Подмосковье. Ну по крайней мере на тот момент, когда мы покупали. Школа и садики во дворе. До Москвы ходит общественный транспорт. Самый удобный вариант по МЦД 1 от Одинцово. Правда до самой станции минут 15 шагом, что в общем то не проблема. В ЖК хорошие условия и атмосфера для семей с детьми, такой как наша.
Ответить
Полезный отзыв?
Добавьте отзыв, заполнив личные данные, или сначала войдите на сайт, тогда информация будет автоматически взята из личного профиля.
Оценка*