Рейтинг@Mail.ru
Переверните экран
Новостройки Квартиры Ипотека Новостройки Москвы Новостройки Подмосковья Новостройки Новой Москвы Готовые новостройки Новостройки на карте Акции от застройщиков Коммерческие помещения Продавцы и застройщики Панорамы новостроек Видеообзор новостроек Экспертиза новостроек Экология Москвы и Подмосковья Студии 1-комнатные 2-комнатные 3-комнатные Квартиры на карте Ипотечный калькулятор Семейная ипотека Военная ипотека Банки и программы Медиа Новости недвижимости Мнение эксперта Аналитика рынка Покупателю Экспертиза новостроек Эксперты и авторы О проекте Контакты Реклама на сайте Vk Youtube Telegram Дзен Машиноместа Апартаменты #траншевая ипотека #рассрочка ИТ-ипотека Квартиры со скидками до 40% Видео 360° новостроек Субсидированная застройщиком Rutube Поиск дома в Москве Программа реновации в Москве Новостройки премиум-класса Новостройки бизнес-класса Рассрочка Траншевая ипотека Дома и коттеджи Бизнес-центры Бизнес-центры в Москве Бизнес-центры рядом с метро Строящиеся бизнес-центры Бизнес-центры класса A Бизнес-центры класса B Ипотека со ставкой 0,1%
Данное предложение на 03.04.2026 неактуально. Пожалуйста, ознакомьтесь с другими похожими предложениями в ЖК «Новая Рига» .
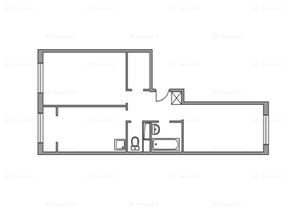
2-комн. квартира, 54.49 м2, 2 этаж
Сдан
10 334 097 
189 651 2
обновлено 14 января

Описание 2-комн. квартиры

Новостройка
Срок ГК
Дом сдан
Стадия строительства
Общая площадь
54.49 м2
Жилая площадь
28.94 м2
Площадь кухни
10.64 м2
Этаж
2 / 5
Балкон
лоджия
Отделка
нет

Расположение 2-комн. квартиры

Метро
Станция МЦД
Дом
1.3
Адрес
дер. Глухово, ЖК «Новая Рига», секция 11

Особенности

Продается двухкомнатная квартира в новостройке ЖК «Новая Рига» по адресу Московская область, Красногорск городской округ, Ильинское С/П, Глухово деревня, дер. Глухово, ЖК «Новая Рига». Общая площадь квартиры - 54.49 кв. м. Тип проекта, по которому построен дом — Панельный,Блочный, компания-застройщик — ООО «СЗ «Гранель-П», ГК «Гранель». Стоимость квартиры — 10 334 097 руб. Способы оплаты можно уточнить у продавца. Более подробная информация по телефону.
Инфоцентр новостроек
Инфоцентр новостроек
+7 (499) 705-91-41
Время работы 9:00 — 21:00

Еще квартиры в ЖК «Новая Рига»

3-комн. квартира 69,26 м2 13 135 247
Этаж 2/5 лоджия
МО, ЖК «Новая Рига»
Строгино
22 мин.
Сдан

Скидки и спецпредложения от застройщиков

ЖК «Новая Рига» на карте

Выгодные предложения на новостройки

Отзывы о ЖК «Новая Рига»

Самый полезный отзыв
П
22 мая 2019
Оценка:
Достоинства
Расположение
Ох и местечко Гранель выбрала на этот раз. Тут реально за одну только локацию можно влюбиться в жк!
Ответить
Самый новый отзыв
АА
19 ноября 2025
Оценка:
Достоинства
Экология
Недостатки
Готовность
Скорость строительства
Подземный паркинг
Двор, окружение
По ДДУ срок сдачи ЗО сентября 2025 г. Пришел срок сдачи квартиры, тишина. Звоним, говорят середина ноября, приняли ситуацию... Звоним в конце октября, говорят готовы передать в декабре.. т.е ни офиц уведомления о том, что не успевают, ни звонка... Очень разочаровал Застройщик.. А так же говорят тонкие стены, хорошая слышимость... А ещё жутчайшие пробки после Главкино... за год ситуация сильно изменилась... в пробках по часу, а то и больше стоишь....
Ответить

Оставить отзыв

Добавьте отзыв, заполнив личные данные, или сначала войдите на сайт, тогда информация будет автоматически взята из личного профиля.
Оценка*