Рейтинг@Mail.ru
Переверните экран
Новостройки Квартиры Ипотека Новостройки Москвы Новостройки Подмосковья Новостройки Новой Москвы Готовые новостройки Новостройки на карте Акции от застройщиков Коммерческие помещения Продавцы и застройщики Панорамы новостроек Видеообзор новостроек Экспертиза новостроек Экология Москвы и Подмосковья Студии 1-комнатные 2-комнатные 3-комнатные Квартиры на карте Ипотечный калькулятор Семейная ипотека Военная ипотека Банки и программы Медиа Новости недвижимости Мнение эксперта Аналитика рынка Покупателю Экспертиза новостроек Эксперты и авторы О проекте Контакты Реклама на сайте Vk Youtube Telegram Дзен Машиноместа Апартаменты #траншевая ипотека #рассрочка ИТ-ипотека Квартиры со скидками до 40% Видео 360° новостроек Субсидированная застройщиком Rutube Поиск дома в Москве Программа реновации в Москве Новостройки премиум-класса Новостройки бизнес-класса Рассрочка Траншевая ипотека Дома и коттеджи Бизнес-центры Бизнес-центры в Москве Бизнес-центры рядом с метро Строящиеся бизнес-центры Бизнес-центры класса A Бизнес-центры класса B Ипотека со ставкой 0,1%
Данная квартира является лидером продаж среди двухкомнатных квартир в ЖК«Новая Ивантеевка» по данным Росреестра
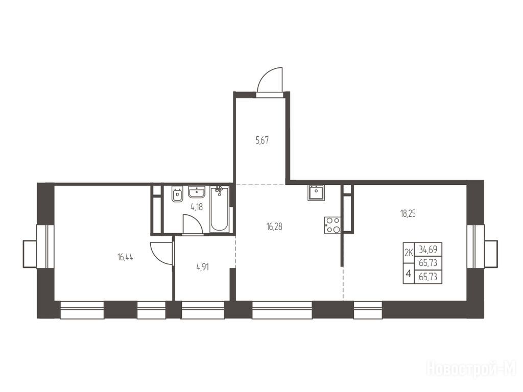
2-комн. квартира, 65.70 м2, 4 этаж
Срок сдачи 4 квартал 2026 года
10 740 282 
163 475 2
обновлено 12 марта

Описание 2-комн. квартиры

Срок ГК
4 квартал 2026 года
Стадия строительства
монтаж верхних этажей
Общая площадь
65.70 м2
Этаж
4 / 12
Грузовой лифт
есть

Расположение 2-комн. квартиры

Станция МЦК
Ж/Д-станция
Дом
2 очередь Секция 2,3 подъезд 2
Адрес
ул. Заводская, 2 очередь, секция 2, 3, подъезд 2, секция 2

Способы покупки

Особенности

Продается двухкомнатная квартира в новостройке ЖК «Новая Ивантеевка» по адресу Московская область, Ивантеевка городской округ, Ивантеевка, ул. Заводская, 2 очередь, секция 2, 3, подъезд 2. Общая площадь квартиры - 65.7 кв. м. Тип проекта, по которому построен дом — Монолитно-кирпичный, компания-застройщик — Профи-Инвест, ООО СЗ Заводская-1. Стоимость квартиры — 10 740 282 руб. Способы оплаты можно уточнить у продавца. Срок сдачи — 4 квартал 2026. Более подробная информация по телефону.

Правовые документы

Профи-Инвест
Профи-Инвест
Сданных 9
|
Строящихся 7
Время работы 10:00 — 20:00
Выбирайте квартиру в ЖК «Новая Ивантеевка» по ценам от застройщика

Похожие квартиры в ЖК«Новая Ивантеевка»

2 этаж
из 12 4 квартал 2026
Московская область, Ивантеевка городской округ
Ростокино
33 мин.
2 очередь Секция 2,3 подъезд 2
Корпус
нет данных
Отделка
2.74 м
Потолки
ЖК «Новая Ивантеевка»
10 602 906
СберБанк
3.50%
Ставка
20.00%
Первый взнос
от 47 612 /мес.
Все варианты
3 этаж
из 12 4 квартал 2026
Московская область, Ивантеевка городской округ
Ростокино
33 мин.
2 очередь Секция 2,3 подъезд 2
Корпус
нет данных
Отделка
2.74 м
Потолки
ЖК «Новая Ивантеевка»
10 671 594
СберБанк
3.50%
Ставка
20.00%
Первый взнос
от 47 920 /мес.
Все варианты
5 этаж
из 12 4 квартал 2026
Московская область, Ивантеевка городской округ
Ростокино
33 мин.
2 очередь Секция 2,3 подъезд 2
Корпус
нет данных
Отделка
2.74 м
Потолки
ЖК «Новая Ивантеевка»
10 808 969
СберБанк
3.50%
Ставка
20.00%
Первый взнос
от 48 537 /мес.
Все варианты
6 этаж
из 12 4 квартал 2026
Московская область, Ивантеевка городской округ
Ростокино
33 мин.
2 очередь Секция 2,3 подъезд 2
Корпус
нет данных
Отделка
2.74 м
Потолки
ЖК «Новая Ивантеевка»
10 877 657
СберБанк
3.50%
Ставка
20.00%
Первый взнос
от 48 846 /мес.
Все варианты
7 этаж
из 12 4 квартал 2026
Московская область, Ивантеевка городской округ
Ростокино
33 мин.
2 очередь Секция 2,3 подъезд 2
Корпус
нет данных
Отделка
2.74 м
Потолки
ЖК «Новая Ивантеевка»
10 946 345
СберБанк
3.50%
Ставка
20.00%
Первый взнос
от 49 154 /мес.
Все варианты
8 этаж
из 12 4 квартал 2026
Московская область, Ивантеевка городской округ
Ростокино
33 мин.
2 очередь Секция 2,3 подъезд 2
Корпус
нет данных
Отделка
2.74 м
Потолки
ЖК «Новая Ивантеевка»
11 015 033
СберБанк
3.50%
Ставка
20.00%
Первый взнос
от 49 462 /мес.
Все варианты
9 этаж
из 12 4 квартал 2026
Московская область, Ивантеевка городской округ
Ростокино
33 мин.
2 очередь Секция 2,3 подъезд 2
Корпус
нет данных
Отделка
2.74 м
Потолки
ЖК «Новая Ивантеевка»
11 083 721
СберБанк
3.50%
Ставка
20.00%
Первый взнос
от 49 771 /мес.
Все варианты
10 этаж
из 12 4 квартал 2026
Московская область, Ивантеевка городской округ
Ростокино
33 мин.
2 очередь Секция 2,3 подъезд 2
Корпус
нет данных
Отделка
2.74 м
Потолки
ЖК «Новая Ивантеевка»
11 083 721
СберБанк
3.50%
Ставка
20.00%
Первый взнос
от 49 771 /мес.
Все варианты
11 этаж
из 12 4 квартал 2026
Московская область, Ивантеевка городской округ
Ростокино
33 мин.
2 очередь Секция 2,3 подъезд 2
Корпус
нет данных
Отделка
2.74 м
Потолки
ЖК «Новая Ивантеевка»
11 152 409
СберБанк
3.50%
Ставка
20.00%
Первый взнос
от 50 079 /мес.
Все варианты
12 этаж
из 12 4 квартал 2026
Московская область, Ивантеевка городской округ
Ростокино
33 мин.
2 очередь Секция 2,3 подъезд 2
Корпус
нет данных
Отделка
2.74 м
Потолки
ЖК «Новая Ивантеевка»
11 221 096
СберБанк
3.50%
Ставка
20.00%
Первый взнос
от 50 388 /мес.
Все варианты
студия 28,20 м2 4 791 480
Этаж 12/12
МО, ЖК «Новая Ивантеевка»
Ростокино
33 мин.
Строится
студия 28,60 м2 4 796 139
Этаж 9/12
МО, ЖК «Новая Ивантеевка»
Ростокино
33 мин.
Строится
студия 29,30 м2 4 871 148
Этаж 10/12
МО, ЖК «Новая Ивантеевка»
Ростокино
33 мин.
Строится
студия 29,50 м2 4 865 238
Этаж 10/25
МО, ЖК «Новая Ивантеевка»
Ростокино
33 мин.
Строится
Посмотреть 241 квартира в ЖК«Новая Ивантеевка»
1-комн. квартира 34,70 м2 5 772 103
Этаж 6/20
МО, ЖК «Новая Ивантеевка»
Ростокино
33 мин.
Строится
1-комн. квартира 35,00 м2 5 935 056
Этаж 10/12
МО, ЖК «Новая Ивантеевка»
Ростокино
33 мин.
Строится
1-комн. квартира 35,50 м2 5 987 873
Этаж 10/12
МО, ЖК «Новая Ивантеевка»
Ростокино
33 мин.
Строится
1-комн. квартира 35,70 м2 5 828 478
Этаж 4/20
МО, ЖК «Новая Ивантеевка»
Ростокино
33 мин.
Строится
Посмотреть 385 квартир в ЖК«Новая Ивантеевка»
2-комн. квартира 55,40 м2 8 986 349
Этаж 8/20
МО, ЖК «Новая Ивантеевка»
Ростокино
33 мин.
Строится
2-комн. квартира 56,30 м2 9 075 300
Этаж 7/20
МО, ЖК «Новая Ивантеевка»
Ростокино
33 мин.
Строится
2-комн. квартира 58,00 м2 9 131 850
Этаж 2/25
МО, ЖК «Новая Ивантеевка»
Ростокино
33 мин.
Строится
2-комн. квартира 65,70 м2 10 602 906
Этаж 2/12
МО, ЖК «Новая Ивантеевка»
Ростокино
33 мин.
Строится
Посмотреть 221 квартира в ЖК«Новая Ивантеевка»
3-комн. квартира 70,90 м2 10 850 760
Этаж 8/25
МО, ЖК «Новая Ивантеевка»
Ростокино
33 мин.
Строится
3-комн. квартира 75,60 м2 12 322 800
Этаж 20/25
МО, ЖК «Новая Ивантеевка»
Ростокино
33 мин.
Строится
Посмотреть 38 квартир в ЖК«Новая Ивантеевка»

Скидки и спецпредложения от застройщиков

ЖК «Новая Ивантеевка» на карте

Выгодные предложения на новостройки

Отзывы о ЖК«Новая Ивантеевка»

Самый полезный отзыв
ОК
20 ноября 2024
Оценка:
Достоинства
Транспортная доступность
Социальная инфраструктура
Планировки
Двор, окружение
Расположение
Проект комфорт-класса в 25 км от МКАД, рядом парки и заповедники. Хорошая транспортная развязка - до станции «Зеленый Бор» можно пешком дойти. Рядом есть съезд к Ярославскому шоссе. Всего в комплексе будет 13 домов, к ним анонсировали три детских сада, две школы и физкультурный комплекс с бассейном.
Ответить
Самый новый отзыв
СР
11 марта
Оценка:
Достоинства
Двор, окружение
Расположение
Расположение в Ивантеевке даёт спокойствие и природу, но для меня важен быстрый доступ к Москве. В целом, хорошая локация для жизни, если не нужно ежедневно быть в центре.
Ответить

Оставить отзыв

Добавьте отзыв, заполнив личные данные, или сначала войдите на сайт, тогда информация будет автоматически взята из личного профиля.
Оценка*