Рейтинг@Mail.ru
Переверните экран
Новостройки Квартиры Ипотека Новостройки Москвы Новостройки Подмосковья Новостройки Новой Москвы Готовые новостройки Новостройки на карте Акции от застройщиков Коммерческие помещения Продавцы и застройщики Панорамы новостроек Видеообзор новостроек Экспертиза новостроек Экология Москвы и Подмосковья Студии 1-комнатные 2-комнатные 3-комнатные Квартиры на карте Ипотечный калькулятор Семейная ипотека Военная ипотека Банки и программы Медиа Новости недвижимости Мнение эксперта Аналитика рынка Покупателю Экспертиза новостроек Эксперты и авторы О проекте Контакты Реклама на сайте Vk Youtube Telegram Дзен Машиноместа Апартаменты #траншевая ипотека #рассрочка ИТ-ипотека Квартиры со скидками до 40% Видео 360° новостроек Субсидированная застройщиком Rutube Поиск дома в Москве Программа реновации в Москве Новостройки премиум-класса Новостройки бизнес-класса Рассрочка Траншевая ипотека Дома и коттеджи Бизнес-центры Бизнес-центры в Москве Бизнес-центры рядом с метро Строящиеся бизнес-центры Бизнес-центры класса A Бизнес-центры класса B Ипотека со ставкой 0,1%
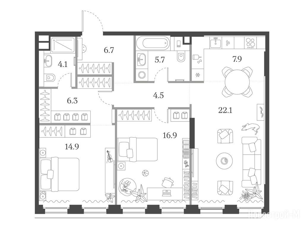
2-комн. квартира, 89.10 м2, 4 этаж
Срок сдачи 2 квартал 2029 года
59 554 440 
668 400 2
обновлено 1 апреля

Описание 2-комн. квартиры

Новостройка
Застройщик
Срок ГК
2 квартал 2029 года
Стадия строительства
котлован/фундамент
Общая площадь
89.10 м2
Жилая площадь
31.80 м2
Площадь кухни
30.00 м2
Высота потолков
3.50
Этаж
4 / 11
Вид из окна
на улицу

Расположение 2-комн. квартиры

Локация
Метро
Дом
2
Адрес
ул. Красноармейская, 11, секция 2

Особенности

Продается двухкомнатная квартира в новостройке ЖК «Муза» по адресу Москва, САО, Аэропорт, ул. Красноармейская, 11. Общая площадь квартиры - 89.1 кв. м. Тип проекта, по которому построен дом — Монолитно-кирпичный, компания-застройщик — «Мангазея». Стоимость квартиры — 59 554 440 руб. Способы оплаты можно уточнить у продавца. Срок сдачи — 2 квартал 2029. Более подробная информация по телефону.
Инфоцентр новостроек
Инфоцентр новостроек
+7 (499) 705-91-41
Время работы 9:00 — 21:00

Похожие квартиры в ЖК «Муза»

5 этаж
из 11 2 квартал 2029
Москва, САО
Аэропорт
12 мин.
2
Корпус
нет данных
Отделка
3.50 м
Потолки
ЖК «Муза»
59 946 480
Этаж 8/20
Москва, ЖК «Муза»
Аэропорт
12 мин.
Строится
Этаж 2/11
Москва, ЖК «Муза»
Аэропорт
12 мин.
Строится
Этаж 4/11
Москва, ЖК «Муза»
Аэропорт
12 мин.
Строится
Этаж 2/11
Москва, ЖК «Муза»
Аэропорт
12 мин.
Строится
Посмотреть 11 квартир в ЖК «Муза»
Этаж 10/20
Москва, ЖК «Муза»
Аэропорт
12 мин.
Строится
2-комн. квартира 88,80 м2 58 927 680
Этаж 2/11
Москва, ЖК «Муза»
Аэропорт
12 мин.
Строится
Этаж 5/11
Москва, ЖК «Муза»
Аэропорт
12 мин.
Строится
Этаж 7/11
Москва, ЖК «Муза»
Аэропорт
12 мин.
Строится
Посмотреть 14 квартир в ЖК «Муза»
Этаж 8/20 балкон
Москва, ЖК «Муза»
Аэропорт
12 мин.
Строится
Этаж 10/20 балкон
Москва, ЖК «Муза»
Аэропорт
12 мин.
Строится

Скидки и спецпредложения от застройщиков

ЖК «Муза» на карте

Выгодные предложения на новостройки

Отзывы о ЖК «Муза»

Оставить отзыв

Добавьте отзыв, заполнив личные данные, или сначала войдите на сайт, тогда информация будет автоматически взята из личного профиля.
Оценка*