Рейтинг@Mail.ru
Переверните экран
Новостройки Квартиры Ипотека Новостройки Москвы Новостройки Подмосковья Новостройки Новой Москвы Готовые новостройки Новостройки на карте Акции от застройщиков Коммерческие помещения Продавцы и застройщики Панорамы новостроек Видеообзор новостроек Экспертиза новостроек Экология Москвы и Подмосковья Студии 1-комнатные 2-комнатные 3-комнатные Квартиры на карте Ипотечный калькулятор Семейная ипотека Военная ипотека Банки и программы Медиа Новости недвижимости Мнение эксперта Аналитика рынка Покупателю Экспертиза новостроек Эксперты и авторы О проекте Контакты Реклама на сайте Vk Youtube Telegram Дзен Машиноместа Апартаменты #траншевая ипотека #рассрочка ИТ-ипотека Квартиры со скидками до 40% Видео 360° новостроек Субсидированная застройщиком Rutube Поиск дома в Москве Программа реновации в Москве Новостройки премиум-класса Новостройки бизнес-класса Рассрочка Траншевая ипотека Дома и коттеджи Бизнес-центры Бизнес-центры в Москве Бизнес-центры рядом с метро Строящиеся бизнес-центры Бизнес-центры класса A Бизнес-центры класса B Ипотека со ставкой 0,1%
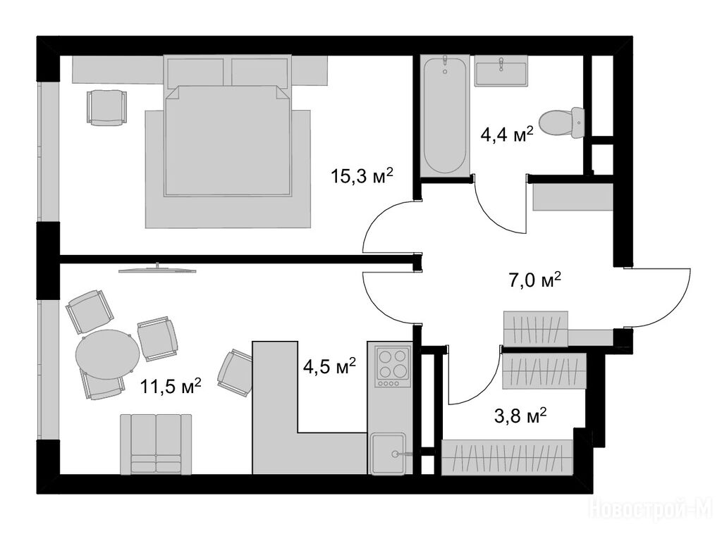
2-комн. квартира, 46.50 м2, 6 этаж
Срок сдачи 2 квартал 2026 года
10 927 500 
235 000 2
обновлено 1 апреля

Описание 2-комн. квартиры

Новостройка
Срок ГК
2 квартал 2026 года
Общая площадь
46.50 м2
Этаж
6 / 17
Грузовой лифт
есть

Расположение 2-комн. квартиры

Метро
Ж/Д-станция
Дом
Дом 1
Адрес
Детский пер., корп. 1, секция 1

Особенности

Продается двухкомнатная квартира в новостройке ЖК «Мытищи-Сити» по адресу Московская область, Мытищи городской округ, Мытищи, Детский пер., корп. 1. Общая площадь квартиры - 46.5 кв. м. Тип проекта, по которому построен дом — Монолитно-кирпичный, компания-застройщик — ООО СЗ «ЛОМОНОСОВ ДЕВЕЛОПМЕНТ». Стоимость квартиры — 10 927 500 руб. Способы оплаты можно уточнить у продавца. Срок сдачи — 2 квартал 2026. Более подробная информация по телефону.
Инфоцентр новостроек
Инфоцентр новостроек
Время работы 9:00 — 21:00
Выбирайте квартиру в ЖК «Мытищи-Сити» по ценам от застройщика

Похожие квартиры в ЖК «Мытищи-Сити»

10 этаж
из 17 2 квартал 2026
Московская область, Мытищи городской округ
Медведково
13 мин.
Дом 1
Корпус
нет данных
Отделка
3.10 м
Потолки
ЖК «Мытищи-Сити»
10 927 500
9 этаж
из 17 2 квартал 2026
Московская область, Мытищи городской округ
Медведково
13 мин.
Дом 1
Корпус
нет данных
Отделка
3.10 м
Потолки
ЖК «Мытищи-Сити»
10 927 500
студия 29,60 м2 7 844 000
Этаж 15/17
МО, ЖК «Мытищи-Сити»
Медведково
13 мин.
Строится
студия 32,30 м2 8 398 000
Этаж 2/17
МО, ЖК «Мытищи-Сити»
Медведково
13 мин.
Строится
студия 36,90 м2 9 594 000
Этаж 13/17
МО, ЖК «Мытищи-Сити»
Медведково
13 мин.
Строится
студия 37,70 м2 9 802 000
Этаж 10/17
МО, ЖК «Мытищи-Сити»
Медведково
13 мин.
Строится
Посмотреть 56 квартир в ЖК «Мытищи-Сити»
Этаж 16/17
МО, ЖК «Мытищи-Сити»
Медведково
13 мин.
Строится
Этаж 2/17
МО, ЖК «Мытищи-Сити»
Медведково
13 мин.
Строится
Этаж 15/17
МО, ЖК «Мытищи-Сити»
Медведково
13 мин.
Строится
1-комн. квартира 46,00 м2 11 500 000
Этаж 6/17
МО, ЖК «Мытищи-Сити»
Медведково
13 мин.
Строится
Посмотреть 74 квартиры в ЖК «Мытищи-Сити»
2-комн. квартира 42,90 м2 10 081 500
Этаж 16/17
МО, ЖК «Мытищи-Сити»
Медведково
13 мин.
Строится
2-комн. квартира 43,70 м2 10 051 000
Этаж 2/17
МО, ЖК «Мытищи-Сити»
Медведково
13 мин.
Строится
2-комн. квартира 46,10 м2 10 833 500
Этаж 2/17
МО, ЖК «Мытищи-Сити»
Медведково
13 мин.
Строится
2-комн. квартира 46,50 м2 10 927 500
Этаж 10/17
МО, ЖК «Мытищи-Сити»
Медведково
13 мин.
Строится
Посмотреть 97 квартир в ЖК «Мытищи-Сити»
Этаж 3/17
МО, ЖК «Мытищи-Сити»
Медведково
13 мин.
Строится
Этаж 2/17
МО, ЖК «Мытищи-Сити»
Медведково
13 мин.
Строится
Этаж 13/17
МО, ЖК «Мытищи-Сити»
Медведково
13 мин.
Строится
3-комн. квартира 81,70 м2 18 300 800
Этаж 9/17
МО, ЖК «Мытищи-Сити»
Медведково
13 мин.
Строится
Посмотреть 31 квартира в ЖК «Мытищи-Сити»

Скидки и спецпредложения от застройщиков

ЖК «Мытищи-Сити» на карте

Выгодные предложения на новостройки

Отзывы о ЖК «Мытищи-Сити»

Самый полезный отзыв
СП
09 декабря 2024
Оценка:
Достоинства
Транспортная доступность
Планировки
Способы покупки
Внешний вид фасада
Двор, окружение
Расположение
Отличное расположение дома. Проект отличный. Станция рядом, удобно добираться до Москвы. Огромное спасибо менеджеру Анастасии Дмитриевне, помогла нам чётко, грамотно рассказала, подсказала какие нужны все необходимые документы в оформлении сделки, благодаря ей она у нас прошла в срок.
Ответить
Самый новый отзыв
С
24 октября 2025
Оценка:
Отличное расположение дома Проект отличный. Станция рядом, удобно добираться до Москвы. Огромное спасибо менеджеру в офисе, помогла нам чётко, грамотно рассказала, подсказала, быстро оформились
Ответить

Оставить отзыв

Добавьте отзыв, заполнив личные данные, или сначала войдите на сайт, тогда информация будет автоматически взята из личного профиля.
Оценка*