Рейтинг@Mail.ru
Переверните экран
Новостройки Квартиры Ипотека Новостройки Москвы Новостройки Подмосковья Новостройки Новой Москвы Готовые новостройки Новостройки на карте Акции от застройщиков Коммерческие помещения Продавцы и застройщики Панорамы новостроек Видеообзор новостроек Экспертиза новостроек Экология Москвы и Подмосковья Студии 1-комнатные 2-комнатные 3-комнатные Квартиры на карте Ипотечный калькулятор Семейная ипотека Военная ипотека Банки и программы Медиа Новости недвижимости Мнение эксперта Аналитика рынка Покупателю Экспертиза новостроек Эксперты и авторы О проекте Контакты Реклама на сайте Vk Youtube Telegram Дзен Машиноместа Апартаменты #траншевая ипотека #рассрочка IT-ипотека Квартиры со скидками до 40% Видео 360° новостроек Субсидированная застройщиком Rutube Поиск дома в Москве Программа реновации в Москве Новостройки премиум-класса Новостройки бизнес-класса Рассрочка Траншевая ипотека ГАЛС Дома и коттеджи Бизнес-центры Бизнес-центры в Москве Бизнес-центры рядом с метро Строящиеся бизнес-центры Бизнес-центры класса A Бизнес-центры класса B ЛСР
Данная квартира является лидером продаж среди двухкомнатных квартир в ЖК «Гранд Комфорт» по данным Росреестра
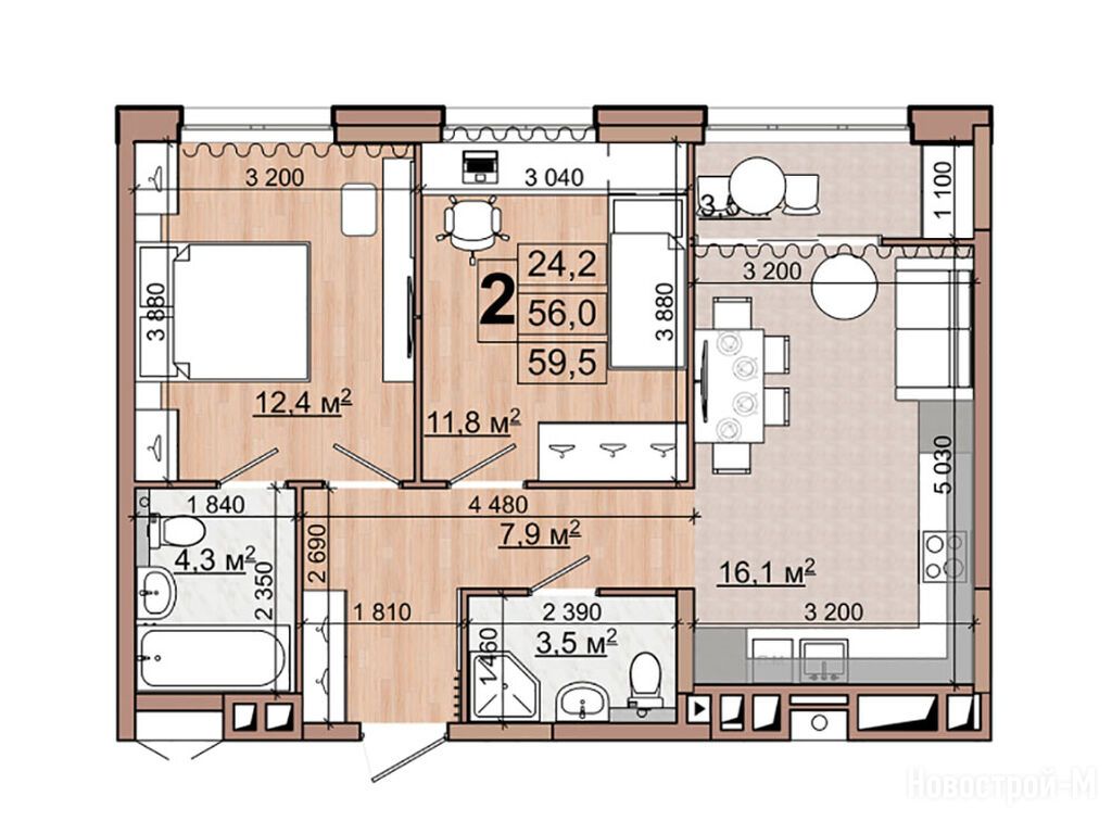
2-комн. квартира, 59.50 м2, 18 этаж
Срок сдачи 4 квартал 2026 года
11 271 000 
189 429 2
обновлено 13 декабря
.st0{fill:#00F459;fill-opacity:0.5;stroke:#00C933;stroke-miterlimit:10;} .st1{opacity:0.75;fill:#00F459;stroke:#00C933;stroke-miterlimit:10;} Created with Raphaël 2.2.0

Описание 2-комн. квартиры

Новостройка
Срок ГК
4 квартал 2026 года
Стадия строительства
монтаж нижних этажей
Общая площадь
59.50 м2
Жилая площадь
24.20 м2
Площадь кухни
16.10 м2
Этаж
18 / 18
Отделка
нет

Расположение 2-комн. квартиры

Метро
Станция МЦД
Дом
1
Адрес
ул. Гудкова, секция 2

Особенности

Продается двухкомнатная квартира в новостройке ЖК «Гранд Комфорт» по адресу Московская область, Жуковский городской округ, Жуковский, ул. Гудкова. Общая площадь квартиры - 59.5 кв. м. Тип проекта, по которому построен дом — Монолитно-кирпичный, компания-застройщик — ГК «Зелёный сад», СЗ «Зеленый сад – Премьер». Стоимость квартиры — 11 271 000 руб. Способы оплаты можно уточнить у продавца. Срок сдачи — 4 квартал 2026. Более подробная информация по телефону.
Инфоцентр новостроек
Инфоцентр новостроек
+7 (499) 705-91-41
Время работы 9:00 — 21:00
Посмотреть все спецпредложения
студия 28,00 м2 6 076 000
Этаж 5/18
МО, ЖК «Гранд Комфорт»
Ильинская
29 мин.
Строится
студия 28,30 м2 6 084 500
Этаж 2/18
МО, ЖК «Гранд Комфорт»
Ильинская
29 мин.
Строится
студия 29,50 м2 6 393 600
Этаж 18/18
МО, ЖК «Гранд Комфорт»
Ильинская
29 мин.
Строится
студия 29,80 м2 6 489 300
Этаж 13/18
МО, ЖК «Гранд Комфорт»
Ильинская
29 мин.
Строится
Посмотреть 12 квартир в ЖК «Гранд Комфорт»
1-комн. квартира 40,40 м2 7 635 600
Этаж 2/18
МО, ЖК «Гранд Комфорт»
Ильинская
29 мин.
Строится
1-комн. квартира 42,80 м2 7 872 000
Этаж 10/18
МО, ЖК «Гранд Комфорт»
Ильинская
29 мин.
Строится
1-комн. квартира 43,00 м2 7 910 400
Этаж 10/18
МО, ЖК «Гранд Комфорт»
Ильинская
29 мин.
Строится
1-комн. квартира 43,10 м2 8 145 900
Этаж 2/18
МО, ЖК «Гранд Комфорт»
Ильинская
29 мин.
Строится
Посмотреть 46 квартир в ЖК «Гранд Комфорт»
2-комн. квартира 53,30 м2 10 861 800
Этаж 12/18
МО, ЖК «Гранд Комфорт»
Ильинская
29 мин.
Строится
2-комн. квартира 53,60 м2 10 880 800
Этаж 2/18
МО, ЖК «Гранд Комфорт»
Ильинская
29 мин.
Строится
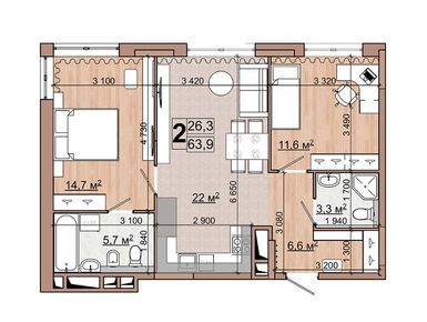
2-комн. квартира 63,70 м2 11 927 400
Этаж 17/18
МО, ЖК «Гранд Комфорт»
Ильинская
29 мин.
Строится
2-комн. квартира 63,90 м2 11 949 300
Этаж 2/18
МО, ЖК «Гранд Комфорт»
Ильинская
29 мин.
Строится
Посмотреть 16 квартир в ЖК «Гранд Комфорт»

Скидки и спецпредложения от застройщиков

ЖК «Гранд Комфорт» на карте

Выгодные предложения на новостройки

Отзывы о ЖК «Гранд Комфорт»

Самый полезный отзыв
Н
29 апреля 2024
Оценка:
Способы покупки
Я хочу рассказать о новой ипотечной программе со льготной ставкой от 5% а Это отличная возможность для тех, кто хочет приобрести жилье. С помощью этой программы многие люди смогут улучшить свои жилищные условия, а льготная ставка поможет снизить финансовую нагрузку на семью, что особенно актуально для молодых семей и семей с детьми. Считаю, что такая поддержка государства очень важна для развития ипотечного рынка и повышения доступности жилья для граждан.
Ответить
Полезный отзыв?
Самый новый отзыв
О
24 сентября
Оценка:
Сама идея ЖК хорошая, реализация не очень...
Ответить
Полезный отзыв?
Добавьте отзыв, заполнив личные данные, или сначала войдите на сайт, тогда информация будет автоматически взята из личного профиля.
Оценка*