Рейтинг@Mail.ru
Переверните экран
Новостройки Квартиры Ипотека Новостройки Москвы Новостройки Подмосковья Новостройки Новой Москвы Готовые новостройки Новостройки на карте Акции от застройщиков Коммерческие помещения Продавцы и застройщики Панорамы новостроек Видеообзор новостроек Экспертиза новостроек Экология Москвы и Подмосковья Студии 1-комнатные 2-комнатные 3-комнатные Квартиры на карте Ипотечный калькулятор Семейная ипотека Военная ипотека Банки и программы Медиа Новости недвижимости Мнение эксперта Аналитика рынка Покупателю Экспертиза новостроек Эксперты и авторы О проекте Контакты Реклама на сайте Vk Youtube Telegram Дзен Машиноместа Апартаменты #траншевая ипотека #рассрочка ИТ-ипотека Квартиры со скидками до 40% Видео 360° новостроек Субсидированная застройщиком Rutube Поиск дома в Москве Программа реновации в Москве Новостройки премиум-класса Новостройки бизнес-класса Рассрочка Траншевая ипотека Дома и коттеджи Бизнес-центры Бизнес-центры в Москве Бизнес-центры рядом с метро Строящиеся бизнес-центры Бизнес-центры класса A Бизнес-центры класса B Ипотека со ставкой 0,1%
Данное предложение на 03.04.2026 неактуально. Пожалуйста, ознакомьтесь с другими похожими предложениями в ЖК «Дом на Сиреневой» .
2-комн. квартира, 61.86 м2, 6 этаж
Сдан
12 412 663 
200 657 2
обновлено 19 января

Описание 2-комн. квартиры

Срок ГК
Дом сдан
Стадия строительства
выдача ключей + заселение
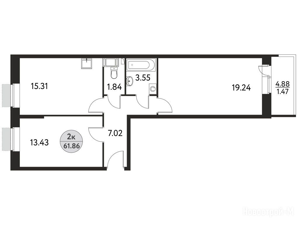
Общая площадь
61.86 м2
Жилая площадь
32.67 м2
Площадь кухни
15.31 м2
Этаж
6 / 13
Балкон
балкон
Отделка
чистовая
Тип санузла
раздельный
Грузовой лифт
есть

Расположение 2-комн. квартиры

Метро
Ж/Д-станция
Дом
62А
Адрес
мкр.№1, ул. Полевая, корп. 62А, секция 5

Особенности

Продается двухкомнатная квартира в новостройке ЖК «Дом на Сиреневой» по адресу Московская область, Щелковский район, Щелково, мкр.№1, ул. Полевая, корп. 62А. Общая площадь квартиры - 61.86 кв. м. Тип проекта, по которому построен дом — Монолитно-кирпичный, компания-застройщик — СЗ «Олимп Гарант», Группа компаний «Р-Инвест». Стоимость квартиры — 12 412 663 руб. Способы оплаты можно уточнить у продавца. Более подробная информация по телефону.
Инфоцентр новостроек
Инфоцентр новостроек
+7 (499) 705-91-41
Время работы 9:00 — 21:00

Похожие квартиры в ЖК «Дом на Сиреневой»

9 этаж
из 13 Дом сдан
Московская область, Щелковский район
Щелковская
42 мин.
62А
Корпус
чистовая
Отделка
2.76 м
Потолки
ЖК «Дом на Сиреневой»
13 151 920
2-комн. квартира 58,52 м2 11 035 200
Этаж 13/17 лоджия
МО, ЖК «Дом на Сиреневой»
Щелковская
42 мин.
Сдан
2-комн. квартира 59,96 м2 14 375 320
Этаж 15/17 балкон
МО, ЖК «Дом на Сиреневой»
Щелковская
42 мин.
Сдан
2-комн. квартира 60,01 м2 11 268 895
Этаж 14/17 балкон
МО, ЖК «Дом на Сиреневой»
Щелковская
42 мин.
Сдан
2-комн. квартира 61,86 м2 11 227 480
Этаж 10/13 балкон
МО, ЖК «Дом на Сиреневой»
Щелковская
42 мин.
Сдан
Посмотреть 23 квартиры в ЖК «Дом на Сиреневой»
3-комн. квартира 68,91 м2 12 846 834
Этаж 17/17 лоджия
МО, ЖК «Дом на Сиреневой»
Щелковская
42 мин.
Сдан
3-комн. квартира 72,30 м2 12 987 249
Этаж 16/17 лоджия
МО, ЖК «Дом на Сиреневой»
Щелковская
42 мин.
Сдан
3-комн. квартира 72,60 м2 12 761 628
Этаж 9/17 лоджия
МО, ЖК «Дом на Сиреневой»
Щелковская
42 мин.
Сдан
3-комн. квартира 72,90 м2 15 314 832
Этаж 15/17 лоджия
МО, ЖК «Дом на Сиреневой»
Щелковская
42 мин.
Сдан
Посмотреть 10 квартир в ЖК «Дом на Сиреневой»

Скидки и спецпредложения от застройщиков

ЖК «Дом на Сиреневой» на карте

Выгодные предложения на новостройки

Отзывы о ЖК «Дом на Сиреневой»

Самый полезный отзыв
П
02 марта 2023
Оценка:
Достоинства
Транспортная доступность
Расположение
Супер вариант для инвестиций. Район очень активно развивается, что в дальнейшем повлияет на стоимость квартир. В скором времени, думаю построят несколько ТЦ, так как жителей становится все больше.
Ответить
Самый новый отзыв
В
23 августа 2023
Оценка:
В районе много зеленых массивов и нет поблизости оживленных трасс и магистралей, за счет чего здесь такой чистый воздух. Жил здесь с родителями в частном секторе, и вот тоже решился на покупку квартиры в строящемся ЖК Дом на сиреневой. Цена я считаю удачная. Комплекс современный.
Ответить

Оставить отзыв

Добавьте отзыв, заполнив личные данные, или сначала войдите на сайт, тогда информация будет автоматически взята из личного профиля.
Оценка*