Рейтинг@Mail.ru
Переверните экран
Новостройки Квартиры Ипотека Новостройки Москвы Новостройки Подмосковья Новостройки Новой Москвы Готовые новостройки Новостройки на карте Акции от застройщиков Коммерческие помещения Продавцы и застройщики Панорамы новостроек Видеообзор новостроек Экспертиза новостроек Экология Москвы и Подмосковья Студии 1-комнатные 2-комнатные 3-комнатные Квартиры на карте Ипотечный калькулятор Семейная ипотека Военная ипотека Банки и программы Медиа Новости недвижимости Мнение эксперта Аналитика рынка Покупателю Экспертиза новостроек Эксперты и авторы О проекте Контакты Реклама на сайте Vk Youtube Telegram Дзен Машиноместа Апартаменты #траншевая ипотека #рассрочка IT-ипотека Квартиры со скидками до 40% Видео 360° новостроек Субсидированная застройщиком Rutube Поиск дома в Москве Программа реновации в Москве Новостройки премиум-класса Новостройки бизнес-класса Рассрочка Траншевая ипотека ГАЛС Дома и коттеджи Бизнес-центры Бизнес-центры в Москве Бизнес-центры рядом с метро Строящиеся бизнес-центры Бизнес-центры класса A Бизнес-центры класса B ЛСР
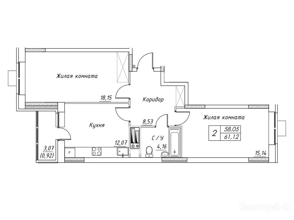
2-комн. квартира, 61.12 м2, 17 этаж
Срок сдачи 1 квартал 2027 года
8 700 000 
142 343 2
обновлено 15 декабря

Описание 2-комн. квартиры

Застройщик
Срок ГК
1 квартал 2027 года
Стадия строительства
монтаж верхних этажей
Общая площадь
61.12 м2
Жилая площадь
33.29 м2
Площадь кухни
12.07 м2
Этаж
17 / 17

Расположение 2-комн. квартиры

Ж/Д-станция
Дом
2
Адрес
ул. Большевистская, секция 1

Особенности

Продается двухкомнатная квартира в новостройке ЖК «Большевик» (Дмитров) по адресу Московская область, Дмитровский район, Дмитров, ул. Большевистская. Общая площадь квартиры - 61.12 кв. м. Тип проекта, по которому построен дом — Монолитно-кирпичный, компания-застройщик — Архитектор. Стоимость квартиры — 8 700 000 руб. Способы оплаты можно уточнить у продавца. Срок сдачи — 1 квартал 2027. Более подробная информация по телефону.
Инфоцентр новостроек
Инфоцентр новостроек
Время работы 9:00 — 21:00
Выбирайте квартиру в ЖК «Большевик» (Дмитров) по ценам от застройщика
Благоустроенный двор. ЖК «Большевик» (Дмитров)|Новострой-М
ЖК «Большевик» ЖК «Большевик» (Дмитров)|Новострой-М
Посмотреть все спецпредложения
Этаж 14/17
МО, ЖК «Большевик» (Дмитров)
Дмитров (ж/д)
6 мин.
Строится
1-комн. квартира 30,96 м2 4 850 000
Этаж 16/17
МО, ЖК «Большевик» (Дмитров)
Дмитров (ж/д)
6 мин.
Строится
1-комн. квартира 34,29 м2 5 250 000
Этаж 4/17
МО, ЖК «Большевик» (Дмитров)
Дмитров (ж/д)
6 мин.
Строится
1-комн. квартира 36,06 м2 5 550 000
Этаж 14/17
МО, ЖК «Большевик» (Дмитров)
Дмитров (ж/д)
6 мин.
Строится
Посмотреть 23 квартиры в ЖК «Большевик» (Дмитров)
2-комн. квартира 56,51 м2 8 350 000
Этаж 4/17
МО, ЖК «Большевик» (Дмитров)
Дмитров (ж/д)
6 мин.
Строится
2-комн. квартира 56,62 м2 8 650 000
Этаж 14/17
МО, ЖК «Большевик» (Дмитров)
Дмитров (ж/д)
6 мин.
Строится
2-комн. квартира 56,90 м2 8 650 000
Этаж 5/17
МО, ЖК «Большевик» (Дмитров)
Дмитров (ж/д)
6 мин.
Строится
2-комн. квартира 56,96 м2 8 800 000
Этаж 13/17
МО, ЖК «Большевик» (Дмитров)
Дмитров (ж/д)
6 мин.
Строится
Посмотреть 17 квартир в ЖК «Большевик» (Дмитров)
3-комн. квартира 88,38 м2 12 000 000
Этаж 5/17
МО, ЖК «Большевик» (Дмитров)
Дмитров (ж/д)
6 мин.
Строится

Скидки и спецпредложения от застройщиков

ЖК «Большевик» (Дмитров) на карте

Выгодные предложения на новостройки

Отзывы о ЖК «Большевик» (Дмитров)

Самый новый отзыв
АС
11 марта
Оценка:
Социальная инфраструктура
Планировки
Способы покупки
Внешний вид фасада
Двор, окружение
Место для строительства хорошее, но цены для меня высоковаты. Хотел к присмотреть квартиру в ипотеку, надо посчитать, сколько в месяц надо будет платить. Схожу в банк, тогда и решу
Ответить
Полезный отзыв?
Добавьте отзыв, заполнив личные данные, или сначала войдите на сайт, тогда информация будет автоматически взята из личного профиля.
Оценка*