Рейтинг@Mail.ru
Переверните экран
Новостройки Квартиры Ипотека Новостройки Москвы Новостройки Подмосковья Новостройки Новой Москвы Готовые новостройки Новостройки на карте Акции от застройщиков Коммерческие помещения Продавцы и застройщики Панорамы новостроек Видеообзор новостроек Экспертиза новостроек Экология Москвы и Подмосковья Студии 1-комнатные 2-комнатные 3-комнатные Квартиры на карте Ипотечный калькулятор Семейная ипотека Военная ипотека Банки и программы Медиа Новости недвижимости Мнение эксперта Аналитика рынка Покупателю Экспертиза новостроек Эксперты и авторы О проекте Контакты Реклама на сайте Vk Youtube Telegram Дзен Машиноместа Апартаменты #траншевая ипотека #рассрочка ИТ-ипотека Квартиры со скидками до 40% Видео 360° новостроек Субсидированная застройщиком Rutube Поиск дома в Москве Программа реновации в Москве Новостройки премиум-класса Новостройки бизнес-класса Рассрочка Траншевая ипотека Дома и коттеджи Бизнес-центры Бизнес-центры в Москве Бизнес-центры рядом с метро Строящиеся бизнес-центры Бизнес-центры класса A Бизнес-центры класса B Ипотека со ставкой 0,1%
Данная квартира является лидером продаж среди двухкомнатных квартир в ЖК «Белый Град» по данным Росреестра
Данное предложение на 02.04.2026 неактуально. Пожалуйста, ознакомьтесь с другими похожими предложениями в ЖК «Белый Град» .
2-комн. квартира, 52.40 м2, 4 этаж
Срок сдачи 3 квартал 2026 года
11 630 000 
221 947 2
обновлено 10 января

Описание 2-комн. квартиры

Новостройка
Застройщик
Срок ГК
3 квартал 2026 года
Стадия строительства
отделка фасада и внутренние работы
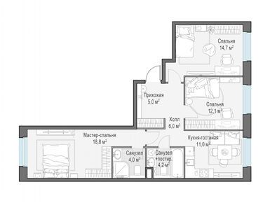
Общая площадь
52.40 м2
Жилая площадь
37.40 м2
Площадь кухни
17.20 м2
Высота потолков
2.82
Этаж
4 / 20
Отделка
нет
Тип санузла
раздельный

Расположение 2-комн. квартиры

Метро
Станция МЦК
Ж/Д-станция
Дом
12.2
Адрес
жилой комплекс Белый Grad, 12.2, секция 1

Способы покупки

Особенности

Продается двухкомнатная квартира в новостройке ЖК «Белый Град» по адресу Московская область, Мытищи городской округ, Мытищи, жилой комплекс Белый Grad, 12.2. Общая площадь квартиры - 52.4 кв. м. Тип проекта, по которому построен дом — Монолитно-кирпичный, компания-застройщик — Ingrad (Инград). Стоимость квартиры — 11 630 000 руб. Способы оплаты можно уточнить у продавца. Срок сдачи — 3 квартал 2026. Более подробная информация по телефону.

Правовые документы

Инфоцентр новостроек
Инфоцентр новостроек
+7 (499) 705-91-41
Время работы 9:00 — 21:00

Похожие квартиры в ЖК «Белый Град»

5 этаж
из 20 3 квартал 2026
Московская область, Мытищи городской округ
Медведково
18 мин.
12.2
Корпус
нет
Отделка
2.76 м
Потолки
ЖК «Белый Град»
11 930 000
СберБанк, Сургутнефтегазбанк, Металлинвестбанк, Банк Санкт-Петербург, Абсолют Банк, Т-Банк, Уралсиб, Промсвязьбанк, Московский Кредитный Банк, Альфа-Банк, Совкомбанк, МТС Банк
6.00%
Ставка
20.10%
Первый взнос
от 71 526 /мес.
Все варианты
10 этаж
из 20 3 квартал 2026
Московская область, Мытищи городской округ
Медведково
18 мин.
12.2
Корпус
нет
Отделка
2.76 м
Потолки
ЖК «Белый Град»
12 340 000
СберБанк, Сургутнефтегазбанк, Металлинвестбанк, Банк Санкт-Петербург, Абсолют Банк, Т-Банк, Уралсиб, Промсвязьбанк, Московский Кредитный Банк, Альфа-Банк, Совкомбанк, МТС Банк
6.00%
Ставка
20.10%
Первый взнос
от 73 985 /мес.
Все варианты
11 этаж
из 20 3 квартал 2026
Московская область, Мытищи городской округ
Медведково
18 мин.
12.2
Корпус
нет
Отделка
2.76 м
Потолки
ЖК «Белый Град»
12 390 000
СберБанк, Сургутнефтегазбанк, Металлинвестбанк, Банк Санкт-Петербург, Абсолют Банк, Т-Банк, Уралсиб, Промсвязьбанк, Московский Кредитный Банк, Альфа-Банк, Совкомбанк, МТС Банк
6.00%
Ставка
20.10%
Первый взнос
от 74 284 /мес.
Все варианты
12 этаж
из 20 3 квартал 2026
Московская область, Мытищи городской округ
Медведково
18 мин.
12.2
Корпус
нет
Отделка
2.76 м
Потолки
ЖК «Белый Град»
12 440 000
СберБанк, Сургутнефтегазбанк, Металлинвестбанк, Банк Санкт-Петербург, Абсолют Банк, Т-Банк, Уралсиб, Промсвязьбанк, Московский Кредитный Банк, Альфа-Банк, Совкомбанк, МТС Банк
6.00%
Ставка
20.10%
Первый взнос
от 74 584 /мес.
Все варианты
14 этаж
из 20 3 квартал 2026
Московская область, Мытищи городской округ
Медведково
18 мин.
12.2
Корпус
нет
Отделка
2.76 м
Потолки
ЖК «Белый Град»
12 440 000
СберБанк, Сургутнефтегазбанк, Металлинвестбанк, Банк Санкт-Петербург, Абсолют Банк, Т-Банк, Уралсиб, Промсвязьбанк, Московский Кредитный Банк, Альфа-Банк, Совкомбанк, МТС Банк
6.00%
Ставка
20.10%
Первый взнос
от 74 584 /мес.
Все варианты
13 этаж
из 20 3 квартал 2026
Московская область, Мытищи городской округ
Медведково
18 мин.
12.2
Корпус
нет
Отделка
2.76 м
Потолки
ЖК «Белый Град»
12 540 000
СберБанк, Сургутнефтегазбанк, Металлинвестбанк, Банк Санкт-Петербург, Абсолют Банк, Т-Банк, Уралсиб, Промсвязьбанк, Московский Кредитный Банк, Альфа-Банк, Совкомбанк, МТС Банк
6.00%
Ставка
20.10%
Первый взнос
от 75 184 /мес.
Все варианты
15 этаж
из 20 3 квартал 2026
Московская область, Мытищи городской округ
Медведково
18 мин.
12.2
Корпус
нет
Отделка
2.76 м
Потолки
ЖК «Белый Град»
12 540 000
СберБанк, Сургутнефтегазбанк, Металлинвестбанк, Банк Санкт-Петербург, Абсолют Банк, Т-Банк, Уралсиб, Промсвязьбанк, Московский Кредитный Банк, Альфа-Банк, Совкомбанк, МТС Банк
6.00%
Ставка
20.10%
Первый взнос
от 75 184 /мес.
Все варианты
16 этаж
из 20 3 квартал 2026
Московская область, Мытищи городской округ
Медведково
18 мин.
12.2
Корпус
нет
Отделка
2.76 м
Потолки
ЖК «Белый Град»
12 590 000
СберБанк, Сургутнефтегазбанк, Металлинвестбанк, Банк Санкт-Петербург, Абсолют Банк, Т-Банк, Уралсиб, Промсвязьбанк, Московский Кредитный Банк, Альфа-Банк, Совкомбанк, МТС Банк
6.00%
Ставка
20.10%
Первый взнос
от 75 483 /мес.
Все варианты
17 этаж
из 20 3 квартал 2026
Московская область, Мытищи городской округ
Медведково
18 мин.
12.2
Корпус
нет
Отделка
2.76 м
Потолки
ЖК «Белый Град»
12 640 000
СберБанк, Сургутнефтегазбанк, Металлинвестбанк, Банк Санкт-Петербург, Абсолют Банк, Т-Банк, Уралсиб, Промсвязьбанк, Московский Кредитный Банк, Альфа-Банк, Совкомбанк, МТС Банк
6.00%
Ставка
20.10%
Первый взнос
от 75 783 /мес.
Все варианты
18 этаж
из 20 3 квартал 2026
Московская область, Мытищи городской округ
Медведково
18 мин.
12.2
Корпус
нет
Отделка
2.76 м
Потолки
ЖК «Белый Град»
12 750 000
СберБанк, Сургутнефтегазбанк, Металлинвестбанк, Банк Санкт-Петербург, Абсолют Банк, Т-Банк, Уралсиб, Промсвязьбанк, Московский Кредитный Банк, Альфа-Банк, Совкомбанк, МТС Банк
6.00%
Ставка
20.10%
Первый взнос
от 76 443 /мес.
Все варианты
8 этаж
из 20 3 квартал 2026
Московская область, Мытищи городской округ
Медведково
18 мин.
12.2
Корпус
нет
Отделка
2.76 м
Потолки
ЖК «Белый Град»
12 950 000
СберБанк, Сургутнефтегазбанк, Металлинвестбанк, Банк Санкт-Петербург, Абсолют Банк, Т-Банк, Уралсиб, Промсвязьбанк, Московский Кредитный Банк, Альфа-Банк, Совкомбанк, МТС Банк
6.00%
Ставка
20.10%
Первый взнос
от 77 642 /мес.
Все варианты
19 этаж
из 20 3 квартал 2026
Московская область, Мытищи городской округ
Медведково
18 мин.
12.2
Корпус
нет
Отделка
2.76 м
Потолки
ЖК «Белый Град»
12 950 000
СберБанк, Сургутнефтегазбанк, Металлинвестбанк, Банк Санкт-Петербург, Абсолют Банк, Т-Банк, Уралсиб, Промсвязьбанк, Московский Кредитный Банк, Альфа-Банк, Совкомбанк, МТС Банк
6.00%
Ставка
20.10%
Первый взнос
от 77 642 /мес.
Все варианты
9 этаж
из 20 3 квартал 2026
Московская область, Мытищи городской округ
Медведково
18 мин.
12.2
Корпус
нет
Отделка
2.76 м
Потолки
ЖК «Белый Град»
13 000 000
СберБанк, Сургутнефтегазбанк, Металлинвестбанк, Банк Санкт-Петербург, Абсолют Банк, Т-Банк, Уралсиб, Промсвязьбанк, Московский Кредитный Банк, Альфа-Банк, Совкомбанк, МТС Банк
6.00%
Ставка
20.10%
Первый взнос
от 77 942 /мес.
Все варианты
20 этаж
из 20 3 квартал 2026
Московская область, Мытищи городской округ
Медведково
18 мин.
12.2
Корпус
нет
Отделка
2.76 м
Потолки
ЖК «Белый Град»
13 000 000
СберБанк, Сургутнефтегазбанк, Металлинвестбанк, Банк Санкт-Петербург, Абсолют Банк, Т-Банк, Уралсиб, Промсвязьбанк, Московский Кредитный Банк, Альфа-Банк, Совкомбанк, МТС Банк
6.00%
Ставка
20.10%
Первый взнос
от 77 942 /мес.
Все варианты
1-комн. квартира 41,40 м2 8 460 000
Этаж 2/23
МО, ЖК «Белый Град»
Медведково
18 мин.
Строится
2-комн. квартира 54,30 м2 13 060 000
Этаж 19/23
МО, ЖК «Белый Град»
Медведково
18 мин.
Строится
2-комн. квартира 62,00 м2 13 300 000
Этаж 2/17
МО, ЖК «Белый Град»
Медведково
18 мин.
Строится
3-комн. квартира 76,50 м2 17 410 000
Этаж 4/23
МО, ЖК «Белый Град»
Медведково
18 мин.
Строится
студия 20,80 м2 5 910 000
Этаж 8/20
МО, ЖК «Белый Град»
Медведково
18 мин.
Строится
студия 21,00 м2 5 970 000
Этаж 5/17
МО, ЖК «Белый Град»
Медведково
18 мин.
Строится
студия 21,10 м2 5 670 000
Этаж 8/23
МО, ЖК «Белый Град»
Медведково
18 мин.
Строится
студия 21,20 м2 5 570 000
Этаж 2/20
МО, ЖК «Белый Град»
Медведково
18 мин.
Строится
Посмотреть 160 квартир в ЖК «Белый Град»
1-комн. квартира 28,90 м2 6 980 000
Этаж 17/20
МО, ЖК «Белый Град»
Медведково
18 мин.
Строится
1-комн. квартира 31,10 м2 7 060 000
Этаж 18/20
МО, ЖК «Белый Град»
Медведково
18 мин.
Строится
1-комн. квартира 31,20 м2 7 090 000
Этаж 18/23
МО, ЖК «Белый Град»
Медведково
18 мин.
Строится
1-комн. квартира 32,40 м2 7 540 000
Этаж 19/20
МО, ЖК «Белый Град»
Медведково
18 мин.
Строится
Посмотреть 647 квартир в ЖК «Белый Град»
2-комн. квартира 45,30 м2 9 520 000
Этаж 15/23
МО, ЖК «Белый Град»
Медведково
18 мин.
Строится
2-комн. квартира 46,70 м2 11 280 000
Этаж 19/20
МО, ЖК «Белый Град»
Медведково
18 мин.
Строится
2-комн. квартира 46,80 м2 11 080 000
Этаж 2/20
МО, ЖК «Белый Град»
Медведково
18 мин.
Строится
2-комн. квартира 49,00 м2 12 970 000
Этаж 8/20
МО, ЖК «Белый Град»
Медведково
18 мин.
Строится
Посмотреть 400 квартир в ЖК «Белый Град»
3-комн. квартира 70,40 м2 15 890 000
Этаж 11/17
МО, ЖК «Белый Град»
Медведково
18 мин.
Строится
Этаж 2/20
МО, ЖК «Белый Град»
Медведково
18 мин.
Строится
Этаж 8/20
МО, ЖК «Белый Град»
Медведково
18 мин.
Строится
3-комн. квартира 76,50 м2 19 820 000
Этаж 20/23
МО, ЖК «Белый Град»
Медведково
18 мин.
Строится
Посмотреть 37 квартир в ЖК «Белый Град»
Этаж 14/20
МО, ЖК «Белый Град»
Медведково
18 мин.
Строится
Посмотреть 7 квартир в ЖК «Белый Град»

Скидки и спецпредложения от застройщиков

ЖК «Белый Град» на карте

Выгодные предложения на новостройки

Отзывы о ЖК «Белый Град»

Самый полезный отзыв
А
09 июля 2020
Оценка:
Достоинства
Социальная инфраструктура
Двор, окружение
Расположение
Добрый день, впечатляет масштабом проект - 30 корпусов, свои школы, сады, больницы, с торговыми точками проблем 100% не будет, слышал, что тут выделят жилье для дольщиков обонкротившися строительств, значит пристально будут смотреть на этот комплекс сверху, а для новых дольщиков обезопасят покупку эскроу-счета. Понять бы ценник за квадрат, а так круто размахнулись, конечно
Показать все комментарии
Ответить
Самый новый отзыв
Р
30 марта
Оценка:
Я сначала сомневался, далеко от МКАД. Но до Волковского шоссе пара минут. Плюс понравилось, что садик уже строят, а школу пообещали. Надеюсь, успеют к школе для младшего
Ответить

Оставить отзыв

Добавьте отзыв, заполнив личные данные, или сначала войдите на сайт, тогда информация будет автоматически взята из личного профиля.
Оценка*