Рейтинг@Mail.ru
Переверните экран
Новостройки Квартиры Ипотека Новостройки Москвы Новостройки Подмосковья Новостройки Новой Москвы Готовые новостройки Новостройки на карте Акции от застройщиков Коммерческие помещения Продавцы и застройщики Панорамы новостроек Видеообзор новостроек Экспертиза новостроек Экология Москвы и Подмосковья Студии 1-комнатные 2-комнатные 3-комнатные Квартиры на карте Ипотечный калькулятор Семейная ипотека Военная ипотека Банки и программы Медиа Новости недвижимости Мнение эксперта Аналитика рынка Покупателю Экспертиза новостроек Эксперты и авторы О проекте Контакты Реклама на сайте Vk Youtube Telegram Дзен Машиноместа Апартаменты #траншевая ипотека #рассрочка IT-ипотека Квартиры со скидками до 40% Видео 360° новостроек Субсидированная застройщиком Rutube Поиск дома в Москве Программа реновации в Москве Новостройки премиум-класса Новостройки бизнес-класса Рассрочка Траншевая ипотека ГАЛС Дома и коттеджи Бизнес-центры Бизнес-центры в Москве Бизнес-центры рядом с метро Строящиеся бизнес-центры Бизнес-центры класса A Бизнес-центры класса B ЛСР
2-комн. квартира, 60.10 м2, 9 этаж
Срок сдачи 2 квартал 2028 года
13 977 156 
232 565 2
обновлено 5 декабря

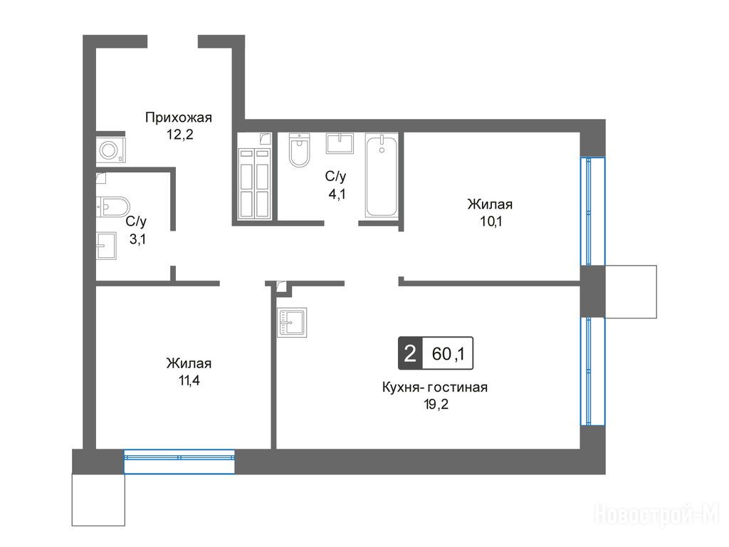
Описание 2-комн. квартиры

Срок ГК
2 квартал 2028 года
Стадия строительства
котлован/фундамент
Общая площадь
60.10 м2
Жилая площадь
21.50 м2
Площадь кухни
19.20 м2
Этаж
9 / 31
Отделка
нет

Расположение 2-комн. квартиры

Метро
Станция МЦД
Дом
1
Адрес
ул. Черневская, корп. 1, секция 2

Особенности

Продается двухкомнатная квартира в новостройке Сити квартал «Отрада» по адресу Московская область, Красногорск городской округ, Красногорск, ул. Черневская, корп. 1. Общая площадь квартиры - 60.1 кв. м. Тип проекта, по которому построен дом — Монолитно-кирпичный, компания-застройщик — СЗ Отрада Девелопмент. Стоимость квартиры — 13 977 156 руб. Способы оплаты можно уточнить у продавца. Срок сдачи — 2 квартал 2028. Более подробная информация по телефону.
Инфоцентр новостроек
Инфоцентр новостроек
Время работы 9:00 — 21:00
Выбирайте квартиру в Сити квартал «Отрада» по ценам от застройщика

Похожие квартиры в Сити квартале «Отрада»

14 этаж
из 31 2 квартал 2028
Московская область, Красногорск городской округ
Красногорская
17 мин.
1
Корпус
нет
Отделка
2.85 м
Потолки
Сити квартал «Отрада»
14 079 326
Посмотреть все спецпредложения
Этаж 11/31
МО, Сити квартал «Отрада»
Красногорская
17 мин.
Строится
студия 22,20 м2 6 261 716
Этаж 28/31
МО, Сити квартал «Отрада»
Красногорская
17 мин.
Строится
студия 22,70 м2 6 378 401
Этаж 25/31
МО, Сити квартал «Отрада»
Красногорская
17 мин.
Строится
Посмотреть 13 квартир в Сити квартале «Отрада»
Этаж 14/31
МО, Сити квартал «Отрада»
Красногорская
17 мин.
Строится
1-комн. квартира 32,70 м2 8 476 349
Этаж 19/31
МО, Сити квартал «Отрада»
Красногорская
17 мин.
Строится
Этаж 11/31
МО, Сити квартал «Отрада»
Красногорская
17 мин.
Строится
1-комн. квартира 33,20 м2 8 683 374
Этаж 23/31
МО, Сити квартал «Отрада»
Красногорская
17 мин.
Строится
Посмотреть 34 квартиры в Сити квартале «Отрада»
Этаж 20/31
МО, Сити квартал «Отрада»
Красногорская
17 мин.
Строится
Этаж 20/31
МО, Сити квартал «Отрада»
Красногорская
17 мин.
Строится
Этаж 14/31
МО, Сити квартал «Отрада»
Красногорская
17 мин.
Строится
Этаж 24/31
МО, Сити квартал «Отрада»
Красногорская
17 мин.
Строится
Посмотреть 16 квартир в Сити квартале «Отрада»
Этаж 10/31
МО, Сити квартал «Отрада»
Красногорская
17 мин.
Строится
Этаж 18/31
МО, Сити квартал «Отрада»
Красногорская
17 мин.
Строится
Посмотреть 7 квартир в Сити квартале «Отрада»

Скидки и спецпредложения от застройщиков

Сити квартал «Отрада» на карте

Выгодные предложения на новостройки

Отзывы о Сити квартале «Отрада»

Самый новый отзыв
ЕД
21 ноября
Оценка:
Транспортная доступность
Экология
Социальная инфраструктура
Планировки
Готовность
Входные группы
Двор, окружение
Расположение
Прям Москва-Сити, судя по сайту застройщика! Солидно)
Ответить
Полезный отзыв?
Добавьте отзыв, заполнив личные данные, или сначала войдите на сайт, тогда информация будет автоматически взята из личного профиля.
Оценка*