Рейтинг@Mail.ru
Переверните экран
Новостройки Квартиры Ипотека Новостройки Москвы Новостройки Подмосковья Новостройки Новой Москвы Готовые новостройки Новостройки на карте Акции от застройщиков Коммерческие помещения Продавцы и застройщики Панорамы новостроек Видеообзор новостроек Экспертиза новостроек Экология Москвы и Подмосковья Студии 1-комнатные 2-комнатные 3-комнатные Квартиры на карте Ипотечный калькулятор Семейная ипотека Военная ипотека Банки и программы Медиа Новости недвижимости Мнение эксперта Аналитика рынка Покупателю Экспертиза новостроек Эксперты и авторы О проекте Контакты Реклама на сайте Vk Youtube Telegram Дзен Машиноместа Апартаменты #траншевая ипотека #рассрочка ИТ-ипотека Квартиры со скидками до 40% Видео 360° новостроек Субсидированная застройщиком Rutube Поиск дома в Москве Программа реновации в Москве Новостройки премиум-класса Новостройки бизнес-класса Рассрочка Траншевая ипотека Дома и коттеджи Коттеджные поселки в Новой Москве Готовые коттеджные поселки Строящиеся коттеджные поселки Коттеджные поселки в лесу Коттеджные поселки у водоема Коттеджные поселки в ипотеку Бизнес-центры Коттеджи Ипотека со ставкой 0,1%
Данная квартира является лидером продаж среди двухкомнатных квартир в Никольский квартал «Отрада» по данным Росреестра
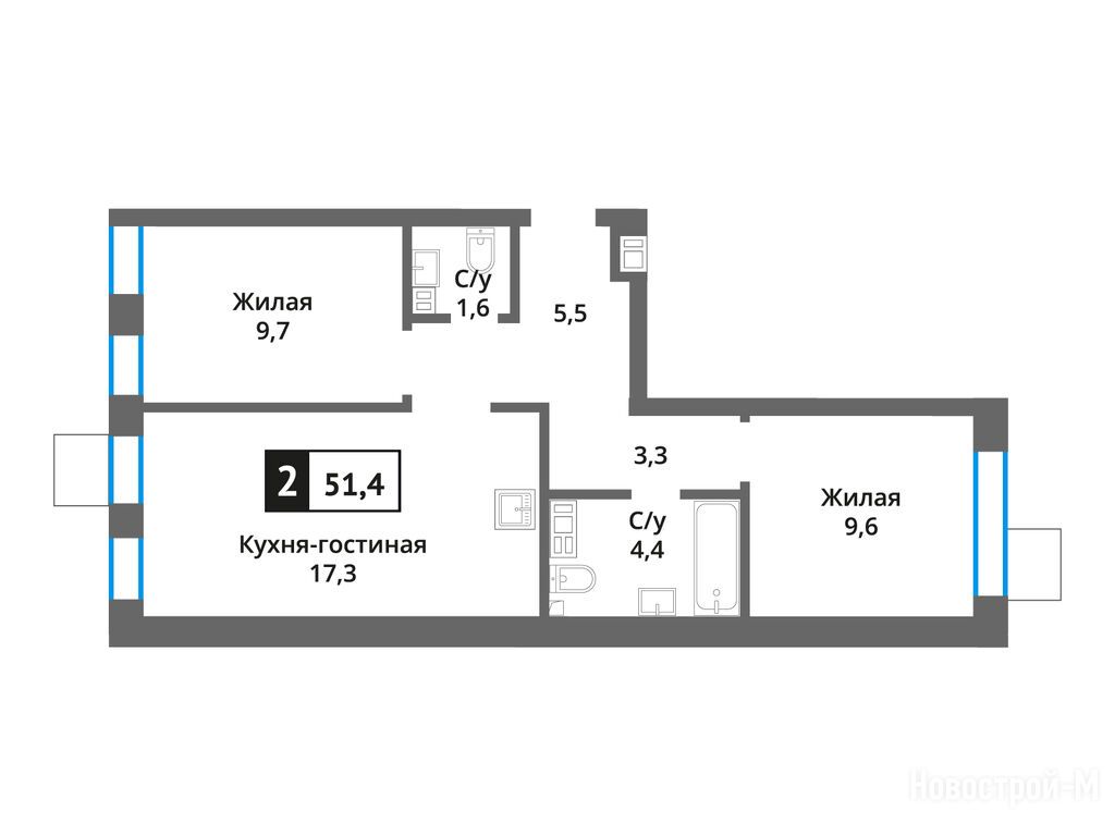
2-комн. квартира, 51.40 м2, 7 этаж
Срок сдачи 3 квартал 2027 года
10 860 353 
11 196 240
211 291 2
обновлено 30 мая

Описание 2-комн. квартиры

Срок ГК
3 квартал 2027 года
Стадия строительства
Общая площадь
51.40 м2
Этаж
7 / 9
Отделка
нет

Расположение 2-комн. квартиры

Метро
Станция МЦД
Дом
5
Адрес
мкр. Опалиха, Никольский квартал «Отрада», корп. 5, секция 4

Способы покупки

Особенности

Продается двухкомнатная квартира в новостройке Никольский квартал «Отрада» по адресу Московская область, Красногорск городской округ, Красногорск, Опалиха, мкр. Опалиха, Никольский квартал «Отрада», корп. 5. Общая площадь квартиры - 51.4 кв. м. Тип проекта, по которому построен дом — Монолитно-кирпичный,Кирпичный,Панельно-кирпичный, компания-застройщик — ООО СЗ «Отрада Вилладж». Стоимость квартиры — 10 860 353 руб. Способы оплаты можно уточнить у продавца. Срок сдачи — 3 квартал 2027. Более подробная информация по телефону.

Правовые документы

Инфоцентр новостроек
Инфоцентр новостроек
+7 (499) 705-91-41
Время работы 9:00 — 21:00

Похожие квартиры в Никольский квартал «Отрада»

3 этаж
из 9 3 квартал 2027
Московская область, Красногорск
Опалиха
9 мин.
5
Корпус
нет
Отделка
2.85 м
Потолки
Никольский квартал «Отрада»
10 979 447
Альфа-Банк, СберБанк, Сургутнефтегазбанк, Азиатско-Тихоокеанский Банк, Металлинвестбанк, Банк Санкт-Петербург, Абсолют Банк, Уралсиб, ДОМ.РФ, Московский Кредитный Банк
3.50%
Ставка
30.10%
Первый взнос
от 49 303 /мес.
Все варианты
студия 21,30 м2 6 419 927
Этаж 5/6
МО, Никольский квартал «Отрада»
Опалиха
9 мин.
Строится
студия 21,60 м2 6 631 280
Этаж 4/9
МО, Никольский квартал «Отрада»
Опалиха
9 мин.
Строится
студия 21,70 м2 5 747 711
Этаж 9/9
МО, Никольский квартал «Отрада»
Опалиха
9 мин.
Строится
студия 21,80 м2 6 731 017
Этаж 9/9
МО, Никольский квартал «Отрада»
Опалиха
9 мин.
Строится
Посмотреть 20 квартир в Никольский квартал «Отрада»
1-комн. квартира 30,90 м2 7 210 116
Этаж 9/9
МО, Никольский квартал «Отрада»
Опалиха
9 мин.
Строится
1-комн. квартира 31,20 м2 8 800 714
Этаж 9/9
МО, Никольский квартал «Отрада»
Опалиха
9 мин.
Строится
1-комн. квартира 31,30 м2 8 488 500
Этаж 9/9
МО, Никольский квартал «Отрада»
Опалиха
9 мин.
Строится
1-комн. квартира 31,40 м2 8 803 503
Этаж 8/9
МО, Никольский квартал «Отрада»
Опалиха
9 мин.
Строится
Посмотреть 140 квартир в Никольский квартал «Отрада»
2-комн. квартира 44,90 м2 9 973 019
Этаж 9/9
МО, Никольский квартал «Отрада»
Опалиха
9 мин.
Строится
2-комн. квартира 45,00 м2 9 794 508
Этаж 9/9
МО, Никольский квартал «Отрада»
Опалиха
9 мин.
Строится
2-комн. квартира 45,10 м2 9 663 388
Этаж 8/9
МО, Никольский квартал «Отрада»
Опалиха
9 мин.
Строится
2-комн. квартира 51,30 м2 11 834 400
Этаж 9/9
МО, Никольский квартал «Отрада»
Опалиха
9 мин.
Строится
Посмотреть 33 квартиры в Никольский квартал «Отрада»
3-комн. квартира 66,80 м2 14 210 546
Этаж 4/9
МО, Никольский квартал «Отрада»
Опалиха
9 мин.
Строится
3-комн. квартира 68,80 м2 14 545 827
Этаж 3/6
МО, Никольский квартал «Отрада»
Опалиха
9 мин.
Строится
3-комн. квартира 71,80 м2 15 408 163
Этаж 2/6
МО, Никольский квартал «Отрада»
Опалиха
9 мин.
Строится
3-комн. квартира 72,50 м2 15 745 837
Этаж 7/9
МО, Никольский квартал «Отрада»
Опалиха
9 мин.
Строится
Посмотреть 8 квартир в Никольский квартал «Отрада»

Скидки и спецпредложения от застройщиков

Никольский квартал «Отрада» на карте

Выгодные предложения на новостройки

Отзывы о Никольский квартал «Отрада»

Самый полезный отзыв
С
27 октября 2023
Оценка:
Достоинства
Транспортная доступность
Экология
Социальная инфраструктура
Расположение
Недостатки
Готовность
Довольно приличный квартал планируют построить, как я погляжу. Радует, что не гонятся за продажами и оставили нормальную высоту домов. Должно получиться здорово
Ответить
Самый новый отзыв
М
16 апреля
Оценка:
У нас это была не спонтанная покупка, мы почти год присматривались! Сравнивали с другими ЖК в Красногорске, считали бюджет, даже ездили смотреть в разное время суток...) В Никольском квартале зацепило сочетание спокойствия и доступности. Это вроде бы и не центр, но и не "глухое место". Квартира у нас с хорошим видом, без "окна в окна". Сейчас активно следим за чатом жителей и ждём сдачи!
Ответить

Оставить отзыв

Добавьте отзыв, заполнив личные данные, или сначала войдите на сайт, тогда информация будет автоматически взята из личного профиля.
Оценка*