Рейтинг@Mail.ru
Переверните экран
Новостройки Квартиры Ипотека Новостройки Москвы Новостройки Подмосковья Новостройки Новой Москвы Готовые новостройки Новостройки на карте Акции от застройщиков Коммерческие помещения Продавцы и застройщики Панорамы новостроек Видеообзор новостроек Экспертиза новостроек Экология Москвы и Подмосковья Студии 1-комнатные 2-комнатные 3-комнатные Квартиры на карте Ипотечный калькулятор Семейная ипотека Военная ипотека Банки и программы Медиа Новости недвижимости Мнение эксперта Аналитика рынка Покупателю Экспертиза новостроек Эксперты и авторы О проекте Контакты Реклама на сайте Vk Youtube Telegram Дзен Машиноместа Апартаменты #траншевая ипотека #рассрочка ИТ-ипотека Квартиры со скидками до 40% Видео 360° новостроек Субсидированная застройщиком Rutube Поиск дома в Москве Программа реновации в Москве Новостройки премиум-класса Новостройки бизнес-класса Рассрочка Траншевая ипотека Дома и коттеджи Коттеджные поселки в Новой Москве Готовые коттеджные поселки Строящиеся коттеджные поселки Коттеджные поселки в лесу Коттеджные поселки у водоема Коттеджные поселки в ипотеку Бизнес-центры Коттеджи Ипотека со ставкой 0,1%
2-комн. квартира, 174.70 м2, 3 этаж
Срок сдачи 3 квартал 2027 года
610 660 000 
3 495 478 2
обновлено 4 мая

Описание 2-комн. квартиры

Застройщик
Срок ГК
3 квартал 2027 года
Стадия строительства
монтаж средних этажей
Общая площадь
174.70 м2
Жилая площадь
104.60 м2
Площадь кухни
69.10 м2
Высота потолков
6.94
Этаж
3 / 13
Балкон
балкон
Отделка
нет
Тип санузла
2
Грузовой лифт
есть

Расположение 2-комн. квартиры

Локация
Дом
D
Адрес
Фрунзенская набережная, 30, секция 1

Особенности

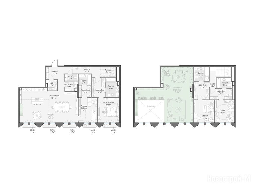
Продается двухкомнатная квартира в новостройке Клубный квартал «Фрунзенская набережная» по адресу Москва, ЦАО, Хамовники, Фрунзенская набережная, 30. Общая площадь квартиры - 174.7 кв. м. Тип проекта, по которому построен дом — Монолит, компания-застройщик — Sminex (Смайнекс). Стоимость квартиры — 610 660 000 руб. Способы оплаты можно уточнить у продавца. Срок сдачи — 3 квартал 2027. Более подробная информация по телефону.
+7 (499) 705-91-41
Время работы 9:00 — 21:00
1-комн. квартира 51,10 м2 274 350 000
Этаж 1/10
Москва, Клубный квартал «Фрунзенская набережная»
Фрунзенская
5 мин.
Строится
1-комн. квартира 55,20 м2 288 520 000
Этаж 1/10
Москва, Клубный квартал «Фрунзенская набережная»
Фрунзенская
5 мин.
Строится
1-комн. квартира 55,50 м2 277 740 000
Этаж 1/10
Москва, Клубный квартал «Фрунзенская набережная»
Фрунзенская
5 мин.
Строится
1-комн. квартира 58,20 м2 180 170 000
Этаж 5/12
Москва, Клубный квартал «Фрунзенская набережная»
Фрунзенская
5 мин.
Строится
Посмотреть 30 квартир в Клубном квартале «Фрунзенская набережная»
2-комн. квартира 89,30 м2 287 400 000
Этаж 8/12 балкон
Москва, Клубный квартал «Фрунзенская набережная»
Фрунзенская
5 мин.
Строится
2-комн. квартира 104,70 м2 360 670 000
Этаж 3/12 балкон
Москва, Клубный квартал «Фрунзенская набережная»
Фрунзенская
5 мин.
Строится
2-комн. квартира 108,10 м2 460 030 000
Этаж 10/12 балкон
Москва, Клубный квартал «Фрунзенская набережная»
Фрунзенская
5 мин.
Строится
2-комн. квартира 117,80 м2 398 660 000
Этаж 8/10 балкон
Москва, Клубный квартал «Фрунзенская набережная»
Фрунзенская
5 мин.
Строится
Посмотреть 22 квартиры в Клубном квартале «Фрунзенская набережная»
3-комн. квартира 145,40 м2 519 020 000
Этаж 9/12
Москва, Клубный квартал «Фрунзенская набережная»
Фрунзенская
5 мин.
Строится
3-комн. квартира 145,60 м2 368 400 000
Этаж 5/12
Москва, Клубный квартал «Фрунзенская набережная»
Фрунзенская
5 мин.
Строится
3-комн. квартира 147,40 м2 449 160 000
Этаж 8/12 балкон
Москва, Клубный квартал «Фрунзенская набережная»
Фрунзенская
5 мин.
Строится
3-комн. квартира 147,60 м2 407 050 000
Этаж 6/12 балкон
Москва, Клубный квартал «Фрунзенская набережная»
Фрунзенская
5 мин.
Строится
Посмотреть 46 квартир в Клубном квартале «Фрунзенская набережная»
4-комн. квартира 180,10 м2 508 210 000
Этаж 9/13
Москва, Клубный квартал «Фрунзенская набережная»
Фрунзенская
5 мин.
Строится
4-комн. квартира 184,10 м2 668 470 000
Этаж 10/13 балкон
Москва, Клубный квартал «Фрунзенская набережная»
Фрунзенская
5 мин.
Строится
4-комн. квартира 184,30 м2 552 930 000
Этаж 8/13 балкон
Москва, Клубный квартал «Фрунзенская набережная»
Фрунзенская
5 мин.
Строится
4-комн. квартира 184,40 м2 517 660 000
Этаж 6/13 балкон
Москва, Клубный квартал «Фрунзенская набережная»
Фрунзенская
5 мин.
Строится
Посмотреть 31 квартира в Клубном квартале «Фрунзенская набережная»
5-комн. квартира 184,20 м2 493 840 000
Этаж 4/13 балкон
Москва, Клубный квартал «Фрунзенская набережная»
Фрунзенская
5 мин.
Строится
5-комн. квартира 286,20 м2 1 480 500 000
Этаж 9/10 балкон
Москва, Клубный квартал «Фрунзенская набережная»
Фрунзенская
5 мин.
Строится
5-комн. квартира 293,50 м2 1 402 640 000
Этаж 9/10 балкон
Москва, Клубный квартал «Фрунзенская набережная»
Фрунзенская
5 мин.
Строится
5-комн. квартира 295,00 м2 1 337 230 000
Этаж 9/10 балкон
Москва, Клубный квартал «Фрунзенская набережная»
Фрунзенская
5 мин.
Строится
Посмотреть 7 квартир в Клубном квартале «Фрунзенская набережная»

Скидки и спецпредложения от застройщиков

Клубный квартал «Фрунзенская набережная» на карте

Выгодные предложения на новостройки

Отзывы о Клубном квартале «Фрунзенская набережная»

Самый полезный отзыв
А
14 апреля 2022
Оценка:
Достоинства
Транспортная доступность
Подземный паркинг
Двор, окружение
Расположение
К сожалению, о деталях проекте пока мало что известно( Но, отталкиваясь от существующих вводных, думаю, жк будет с заявочкой на элит/премиум, как минимум благодаря локации и транспортной доступности. Лично моё мнение касаемо архитектурной концепции: точечная застройка в историческом центре города должна адаптироваться под существующую архитектуру, а не наоборот! Поэтому в этом плане, ребята архитекторы молодцы, попали в точку... Ну и паркинг с машино-местами для автомобилей с увеличенными габаритами. Этим уже никого не удивишь, но всё же жирный плюс в копилку проекта.
Показать все комментарии
Ответить
Самый новый отзыв
М
31 марта
Оценка:
Сейчас актуальнее не ресторан на первом этаже, а то, что может помочь отдохнуть и восстановиться. Парк, прогулка, бассейн, сауна вещи довольно простые, но приятно, когда они доступны без усилий. В этом смысле квартал выигрышнее смотрится на фоне рынка недвижимости этой локации
Ответить

Оставить отзыв

Добавьте отзыв, заполнив личные данные, или сначала войдите на сайт, тогда информация будет автоматически взята из личного профиля.
Оценка*