Рейтинг@Mail.ru
Переверните экран
Новостройки Квартиры Ипотека Новостройки Москвы Новостройки Подмосковья Новостройки Новой Москвы Готовые новостройки Новостройки на карте Акции от застройщиков Коммерческие помещения Продавцы и застройщики Панорамы новостроек Видеообзор новостроек Экспертиза новостроек Экология Москвы и Подмосковья Студии 1-комнатные 2-комнатные 3-комнатные Квартиры на карте Ипотечный калькулятор Семейная ипотека Военная ипотека Банки и программы Медиа Новости недвижимости Мнение эксперта Аналитика рынка Покупателю Экспертиза новостроек Эксперты и авторы О проекте Контакты Реклама на сайте Vk Youtube Telegram Дзен Машиноместа Апартаменты #траншевая ипотека #рассрочка ИТ-ипотека Квартиры со скидками до 35% Видео 360° новостроек Субсидированная застройщиком Rutube Поиск дома в Москве Программа реновации в Москве Новостройки премиум-класса Новостройки бизнес-класса Рассрочка Траншевая ипотека Дома и коттеджи Бизнес-центры Бизнес-центры в Москве Бизнес-центры рядом с метро Строящиеся бизнес-центры Бизнес-центры класса A Бизнес-центры класса B Ипотека со ставкой 0,1%
Данное предложение на 04.03.2026 неактуально. Пожалуйста, ознакомьтесь с другими похожими предложениями в ЖК DOM SMILE (Дом Смайл) .
2-комн. апартамент, 36.00 м2, 15 этаж
Сдан
6 552 000 
182 000 2
обновлено 18 декабря

Описание 2-комн. апартамента

Новостройка
Срок ГК
Дом сдан
Стадия строительства
выдача ключей + заселение
Тип проекта
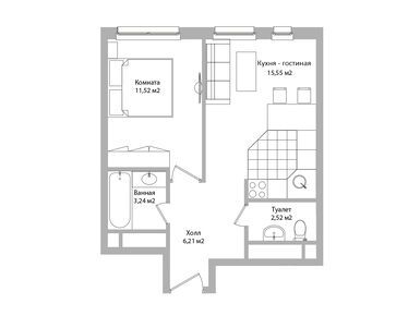
Общая площадь
36.00 м2
Жилая площадь
10.87 м2
Площадь кухни
14.69 м2
Этаж
15 / 16
Отделка
нет
Мусоропровод
есть

Расположение 2-комн. апартамента

Метро
Ж/Д-станция
Мытищи
14 мин.
Дом
23
Адрес
ул. Колпакова, мкр. 17, корп. 23, секция Б

Особенности

Продается двухкомнатный апартамент в новостройке ЖК DOM SMILE (Дом Смайл) по адресу Московская область, Мытищи городской округ, Мытищи, ул. Колпакова, мкр. 17, корп. 23. Общая площадь апартамента - 36 кв. м. Тип проекта, по которому построен дом — Монолит, компания-застройщик — ООО СЗ АРТКЛАСС-ДЕВЕЛОПМЕНТ. Стоимость апартамента — 6 552 000 руб. Способы оплаты можно уточнить у продавца. Более подробная информация по телефону.
Инфоцентр новостроек
Инфоцентр новостроек
Время работы 9:00 — 21:00
Выбирайте апартаменты в ЖК DOM SMILE (Дом Смайл) по ценам от застройщика

Похожие апартаменты в ЖК DOM SMILE (Дом Смайл)

13 этаж
из 16 Дом сдан
Московская область, Мытищи городской округ
Медведково
15 мин.
23
Корпус
нет
Отделка
2.75 м
Потолки
ЖК DOM SMILE (Дом Смайл)
6 984 000
14 этаж
из 16 Дом сдан
Московская область, Мытищи городской округ
Медведково
15 мин.
23
Корпус
нет
Отделка
2.75 м
Потолки
ЖК DOM SMILE (Дом Смайл)
6 984 000
Этаж 2/16
МО, ЖК DOM SMILE (Дом Смайл)
Медведково
15 мин.
Сдан
Этаж 2/16
МО, ЖК DOM SMILE (Дом Смайл)
Медведково
15 мин.
Сдан
Этаж 2/16
МО, ЖК DOM SMILE (Дом Смайл)
Медведково
15 мин.
Сдан
Этаж 2/16
МО, ЖК DOM SMILE (Дом Смайл)
Медведково
15 мин.
Сдан
Этаж 16/16
МО, ЖК DOM SMILE (Дом Смайл)
Медведково
15 мин.
Сдан
1-комн. апартамент 27,30 м2 6 142 500
Этаж 14/16
МО, ЖК DOM SMILE (Дом Смайл)
Медведково
15 мин.
Сдан
1-комн. апартамент 31,20 м2 6 240 000
Этаж 7/16
МО, ЖК DOM SMILE (Дом Смайл)
Медведково
15 мин.
Сдан
2-комн. апартамент 33,60 м2 6 652 800
Этаж 16/16
МО, ЖК DOM SMILE (Дом Смайл)
Медведково
15 мин.
Сдан
2-комн. апартамент 36,00 м2 6 984 000
Этаж 13/16
МО, ЖК DOM SMILE (Дом Смайл)
Медведково
15 мин.
Сдан
2-комн. апартамент 36,20 м2 7 022 800
Этаж 16/16
МО, ЖК DOM SMILE (Дом Смайл)
Медведково
15 мин.
Сдан
2-комн. апартамент 36,70 м2 7 119 800
Этаж 16/16
МО, ЖК DOM SMILE (Дом Смайл)
Медведково
15 мин.
Сдан
Посмотреть 42 апартамента в ЖК DOM SMILE (Дом Смайл)
3-комн. апартамент 61,40 м2 10 069 600
Этаж 5/16
МО, ЖК DOM SMILE (Дом Смайл)
Медведково
15 мин.
Сдан

Скидки и спецпредложения от застройщиков

ЖК DOM SMILE (Дом Смайл) на карте

Выгодные предложения на новостройки

Отзывы о ЖК DOM SMILE (Дом Смайл)

Самый полезный отзыв
А
14 декабря 2021
Оценка:
Я думаю, что спрос на недвижимость будет всегда, тем более там где выгодные предложения. Например, здесь никаких строек вокруг тебя, консьерж, парковка для жителей у дома бесплатная и квартиры предлагают разные. Не нравятся маленькие студии, есть евродвушки и евротрешки на выбор.Вот регистрация будет только временная, ее нужно будет продлевать, но надеюсь это возьмёт на себя УК. А цен таких даже в Мытищах поди поищи.
Ответить
Полезный отзыв?
Самый новый отзыв
ЭЛ
10 апреля 2025
Оценка:
Планировки
Способы покупки
Внешний вид фасада
Входные группы
Двор, окружение
Расположение
Хороший район, дом новый, расположение очень хорошее. В доме есть салон красоты, ресторан, отель, апартаменты, много разных частных организаций, типа маникюра, бровиста и т.п Расположен удобно: как для выезда на шоссе, так и для общих развлечений: недалеко от торговых центров
Ответить
Полезный отзыв?
Добавьте отзыв, заполнив личные данные, или сначала войдите на сайт, тогда информация будет автоматически взята из личного профиля.
Оценка*