Рейтинг@Mail.ru
Переверните экран
Новостройки Квартиры Ипотека Новостройки Москвы Новостройки Подмосковья Новостройки Новой Москвы Готовые новостройки Новостройки на карте Акции от застройщиков Коммерческие помещения Продавцы и застройщики Панорамы новостроек Видеообзор новостроек Экспертиза новостроек Экология Москвы и Подмосковья Студии 1-комнатные 2-комнатные 3-комнатные Квартиры на карте Ипотечный калькулятор Семейная ипотека Военная ипотека Банки и программы Медиа Новости недвижимости Мнение эксперта Аналитика рынка Покупателю Экспертиза новостроек Эксперты и авторы О проекте Контакты Реклама на сайте Vk Youtube Telegram Дзен Машиноместа Апартаменты #траншевая ипотека #рассрочка ИТ-ипотека Квартиры со скидками до 40% Видео 360° новостроек Субсидированная застройщиком Rutube Поиск дома в Москве Программа реновации в Москве Новостройки премиум-класса Новостройки бизнес-класса Рассрочка Траншевая ипотека Дома и коттеджи Коттеджные поселки в Новой Москве Готовые коттеджные поселки Строящиеся коттеджные поселки Коттеджные поселки в лесу Коттеджные поселки у водоема Коттеджные поселки в ипотеку Бизнес-центры Коттеджи Ипотека со ставкой 0,1%
Данное помещение является лидером продаж среди студий в «Мираполис» по данным Росреестра
помещение-студия, 20.70 м2, 15 этаж
Срок сдачи 4 квартал 2027 года
10 418 310 
503 300 2
обновлено 4 мая

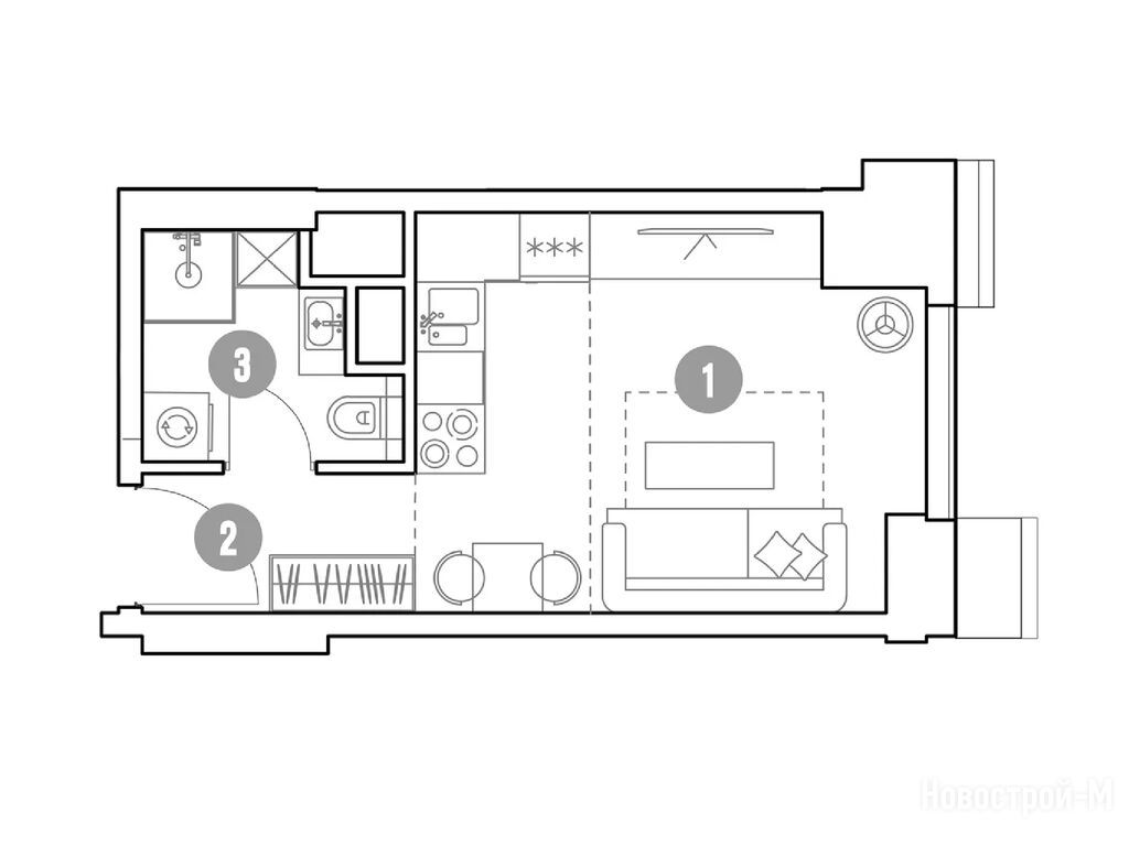
Описание помещения-студии

Новостройка
Застройщик
Срок ГК
4 квартал 2027 года
Стадия строительства
монтаж верхних этажей
Тип проекта
Общая площадь
20.70 м2
Площадь
9.20 м2
Площадь кухни
5.00 м2
Этаж
15 / 33

Расположение помещения-студии

Локация
Метро
Станция МЦК
Дом
2
Адрес
пр-кт Мира, вл. 222, секция 1

Способы покупки

Особенности

Продается помещение-студия в новостройке «Мираполис» по адресу Москва, СВАО, Ярославский, пр-кт Мира, вл. 222. Общая площадь помещения - 20.7 кв. м. Тип проекта, по которому построен дом — Монолит, компания-застройщик — ГК «Основа». Стоимость помещения — 10 418 310 руб. Способы оплаты можно уточнить у продавца. Срок сдачи — 2 квартал 2028. Более подробная информация по телефону.
Инфоцентр новостроек
Инфоцентр новостроек
+7 (499) 705-91-41
Время работы 9:00 — 21:00
помещение-студия 19,90 м2 9 486 330
Этаж 16/35
Москва, «Мираполис»
Ростокино
3 мин.
Строится
помещение-студия 20,00 м2 10 330 000
Этаж 20/33
Москва, «Мираполис»
Ростокино
3 мин.
Строится
помещение-студия 20,10 м2 10 401 750
Этаж 26/33
Москва, «Мираполис»
Ростокино
3 мин.
Строится
помещение-студия 20,60 м2 10 079 580
Этаж 11/35
Москва, «Мираполис»
Ростокино
3 мин.
Строится
Посмотреть 36 помещений в «Мираполис»
Этаж 12/35
Москва, «Мираполис»
Ростокино
3 мин.
Строится
Этаж 19/35
Москва, «Мираполис»
Ростокино
3 мин.
Строится
1-комн. помещение 35,70 м2 15 779 400
Этаж 32/35
Москва, «Мираполис»
Ростокино
3 мин.
Строится
1-комн. помещение 35,90 м2 15 024 150
Этаж 24/35
Москва, «Мираполис»
Ростокино
3 мин.
Строится
Посмотреть 83 помещения в «Мираполис»
Этаж 20/35
Москва, «Мираполис»
Ростокино
3 мин.
Строится
2-комн. помещение 37,80 м2 15 029 280
Этаж 19/35
Москва, «Мираполис»
Ростокино
3 мин.
Строится
2-комн. помещение 37,90 м2 14 045 740
Этаж 6/35
Москва, «Мираполис»
Ростокино
3 мин.
Строится
2-комн. помещение 38,00 м2 15 526 800
Этаж 32/35
Москва, «Мираполис»
Ростокино
3 мин.
Строится
Посмотреть 156 помещений в «Мираполис»
3-комн. помещение 61,70 м2 21 089 060
Этаж 6/35
Москва, «Мираполис»
Ростокино
3 мин.
Строится
3-комн. помещение 62,10 м2 21 703 950
Этаж 18/35
Москва, «Мираполис»
Ростокино
3 мин.
Строится
3-комн. помещение 62,50 м2 21 511 875
Этаж 24/35
Москва, «Мираполис»
Ростокино
3 мин.
Строится
3-комн. помещение 63,20 м2 22 210 250
Этаж 22/33
Москва, «Мираполис»
Ростокино
3 мин.
Строится
Посмотреть 22 помещения в «Мираполис»
4-комн. помещение 92,00 м2 31 188 000
Этаж 23/35
Москва, «Мираполис»
Ростокино
3 мин.
Строится
4-комн. помещение 92,20 м2 31 624 600
Этаж 27/35
Москва, «Мираполис»
Ростокино
3 мин.
Строится
4-комн. помещение 92,50 м2 32 190 000
Этаж 23/35
Москва, «Мираполис»
Ростокино
3 мин.
Строится
4-комн. помещение 92,60 м2 33 428 600
Этаж 28/35
Москва, «Мираполис»
Ростокино
3 мин.
Строится
Посмотреть 16 помещений в «Мираполис»

Скидки и спецпредложения от застройщиков

«Мираполис» на карте

Выгодные предложения на новостройки

Отзывы о «Мираполис»

Самый полезный отзыв
ГВ
09 декабря 2022
Оценка:
Достоинства
Транспортная доступность
Расположение
Очень удобное расположение дома, все необходимое рядом: и для работы и для отдыха.
Ответить
Самый новый отзыв
И
13 апреля
Оценка:
Любой бытовой повседневный вопрос можно будет решить, не покидая пределов комплекса. В Мираполисе планируется вся необходимая инфраструктура на территории, так что купить продукты, выпить вкусный кофе, позаниматься спортом, поработать или что-то еще - все это можно сделать в буквальном смысле у себя дома)
Ответить

Оставить отзыв

Добавьте отзыв, заполнив личные данные, или сначала войдите на сайт, тогда информация будет автоматически взята из личного профиля.
Оценка*