Рейтинг@Mail.ru
Переверните экран
Новостройки Квартиры Ипотека Новостройки Москвы Новостройки Подмосковья Новостройки Новой Москвы Готовые новостройки Новостройки на карте Акции от застройщиков Коммерческие помещения Продавцы и застройщики Панорамы новостроек Видеообзор новостроек Экспертиза новостроек Экология Москвы и Подмосковья Студии 1-комнатные 2-комнатные 3-комнатные Квартиры на карте Ипотечный калькулятор Семейная ипотека Военная ипотека Банки и программы Медиа Новости недвижимости Мнение эксперта Аналитика рынка Покупателю Экспертиза новостроек Эксперты и авторы О проекте Контакты Реклама на сайте Vk Youtube Telegram Дзен Машиноместа Апартаменты #траншевая ипотека #рассрочка ИТ-ипотека Квартиры со скидками до 40% Видео 360° новостроек Субсидированная застройщиком Rutube Поиск дома в Москве Программа реновации в Москве Новостройки премиум-класса Новостройки бизнес-класса Рассрочка Траншевая ипотека Дома и коттеджи Бизнес-центры Бизнес-центры в Москве Бизнес-центры рядом с метро Строящиеся бизнес-центры Бизнес-центры класса A Бизнес-центры класса B Ипотека со ставкой 0,1%
Данное помещение является лидером продаж среди студий в «Мираполис» по данным Росреестра
помещение-студия, 31.90 м2, 18 этаж
Срок сдачи 2 квартал 2026 года
12 584 550 
394 500 2
обновлено 20 марта

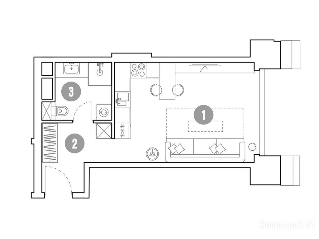
Описание помещения-студии

Новостройка
Застройщик
Срок ГК
2 квартал 2026 года
Стадия строительства
Тип проекта
Общая площадь
31.90 м2
Площадь
16.10 м2
Площадь кухни
5.00 м2
Этаж
18 / 35

Расположение помещения-студии

Локация
Метро
Станция МЦК
Дом
1
Адрес
проспект Мира, 222, секция 4

Способы покупки

Особенности

Продается помещение-студия в новостройке «Мираполис» по адресу Москва, СВАО, Ярославский, проспект Мира, 222. Общая площадь помещения - 31.9 кв. м. Тип проекта, по которому построен дом — Монолит, компания-застройщик — ГК «Основа». Стоимость помещения — 12 584 550 руб. Способы оплаты можно уточнить у продавца. Срок сдачи — 2 квартал 2026. Более подробная информация по телефону.
Инфоцентр новостроек
Инфоцентр новостроек
+7 (499) 705-91-41
Время работы 9:00 — 21:00

Похожие помещения в «Мираполис»

19 этаж
из 35 2 квартал 2026
Москва, СВАО
Ростокино
3 мин.
1
Корпус
нет данных
Отделка
3.00 м
Потолки
«Мираполис»
12 622 830
Промсвязьбанк, Альфа-Банк, СберБанк, ДОМ.РФ
18.69%
Ставка
20.01%
Первый взнос
от 197 357 /мес.
Все варианты
22 этаж
из 35 2 квартал 2026
Москва, СВАО
Ростокино
3 мин.
1
Корпус
нет данных
Отделка
3.00 м
Потолки
«Мираполис»
12 648 350
Промсвязьбанк, Альфа-Банк, СберБанк, ДОМ.РФ
18.69%
Ставка
20.01%
Первый взнос
от 197 756 /мес.
Все варианты
помещение-студия 19,90 м2 9 446 530
Этаж 16/35
Москва, «Мираполис»
Ростокино
3 мин.
Строится
помещение-студия 20,00 м2 10 290 000
Этаж 20/33
Москва, «Мираполис»
Ростокино
3 мин.
Строится
помещение-студия 20,10 м2 10 361 550
Этаж 26/33
Москва, «Мираполис»
Ростокино
3 мин.
Строится
помещение-студия 20,60 м2 10 038 380
Этаж 11/35
Москва, «Мираполис»
Ростокино
3 мин.
Строится
Посмотреть 34 помещения в «Мираполис»
1-комн. помещение 35,70 м2 15 708 000
Этаж 32/35
Москва, «Мираполис»
Ростокино
3 мин.
Строится
1-комн. помещение 35,90 м2 14 952 350
Этаж 24/35
Москва, «Мираполис»
Ростокино
3 мин.
Строится
1-комн. помещение 36,10 м2 14 566 350
Этаж 13/33
Москва, «Мираполис»
Ростокино
3 мин.
Строится
1-комн. помещение 37,70 м2 13 515 450
Этаж 6/35
Москва, «Мираполис»
Ростокино
3 мин.
Строится
Посмотреть 75 помещений в «Мираполис»
2-комн. помещение 37,60 м2 13 483 360
Этаж 5/35
Москва, «Мираполис»
Ростокино
3 мин.
Строится
2-комн. помещение 37,80 м2 14 953 680
Этаж 19/35
Москва, «Мираполис»
Ростокино
3 мин.
Строится
2-комн. помещение 37,90 м2 14 121 540
Этаж 8/35
Москва, «Мираполис»
Ростокино
3 мин.
Строится
2-комн. помещение 38,00 м2 15 450 800
Этаж 32/35
Москва, «Мираполис»
Ростокино
3 мин.
Строится
Посмотреть 150 помещений в «Мираполис»
3-комн. помещение 61,70 м2 20 965 660
Этаж 6/35
Москва, «Мираполис»
Ростокино
3 мин.
Строится
Этаж 18/35
Москва, «Мираполис»
Ростокино
3 мин.
Строится
Этаж 24/35
Москва, «Мираполис»
Ростокино
3 мин.
Строится
3-комн. помещение 63,20 м2 21 772 400
Этаж 15/33
Москва, «Мираполис»
Ростокино
3 мин.
Строится
Посмотреть 22 помещения в «Мираполис»
4-комн. помещение 92,00 м2 31 004 000
Этаж 23/35
Москва, «Мираполис»
Ростокино
3 мин.
Строится
4-комн. помещение 92,20 м2 31 440 200
Этаж 27/35
Москва, «Мираполис»
Ростокино
3 мин.
Строится
4-комн. помещение 92,50 м2 32 005 000
Этаж 23/35
Москва, «Мираполис»
Ростокино
3 мин.
Строится
4-комн. помещение 92,60 м2 33 243 400
Этаж 28/35
Москва, «Мираполис»
Ростокино
3 мин.
Строится
Посмотреть 16 помещений в «Мираполис»

Скидки и спецпредложения от застройщиков

«Мираполис» на карте

Выгодные предложения на новостройки

Отзывы о «Мираполис»

Самый полезный отзыв
ГВ
09 декабря 2022
Оценка:
Достоинства
Транспортная доступность
Расположение
Очень удобное расположение дома, все необходимое рядом: и для работы и для отдыха.
Ответить
Самый новый отзыв
М
13 марта
Оценка:
Мираполис выбирают из-за возможности быстро добраться в дальнейшем из дома до работы/учебы/или просто в центр для встречи с друзьями. На машине или общественном транспорте - не важно, полчаса и ты на месте. Я лично во многом поэтому и выбрал этот комлпекс.
Ответить

Оставить отзыв

Добавьте отзыв, заполнив личные данные, или сначала войдите на сайт, тогда информация будет автоматически взята из личного профиля.
Оценка*