Рейтинг@Mail.ru
Переверните экран
Новостройки Квартиры Ипотека Новостройки Москвы Новостройки Подмосковья Новостройки Новой Москвы Готовые новостройки Новостройки на карте Акции от застройщиков Коммерческие помещения Продавцы и застройщики Панорамы новостроек Видеообзор новостроек Экспертиза новостроек Экология Москвы и Подмосковья Студии 1-комнатные 2-комнатные 3-комнатные Квартиры на карте Ипотечный калькулятор Семейная ипотека Военная ипотека Банки и программы Медиа Новости недвижимости Мнение эксперта Аналитика рынка Покупателю Экспертиза новостроек Эксперты и авторы О проекте Контакты Реклама на сайте Vk Youtube Telegram Дзен Машиноместа Апартаменты #траншевая ипотека #рассрочка IT-ипотека Квартиры со скидками до 40% Видео 360° новостроек Субсидированная застройщиком Rutube Поиск дома в Москве Программа реновации в Москве Новостройки премиум-класса Новостройки бизнес-класса Рассрочка Траншевая ипотека Дома и коттеджи Бизнес-центры Бизнес-центры в Москве Бизнес-центры рядом с метро Строящиеся бизнес-центры Бизнес-центры класса A Бизнес-центры класса B
Данное помещение является лидером продаж среди студий в Emotion (Эмоушен) по данным Росреестра
помещение-студия, 28.20 м2, 22 этаж
Срок сдачи 2 квартал 2027 года
18 296 160 
648 800 2
обновлено 3 февраля

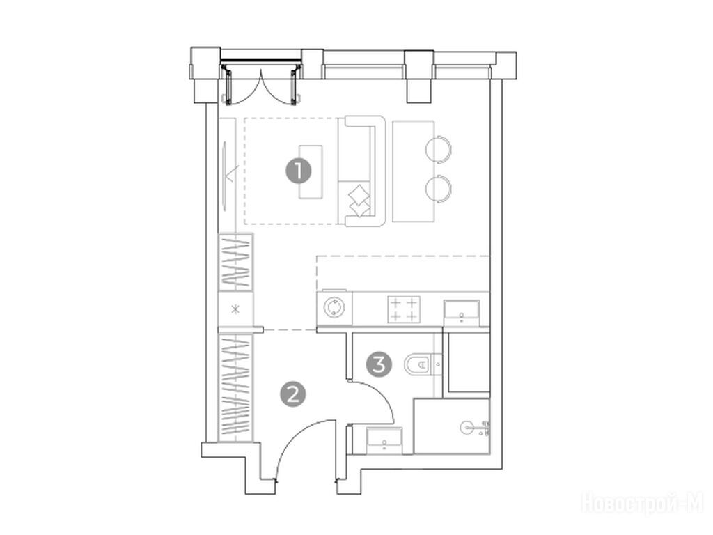
Описание помещения-студии

Новостройка
Срок ГК
2 квартал 2027 года
Стадия строительства
Общая площадь
28.20 м2
Площадь
14.10 м2
Площадь кухни
5.00 м2
Этаж
22 / 27

Расположение помещения-студии

Локация
Станция МЦД
Станция МЦК
Дом
1
Адрес
2-й Силикатный пр-д., вл. 8, секция 1

Способы покупки

Особенности

Продается помещение-студия в новостройке Emotion (Эмоушен) по адресу Москва, СЗАО, Хорошево-Мневники, 2-й Силикатный пр-д., вл. 8. Общая площадь помещения - 28.2 кв. м. Тип проекта, по которому построен дом — Монолитно-кирпичный, компания-застройщик — ГК «Основа», СЗ «СИЛИКАТДЕВЕЛОПМЕНТ». Стоимость помещения — 18 296 160 руб. Способы оплаты можно уточнить у продавца. Срок сдачи — 2 квартал 2027. Более подробная информация по телефону.
Инфоцентр новостроек
Инфоцентр новостроек
+7 (499) 705-91-41
Время работы 9:00 — 21:00

Похожие помещения в Emotion (Эмоушен)

4 этаж
из 27 2 квартал 2027
Москва, СЗАО
Звенигородская (2026)
5 мин.
1
Корпус
нет данных
Отделка
2.96 м
Потолки
Emotion (Эмоушен)
16 378 560
ВТБ, ДОМ.РФ
19.90%
Ставка
20.10%
Первый взнос
от 272 342 /мес.
Все варианты
8 этаж
из 27 2 квартал 2027
Москва, СЗАО
Звенигородская (2026)
5 мин.
1
Корпус
нет данных
Отделка
2.96 м
Потолки
Emotion (Эмоушен)
17 061 000
ВТБ, ДОМ.РФ
19.90%
Ставка
20.10%
Первый взнос
от 283 689 /мес.
Все варианты
Посмотреть все спецпредложения
Этаж 6/26
Москва, Emotion (Эмоушен)
Звенигородская (2026)
5 мин.
Строится
Этаж 14/27
Москва, Emotion (Эмоушен)
Звенигородская (2026)
5 мин.
Строится
помещение-студия 27,30 м2 16 456 440
Этаж 9/27
Москва, Emotion (Эмоушен)
Звенигородская (2026)
5 мин.
Строится
помещение-студия 28,20 м2 16 378 560
Этаж 4/27
Москва, Emotion (Эмоушен)
Звенигородская (2026)
5 мин.
Строится
Посмотреть 8 помещений в Emotion (Эмоушен)
1-комн. помещение 43,50 м2 20 727 750
Этаж 10/26
Москва, Emotion (Эмоушен)
Звенигородская (2026)
5 мин.
Строится
1-комн. помещение 44,00 м2 21 120 000
Этаж 13/26
Москва, Emotion (Эмоушен)
Звенигородская (2026)
5 мин.
Строится
2-комн. помещение 41,30 м2 19 266 450
Этаж 3/27
Москва, Emotion (Эмоушен)
Звенигородская (2026)
5 мин.
Строится
2-комн. помещение 42,50 м2 19 826 250
Этаж 3/27
Москва, Emotion (Эмоушен)
Звенигородская (2026)
5 мин.
Строится
2-комн. помещение 43,80 м2 21 702 900
Этаж 18/26
Москва, Emotion (Эмоушен)
Звенигородская (2026)
5 мин.
Строится
2-комн. помещение 44,40 м2 21 201 000
Этаж 11/26
Москва, Emotion (Эмоушен)
Звенигородская (2026)
5 мин.
Строится
Посмотреть 36 помещений в Emotion (Эмоушен)
3-комн. помещение 52,10 м2 24 038 940
Этаж 2/27
Москва, Emotion (Эмоушен)
Звенигородская (2026)
5 мин.
Строится
3-комн. помещение 53,00 м2 25 514 200
Этаж 12/27
Москва, Emotion (Эмоушен)
Звенигородская (2026)
5 мин.
Строится
3-комн. помещение 55,10 м2 26 855 740
Этаж 23/27
Москва, Emotion (Эмоушен)
Звенигородская (2026)
5 мин.
Строится
3-комн. помещение 61,60 м2 29 469 440
Этаж 23/27
Москва, Emotion (Эмоушен)
Звенигородская (2026)
5 мин.
Строится
Посмотреть 51 помещение в Emotion (Эмоушен)
4-комн. помещение 85,70 м2 40 390 410
Этаж 6/26
Москва, Emotion (Эмоушен)
Звенигородская (2026)
5 мин.
Строится
4-комн. помещение 91,20 м2 42 982 560
Этаж 22/27
Москва, Emotion (Эмоушен)
Звенигородская (2026)
5 мин.
Строится
4-комн. помещение 100,00 м2 47 320 000
Этаж 25/27
Москва, Emotion (Эмоушен)
Звенигородская (2026)
5 мин.
Строится

Скидки и спецпредложения от застройщиков

Emotion (Эмоушен) на карте

Выгодные предложения на новостройки

Отзывы о Emotion (Эмоушен)

Самый полезный отзыв
А
08 декабря 2023
Оценка:
Отличный проект! Мне особенно понравилась необычная архитектура, она сразу привлекает внимание. Двор будет закрытым, территория большая, а СПА-комплекс просто потрясающий. Повезло тем, кто будет тут жить.
Ответить
Полезный отзыв?
Самый новый отзыв
Л
21 января
Оценка:
Впечатляет внутренняя инфраструктура комплекса. Тут же можно провести срочный созвон или встречу, развлечь детей, сходить в спа. Несмотря на то, что у жк классное расположение, окружающий район от и до развит, но будет гораздо удобней, когда все сосредоточено в одном месте. Минусов не наблюдаю.
Ответить
Полезный отзыв?
Добавьте отзыв, заполнив личные данные, или сначала войдите на сайт, тогда информация будет автоматически взята из личного профиля.
Оценка*