Рейтинг@Mail.ru
Переверните экран
Новостройки Квартиры Ипотека Новостройки Москвы Новостройки Подмосковья Новостройки Новой Москвы Готовые новостройки Новостройки на карте Акции от застройщиков Коммерческие помещения Продавцы и застройщики Панорамы новостроек Видеообзор новостроек Экспертиза новостроек Экология Москвы и Подмосковья Студии 1-комнатные 2-комнатные 3-комнатные Квартиры на карте Ипотечный калькулятор Семейная ипотека Военная ипотека Банки и программы Медиа Новости недвижимости Мнение эксперта Аналитика рынка Покупателю Экспертиза новостроек Эксперты и авторы О проекте Контакты Реклама на сайте Vk Youtube Telegram Дзен Машиноместа Апартаменты #траншевая ипотека #рассрочка IT-ипотека Квартиры со скидками до 40% Видео 360° новостроек Субсидированная застройщиком Rutube Поиск дома в Москве Программа реновации в Москве Новостройки премиум-класса Новостройки бизнес-класса Рассрочка Траншевая ипотека ГАЛС Дома и коттеджи Бизнес-центры Бизнес-центры в Москве Бизнес-центры рядом с метро Строящиеся бизнес-центры Бизнес-центры класса A Бизнес-центры класса B ЛСР
1-комн. квартира, 27.77 м2, 1 этаж
Сдан
7 775 600 
280 000 2
обновлено 15 декабря

Описание 1-комн. квартиры

Срок ГК
Дом сдан
Стадия строительства
Общая площадь
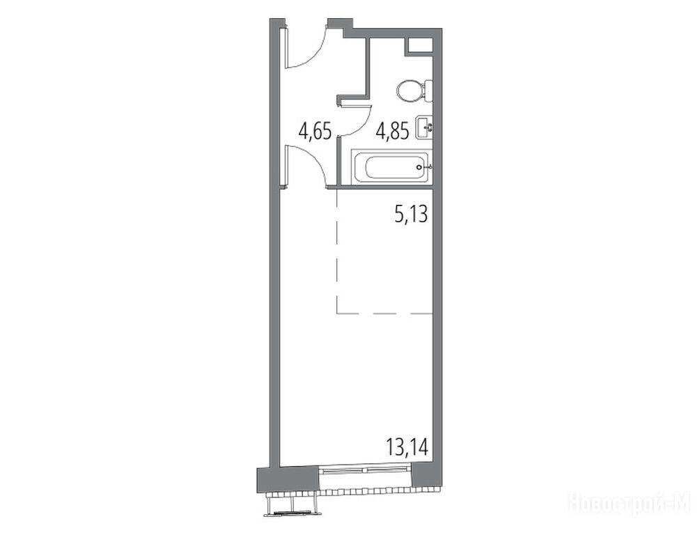
27.77 м2
Этаж
1 / 4
Грузовой лифт
есть

Расположение 1-комн. квартиры

Метро
Станция МЦД
Дом
1
Адрес
ул. Третьяковская, д. 1

Особенности

Продается однокомнатная квартира в новостройке Клубный дом «Малые Вешки» по адресу Московская область, Мытищи городской округ, Мытищи, Вешки пос., ул. Третьяковская, д. 1. Общая площадь квартиры - 27.77 кв. м. Тип проекта, по которому построен дом — Монолитно-кирпичный, компания-застройщик — ГК Атлант, ООО «СЗ «МИСУ». Стоимость квартиры — 7 775 600 руб. Способы оплаты можно уточнить у продавца. Более подробная информация по телефону.
Инфоцентр новостроек
Инфоцентр новостроек
Время работы 9:00 — 21:00
Выбирайте квартиру в Клубный дом «Малые Вешки» по ценам от застройщика
Посмотреть все спецпредложения
студия 26,62 м2 7 986 000
Этаж 3/4
МО, Клубный дом «Малые Вешки»
Алтуфьево
12 мин.
Сдан
студия 27,25 м2 8 992 500
Этаж 3/4
МО, Клубный дом «Малые Вешки»
Алтуфьево
12 мин.
Сдан
студия 28,02 м2 9 246 600
Этаж 3/4
МО, Клубный дом «Малые Вешки»
Алтуфьево
12 мин.
Сдан
студия 28,13 м2 8 157 700
Этаж 2/4
МО, Клубный дом «Малые Вешки»
Алтуфьево
12 мин.
Сдан
Посмотреть 7 квартир в Клубном доме «Малые Вешки»

Скидки и спецпредложения от застройщиков

Клубный дом «Малые Вешки» на карте

Выгодные предложения на новостройки

Отзывы о Клубном доме «Малые Вешки»

Самый полезный отзыв
АМ
01 ноября 2024
Оценка:
Экология
Планировки
Готовность
Дом высокой готовности, уже занимаются двором и прилежащей территорией. Кстати, хоть дом и близко к МКАД, но здесь хорошая экология, т.к. рядом крупный лесной массив.
Ответить
Полезный отзыв?
Самый новый отзыв
ТВ
03 декабря
Оценка:
Дом построен качественно. Малоэтажность это конечно огромный плюс, никакого ощущения муравейника. Надеюсь, соседи будут приятные и не шумные люди.
Ответить
Полезный отзыв?
Добавьте отзыв, заполнив личные данные, или сначала войдите на сайт, тогда информация будет автоматически взята из личного профиля.
Оценка*