Рейтинг@Mail.ru
Переверните экран
Новостройки Квартиры Ипотека Новостройки Москвы Новостройки Подмосковья Новостройки Новой Москвы Готовые новостройки Новостройки на карте Акции от застройщиков Коммерческие помещения Продавцы и застройщики Панорамы новостроек Видеообзор новостроек Экспертиза новостроек Экология Москвы и Подмосковья Студии 1-комнатные 2-комнатные 3-комнатные Квартиры на карте Ипотечный калькулятор Семейная ипотека Военная ипотека Банки и программы Медиа Новости недвижимости Мнение эксперта Аналитика рынка Покупателю Экспертиза новостроек Эксперты и авторы О проекте Контакты Реклама на сайте Vk Youtube Telegram Дзен Машиноместа Апартаменты #траншевая ипотека #рассрочка ИТ-ипотека Квартиры со скидками до 40% Видео 360° новостроек Субсидированная застройщиком Rutube Поиск дома в Москве Программа реновации в Москве Новостройки премиум-класса Новостройки бизнес-класса Рассрочка Траншевая ипотека Дома и коттеджи Бизнес-центры Бизнес-центры в Москве Бизнес-центры рядом с метро Строящиеся бизнес-центры Бизнес-центры класса A Бизнес-центры класса B Ипотека со ставкой 0,1%
Данное помещение является лидером продаж среди двухкомнатных помещений в «Эмоушн» по данным Росреестра
2-комн. помещение, 44.00 м2, 22 этаж
Срок сдачи 2 квартал 2027 года
22 792 000 
518 000 2
обновлено 20 марта

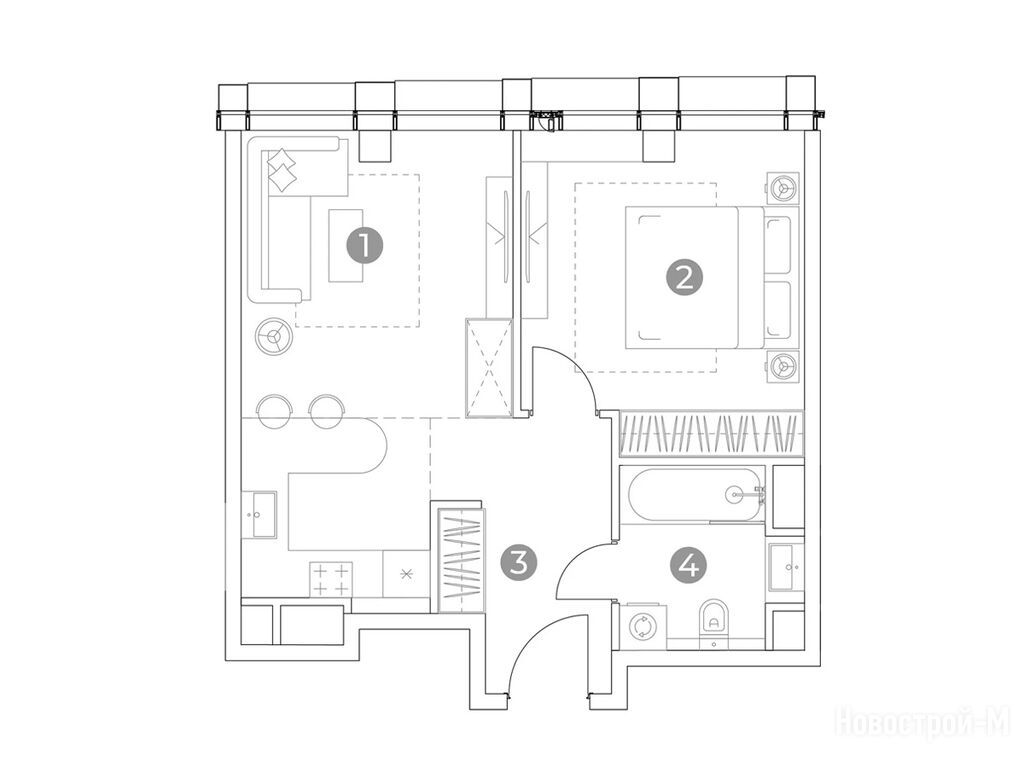
Описание 2-комн. помещения

Новостройка
Срок ГК
2 квартал 2027 года
Стадия строительства
монтаж верхних этажей
Общая площадь
44.00 м2
Площадь
14.00 м2
Площадь кухни
18.10 м2
Этаж
22 / 26

Расположение 2-комн. помещения

Локация
Станция МЦД
Станция МЦК
Дом
4
Адрес
2-й Силикатный пр-д., вл. 8, секция 1

Способы покупки

Особенности

Продается двухкомнатное помещение в новостройке «Эмоушн» по адресу Москва, СЗАО, Хорошево-Мневники, 2-й Силикатный пр-д., вл. 8. Общая площадь помещения - 44 кв. м. Тип проекта, по которому построен дом — Монолитно-кирпичный, компания-застройщик — ГК «Основа», СЗ «СИЛИКАТДЕВЕЛОПМЕНТ». Стоимость помещения — 22 792 000 руб. Способы оплаты можно уточнить у продавца. Срок сдачи — 2 квартал 2027. Более подробная информация по телефону.
Инфоцентр новостроек
Инфоцентр новостроек
+7 (499) 705-91-41
Время работы 9:00 — 21:00
помещение-студия 24,50 м2 15 876 000
Этаж 15/27
Москва, «Эмоушн»
Звенигородская (2026)
5 мин.
Строится
помещение-студия 25,80 м2 15 609 000
Этаж 6/26
Москва, «Эмоушн»
Звенигородская (2026)
5 мин.
Строится
помещение-студия 27,10 м2 17 425 300
Этаж 14/27
Москва, «Эмоушн»
Звенигородская (2026)
5 мин.
Строится
помещение-студия 27,30 м2 16 456 440
Этаж 9/27
Москва, «Эмоушн»
Звенигородская (2026)
5 мин.
Строится
Посмотреть 8 помещений в «Эмоушн»
Этаж 14/26
Москва, «Эмоушн»
Звенигородская (2026)
5 мин.
Строится
1-комн. помещение 43,50 м2 20 858 250
Этаж 10/26
Москва, «Эмоушн»
Звенигородская (2026)
5 мин.
Строится
1-комн. помещение 44,00 м2 21 296 000
Этаж 15/26
Москва, «Эмоушн»
Звенигородская (2026)
5 мин.
Строится
Этаж 8/27
Москва, «Эмоушн»
Звенигородская (2026)
5 мин.
Строится
2-комн. помещение 41,80 м2 20 732 800
Этаж 14/27
Москва, «Эмоушн»
Звенигородская (2026)
5 мин.
Строится
2-комн. помещение 42,50 м2 19 953 750
Этаж 3/27
Москва, «Эмоушн»
Звенигородская (2026)
5 мин.
Строится
2-комн. помещение 43,80 м2 21 834 300
Этаж 18/26
Москва, «Эмоушн»
Звенигородская (2026)
5 мин.
Строится
Посмотреть 37 помещений в «Эмоушн»
3-комн. помещение 52,10 м2 24 976 740
Этаж 7/27
Москва, «Эмоушн»
Звенигородская (2026)
5 мин.
Строится
3-комн. помещение 53,00 м2 25 673 200
Этаж 12/27
Москва, «Эмоушн»
Звенигородская (2026)
5 мин.
Строится
3-комн. помещение 55,10 м2 27 021 040
Этаж 23/27
Москва, «Эмоушн»
Звенигородская (2026)
5 мин.
Строится
3-комн. помещение 61,60 м2 29 654 240
Этаж 23/27
Москва, «Эмоушн»
Звенигородская (2026)
5 мин.
Строится
Посмотреть 53 помещения в «Эмоушн»
4-комн. помещение 85,70 м2 40 647 510
Этаж 6/26
Москва, «Эмоушн»
Звенигородская (2026)
5 мин.
Строится
4-комн. помещение 91,20 м2 43 256 160
Этаж 22/27
Москва, «Эмоушн»
Звенигородская (2026)
5 мин.
Строится
4-комн. помещение 97,60 м2 52 020 800
Этаж 21/26
Москва, «Эмоушн»
Звенигородская (2026)
5 мин.
Строится
4-комн. помещение 100,00 м2 47 620 000
Этаж 25/27
Москва, «Эмоушн»
Звенигородская (2026)
5 мин.
Строится

Скидки и спецпредложения от застройщиков

«Эмоушн» на карте

Выгодные предложения на новостройки

Отзывы о «Эмоушн»

Самый полезный отзыв
А
08 декабря 2023
Оценка:
Отличный проект! Мне особенно понравилась необычная архитектура, она сразу привлекает внимание. Двор будет закрытым, территория большая, а СПА-комплекс просто потрясающий. Повезло тем, кто будет тут жить.
Ответить
Самый новый отзыв
А
27 февраля
Оценка:
Архитектура очень выделяет комплекс из всех новостроек в округе. Необычные формы сразу бросаются в глаза. Смотрели макет выглядит эффектно и современно.
Ответить

Оставить отзыв

Добавьте отзыв, заполнив личные данные, или сначала войдите на сайт, тогда информация будет автоматически взята из личного профиля.
Оценка*