Рейтинг@Mail.ru
Переверните экран
Новостройки Квартиры Ипотека Новостройки Москвы Новостройки Подмосковья Новостройки Новой Москвы Готовые новостройки Новостройки на карте Акции от застройщиков Коммерческие помещения Продавцы и застройщики Панорамы новостроек Видеообзор новостроек Экспертиза новостроек Экология Москвы и Подмосковья Студии 1-комнатные 2-комнатные 3-комнатные Квартиры на карте Ипотечный калькулятор Семейная ипотека Военная ипотека Банки и программы Медиа Новости недвижимости Мнение эксперта Аналитика рынка Покупателю Экспертиза новостроек Эксперты и авторы О проекте Контакты Реклама на сайте Vk Youtube Telegram Дзен Машиноместа Апартаменты #траншевая ипотека #рассрочка IT-ипотека Квартиры со скидками до 40% Видео 360° новостроек Субсидированная застройщиком Rutube Поиск дома в Москве Программа реновации в Москве Новостройки премиум-класса Новостройки бизнес-класса Рассрочка Траншевая ипотека ГАЛС Дома и коттеджи Бизнес-центры Бизнес-центры в Москве Бизнес-центры рядом с метро Строящиеся бизнес-центры Бизнес-центры класса A Бизнес-центры класса B ЛСР
Данное помещение является лидером продаж среди студий в Emotion (Эмоушен) по данным Росреестра
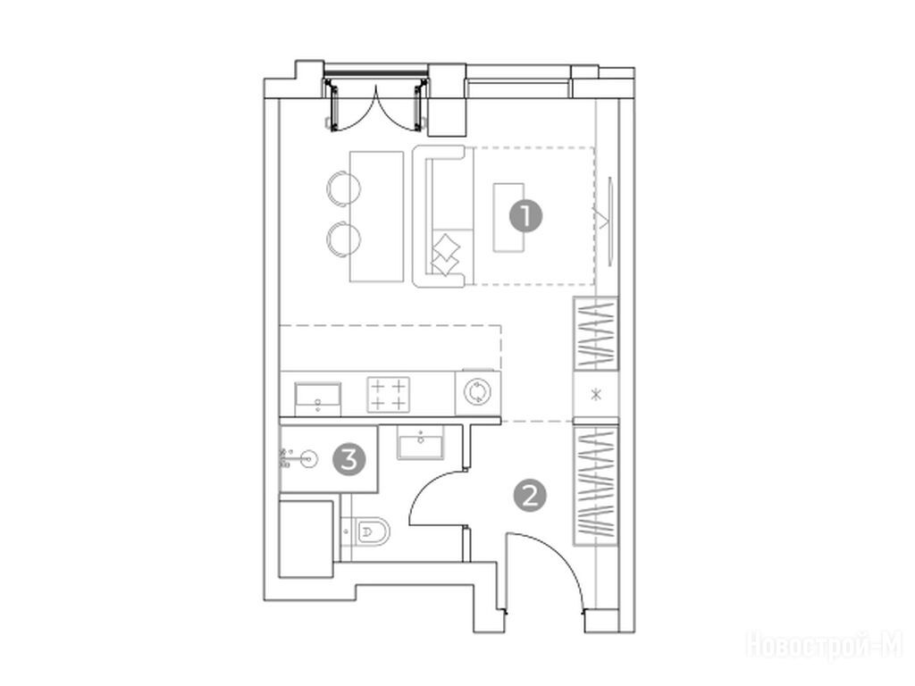
помещение-студия, 26.50 м2, 5 этаж
Срок сдачи 2 квартал 2027 года
14 090 050 
531 700 2
обновлено 5 декабря

Описание помещения-студии

Новостройка
Срок ГК
2 квартал 2027 года
Стадия строительства
Общая площадь
26.50 м2
Жилая площадь
13.40 м2
Площадь кухни
5.00 м2
Этаж
5 / 27

Расположение помещения-студии

Локация
Станция МЦД
Станция МЦК
Дом
1
Адрес
2-й Силикатный пр-д., вл. 8, секция 1

Способы покупки

Особенности

Продается помещение-студия в новостройке Emotion (Эмоушен) по адресу Москва, СЗАО, Хорошево-Мневники, 2-й Силикатный пр-д., вл. 8. Общая площадь помещения - 26.5 кв. м. Тип проекта, по которому построен дом — Монолитно-кирпичный, компания-застройщик — ГК «Основа», СЗ «СИЛИКАТДЕВЕЛОПМЕНТ». Стоимость помещения — 14 090 050 руб. Способы оплаты можно уточнить у продавца. Срок сдачи — 2 квартал 2027. Более подробная информация по телефону.
Инфоцентр новостроек
Инфоцентр новостроек
+7 (499) 705-91-41
Время работы 9:00 — 21:00
Посмотреть все спецпредложения
помещение-студия 22,90 м2 13 822 440
Этаж 19/26
Москва, Emotion (Эмоушен)
Звенигородская (2026)
5 мин.
Строится
помещение-студия 24,50 м2 13 822 900
Этаж 15/27
Москва, Emotion (Эмоушен)
Звенигородская (2026)
5 мин.
Строится
помещение-студия 26,80 м2 14 659 600
Этаж 12/27
Москва, Emotion (Эмоушен)
Звенигородская (2026)
5 мин.
Строится
помещение-студия 27,00 м2 15 406 200
Этаж 22/27
Москва, Emotion (Эмоушен)
Звенигородская (2026)
5 мин.
Строится
Посмотреть 14 помещений в Emotion (Эмоушен)
1-комн. помещение 43,50 м2 20 706 000
Этаж 10/26
Москва, Emotion (Эмоушен)
Звенигородская (2026)
5 мин.
Строится
1-комн. помещение 44,00 м2 21 098 000
Этаж 13/26
Москва, Emotion (Эмоушен)
Звенигородская (2026)
5 мин.
Строится
2-комн. помещение 41,30 м2 19 245 800
Этаж 3/27
Москва, Emotion (Эмоушен)
Звенигородская (2026)
5 мин.
Строится
2-комн. помещение 42,50 м2 19 805 000
Этаж 3/27
Москва, Emotion (Эмоушен)
Звенигородская (2026)
5 мин.
Строится
2-комн. помещение 43,80 м2 21 286 800
Этаж 18/26
Москва, Emotion (Эмоушен)
Звенигородская (2026)
5 мин.
Строится
2-комн. помещение 44,70 м2 21 384 480
Этаж 23/27
Москва, Emotion (Эмоушен)
Звенигородская (2026)
5 мин.
Строится
Посмотреть 30 помещений в Emotion (Эмоушен)
3-комн. помещение 52,10 м2 24 018 100
Этаж 2/27
Москва, Emotion (Эмоушен)
Звенигородская (2026)
5 мин.
Строится
3-комн. помещение 53,00 м2 25 493 000
Этаж 12/27
Москва, Emotion (Эмоушен)
Звенигородская (2026)
5 мин.
Строится
3-комн. помещение 55,10 м2 26 172 500
Этаж 23/27
Москва, Emotion (Эмоушен)
Звенигородская (2026)
5 мин.
Строится
3-комн. помещение 61,60 м2 29 444 800
Этаж 23/27
Москва, Emotion (Эмоушен)
Звенигородская (2026)
5 мин.
Строится
Посмотреть 45 помещений в Emotion (Эмоушен)
4-комн. помещение 85,70 м2 40 364 700
Этаж 6/26
Москва, Emotion (Эмоушен)
Звенигородская (2026)
5 мин.
Строится
4-комн. помещение 91,20 м2 42 955 200
Этаж 22/27
Москва, Emotion (Эмоушен)
Звенигородская (2026)
5 мин.
Строится
4-комн. помещение 100,00 м2 47 300 000
Этаж 25/27
Москва, Emotion (Эмоушен)
Звенигородская (2026)
5 мин.
Строится

Скидки и спецпредложения от застройщиков

Emotion (Эмоушен) на карте

Выгодные предложения на новостройки

Отзывы о Emotion (Эмоушен)

Самый полезный отзыв
А
08 декабря 2023
Оценка:
Отличный проект! Мне особенно понравилась необычная архитектура, она сразу привлекает внимание. Двор будет закрытым, территория большая, а СПА-комплекс просто потрясающий. Повезло тем, кто будет тут жить.
Ответить
Полезный отзыв?
Самый новый отзыв
Т
25 ноября
Оценка:
Выбрали Emotion из-за удобного расположения — тут и большая дорожная развязка рядом, и обещают открыть детский сад прямо во дворе. Документы оформили оперативно, менеджеры отвечали на вопросы терпеливо. Ждём заселения и уже планируем, как обустроим квартиру для семьи
Ответить
Полезный отзыв?
Добавьте отзыв, заполнив личные данные, или сначала войдите на сайт, тогда информация будет автоматически взята из личного профиля.
Оценка*