Рейтинг@Mail.ru
Переверните экран
Новостройки Квартиры Ипотека Новостройки Москвы Новостройки Подмосковья Новостройки Новой Москвы Готовые новостройки Новостройки на карте Акции от застройщиков Коммерческие помещения Продавцы и застройщики Панорамы новостроек Видеообзор новостроек Экспертиза новостроек Экология Москвы и Подмосковья Студии 1-комнатные 2-комнатные 3-комнатные Квартиры на карте Ипотечный калькулятор Семейная ипотека Военная ипотека Банки и программы Медиа Новости недвижимости Мнение эксперта Аналитика рынка Покупателю Экспертиза новостроек Эксперты и авторы О проекте Контакты Реклама на сайте Vk Youtube Telegram Дзен Машиноместа Апартаменты #траншевая ипотека #рассрочка IT-ипотека Квартиры со скидками до 40% Видео 360° новостроек Субсидированная застройщиком Rutube Поиск дома в Москве Программа реновации в Москве Новостройки премиум-класса Новостройки бизнес-класса Рассрочка Траншевая ипотека ГАЛС Дома и коттеджи Бизнес-центры Бизнес-центры в Москве Бизнес-центры рядом с метро Строящиеся бизнес-центры Бизнес-центры класса A Бизнес-центры класса B ЛСР
Данное помещение является лидером продаж среди студий в «Аквилон Signal» (Аквилон Сигнал) по данным Росреестра
помещение-студия, 27.50 м2, 21 этаж
Срок сдачи 4 квартал 2026 года
11 654 633 
423 805 2
обновлено 5 декабря

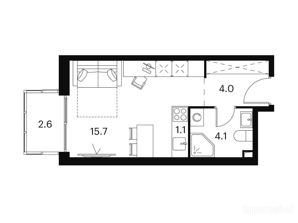
Описание помещения-студии

Застройщик
Срок ГК
4 квартал 2026 года
Стадия строительства
монтаж верхних этажей
Общая площадь
27.50 м2
Жилая площадь
15.70 м2
Площадь кухни
1.10 м2
Этаж
21 / 23

Расположение помещения-студии

Локация
Метро
Станция МЦД
Станция МЦК
Дом
2
Адрес
Сигнальный проезд, корп.2, секция 1

Особенности

Продается помещение-студия в новостройке «Аквилон Signal» (Аквилон Сигнал) по адресу Москва, СВАО, Отрадное, Сигнальный проезд, корп.2. Общая площадь помещения - 27.5 кв. м. Тип проекта, по которому построен дом — Монолитно-кирпичный, компания-застройщик — «СЗ «ИНСТРОЙ», Группа «Аквилон». Стоимость помещения — 11 654 633 руб. Способы оплаты можно уточнить у продавца. Срок сдачи — 4 квартал 2026. Более подробная информация по телефону.
Инфоцентр новостроек
Инфоцентр новостроек
+7 (499) 705-91-41
Время работы 9:00 — 21:00

Похожие помещения в «Аквилон Signal» (Аквилон Сигнал)

17 этаж
из 23 4 квартал 2026
Москва, СВАО
Владыкино
6 мин.
2
Корпус
нет данных
Отделка
2.87 м
Потолки
«Аквилон Signal» (Аквилон Сигнал)
11 033 551
18 этаж
из 23 4 квартал 2026
Москва, СВАО
Владыкино
6 мин.
2
Корпус
нет данных
Отделка
2.87 м
Потолки
«Аквилон Signal» (Аквилон Сигнал)
11 185 373
19 этаж
из 23 4 квартал 2026
Москва, СВАО
Владыкино
6 мин.
2
Корпус
нет данных
Отделка
2.87 м
Потолки
«Аквилон Signal» (Аквилон Сигнал)
11 318 104
20 этаж
из 23 4 квартал 2026
Москва, СВАО
Владыкино
6 мин.
2
Корпус
нет данных
Отделка
2.87 м
Потолки
«Аквилон Signal» (Аквилон Сигнал)
11 495 871
Посмотреть все спецпредложения
помещение-студия 23,50 м2 10 650 760
Этаж 15/23
Москва, «Аквилон Signal» (Аквилон Сигнал)
Владыкино
6 мин.
Строится
помещение-студия 23,70 м2 10 750 256
Этаж 15/23
Москва, «Аквилон Signal» (Аквилон Сигнал)
Владыкино
6 мин.
Строится
помещение-студия 24,10 м2 10 830 346
Этаж 16/23
Москва, «Аквилон Signal» (Аквилон Сигнал)
Владыкино
6 мин.
Строится
помещение-студия 24,20 м2 10 739 680
Этаж 13/23
Москва, «Аквилон Signal» (Аквилон Сигнал)
Владыкино
6 мин.
Строится
Посмотреть 95 помещений в «Аквилон Signal» (Аквилон Сигнал)
1-комн. помещение 22,40 м2 11 593 940
Этаж 17/23
Москва, «Аквилон Signal» (Аквилон Сигнал)
Владыкино
6 мин.
Строится
1-комн. помещение 22,50 м2 11 483 033
Этаж 14/23
Москва, «Аквилон Signal» (Аквилон Сигнал)
Владыкино
6 мин.
Строится
1-комн. помещение 22,70 м2 11 534 714
Этаж 13/23
Москва, «Аквилон Signal» (Аквилон Сигнал)
Владыкино
6 мин.
Строится
1-комн. помещение 23,00 м2 12 761 251
Этаж 19/23
Москва, «Аквилон Signal» (Аквилон Сигнал)
Владыкино
6 мин.
Строится
Посмотреть 209 помещений в «Аквилон Signal» (Аквилон Сигнал)
2-комн. помещение 41,40 м2 17 389 201
Этаж 18/23
Москва, «Аквилон Signal» (Аквилон Сигнал)
Владыкино
6 мин.
Строится
2-комн. помещение 41,90 м2 17 412 755
Этаж 19/23
Москва, «Аквилон Signal» (Аквилон Сигнал)
Владыкино
6 мин.
Строится
2-комн. помещение 42,70 м2 16 226 428
Этаж 4/23
Москва, «Аквилон Signal» (Аквилон Сигнал)
Владыкино
6 мин.
Строится
2-комн. помещение 45,40 м2 18 516 708
Этаж 18/23
Москва, «Аквилон Signal» (Аквилон Сигнал)
Владыкино
6 мин.
Строится
Посмотреть 45 помещений в «Аквилон Signal» (Аквилон Сигнал)

Скидки и спецпредложения от застройщиков

«Аквилон Signal» (Аквилон Сигнал) на карте

Выгодные предложения на новостройки

Отзывы о «Аквилон Signal» (Аквилон Сигнал)

Самый полезный отзыв
М
11 марта 2024
Оценка:
Рендеры симпатичные, локация нам подходит (снимаем недалеко от места строительства), но информации на сайте не хватило. Планировки не все размещены, как нам показалось. Не очень понятно, какие есть программы по покупке. Записались с супругом на консультацию на следующую неделю, будем узнавать.
Ответить
Полезный отзыв?
Самый новый отзыв
Р
04 декабря
Оценка:
Зачастую смотрю на инженерную составляющую квартир. Здесь шумоизоляция будет, умные датчики всякие, да и коммуникации все проведут. Это хорошо упрощает повседневную жизнь, как по мне, и ремонт в будущем. Гостиничный сервис как отдельный плюсик в копилку)
Ответить
Полезный отзыв?
Добавьте отзыв, заполнив личные данные, или сначала войдите на сайт, тогда информация будет автоматически взята из личного профиля.
Оценка*