Рейтинг@Mail.ru
Переверните экран
Новостройки Квартиры Ипотека Новостройки Москвы Новостройки Подмосковья Новостройки Новой Москвы Готовые новостройки Новостройки на карте Акции от застройщиков Коммерческие помещения Продавцы и застройщики Панорамы новостроек Видеообзор новостроек Экспертиза новостроек Экология Москвы и Подмосковья Студии 1-комнатные 2-комнатные 3-комнатные Квартиры на карте Ипотечный калькулятор Семейная ипотека Военная ипотека Банки и программы Медиа Новости недвижимости Мнение эксперта Аналитика рынка Покупателю Экспертиза новостроек Эксперты и авторы О проекте Контакты Реклама на сайте Vk Youtube Telegram Дзен Машиноместа Апартаменты #траншевая ипотека #рассрочка IT-ипотека Квартиры со скидками до 40% Видео 360° новостроек Субсидированная застройщиком Rutube Поиск дома в Москве Программа реновации в Москве Новостройки премиум-класса Новостройки бизнес-класса Рассрочка Траншевая ипотека ГАЛС Дома и коттеджи Бизнес-центры Бизнес-центры в Москве Бизнес-центры рядом с метро Строящиеся бизнес-центры Бизнес-центры класса A Бизнес-центры класса B ЛСР
Данная квартира является лидером продаж среди трехкомнатных квартир в ЖК «Родина Парк» по данным Росреестра
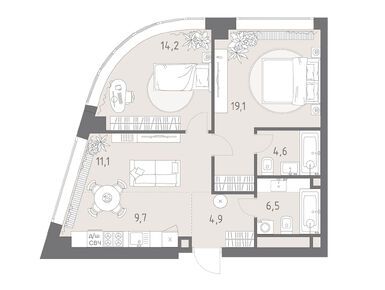
3-комн. квартира, 68.30 м2, 7 этаж
Срок сдачи 4 квартал 2026 года
56 256 594 
823 669 2
обновлено 5 декабря

Описание 3-комн. квартиры

Новостройка
Застройщик
Срок ГК
4 квартал 2026 года
Стадия строительства
отделка фасада
Общая площадь
68.30 м2
Жилая площадь
25.90 м2
Площадь кухни
18.90 м2
Этаж
7 / 11

Расположение 3-комн. квартиры

Локация
Станция МЦД
Станция МЦК
Дом
1
Адрес
ул. Верейская, вл. 12, корп. 1, секция 1

Способы покупки

Особенности

Продается трехкомнатная квартира в новостройке ЖК «Родина Парк» по адресу Москва, ЗАО, Можайский, ул. Верейская, вл. 12, корп. 1. Общая площадь квартиры - 68.3 кв. м. Тип проекта, по которому построен дом — Монолитно-кирпичный, компания-застройщик — ГРУППА РОДИНА. Стоимость квартиры — 56 256 594 руб. Способы оплаты можно уточнить у продавца. Срок сдачи — 4 квартал 2026. Более подробная информация по телефону.

Правовые документы

ГРУППА РОДИНА
ГРУППА РОДИНА
Сданных 1
|
Строящихся 6
Время работы 09:00 — 21:00
Выбирайте квартиру в ЖК «Родина Парк» по ценам от застройщика
Посмотреть все спецпредложения
1-комн. квартира 29,60 м2 21 253 316
Этаж 21/34
Москва, ЖК «Родина Парк»
Давыдково
16 мин.
Строится
1-комн. квартира 29,70 м2 20 741 594
Этаж 26/34
Москва, ЖК «Родина Парк»
Давыдково
16 мин.
Строится
1-комн. квартира 30,10 м2 22 726 574
Этаж 22/34
Москва, ЖК «Родина Парк»
Давыдково
16 мин.
Строится
Этаж 28/34
Москва, ЖК «Родина Парк»
Давыдково
16 мин.
Строится
Посмотреть 7 квартир в ЖК «Родина Парк»
2-комн. квартира 39,90 м2 30 294 465
Этаж 28/34
Москва, ЖК «Родина Парк»
Давыдково
16 мин.
Строится
2-комн. квартира 40,20 м2 31 452 434
Этаж 28/34
Москва, ЖК «Родина Парк»
Давыдково
16 мин.
Строится
2-комн. квартира 41,00 м2 38 102 170
Этаж 5/14
Москва, ЖК «Родина Парк»
Давыдково
16 мин.
Строится
2-комн. квартира 41,90 м2 33 442 482
Этаж 3/19
Москва, ЖК «Родина Парк»
Давыдково
16 мин.
Строится
Посмотреть 31 квартира в ЖК «Родина Парк»
3-комн. квартира 63,60 м2 50 504 917
Этаж 4/11
Москва, ЖК «Родина Парк»
Давыдково
16 мин.
Строится
3-комн. квартира 67,20 м2 85 374 081
Этаж 5/14
Москва, ЖК «Родина Парк»
Давыдково
16 мин.
Строится
3-комн. квартира 69,10 м2 51 531 056
Этаж 2/11
Москва, ЖК «Родина Парк»
Давыдково
16 мин.
Строится
3-комн. квартира 70,10 м2 63 404 273
Этаж 28/35
Москва, ЖК «Родина Парк»
Давыдково
16 мин.
Строится
Посмотреть 31 квартира в ЖК «Родина Парк»
Этаж 11/11
Москва, ЖК «Родина Парк»
Давыдково
16 мин.
Строится
5-комн. квартира 132,00 м2 93 725 662
Этаж 28/35
Москва, ЖК «Родина Парк»
Давыдково
16 мин.
Строится
Этаж 11/11
Москва, ЖК «Родина Парк»
Давыдково
16 мин.
Строится

Скидки и спецпредложения от застройщиков

ЖК «Родина Парк» на карте

Выгодные предложения на новостройки

Отзывы о ЖК «Родина Парк»

Самый полезный отзыв
ОЛ
28 февраля 2023
Оценка:
Транспортная доступность
Экология
Расположение
Шикарное расположение ,рядом естественный лес,пойма реки Сетунь . Близость станции метро и развязка на Аминьевское шоссе создают условия для того,чтобы добраться до пункта назначения за минимальное время
Показать все комментарии
Ответить
Полезный отзыв?
Самый новый отзыв
АЕ
15 сентября
Оценка:
Социальная инфраструктура
Планировки
Внешний вид фасада
Двор, окружение
Скорость строительства
Мы давно искали место, которое будет удобно и для жизни, и для поездок в центр. «Родина Парк» сразу понравилась: светлые планировки, просторные кухни, много окон, двор без машин. Очень приятно, что до метро можно дойти пешком, поскольку у нас пока нет своей машины. Уже представляем, как будем гулять по двору с детьми. По инфраструктуре классно, что есть запланированный частный садик в кластере и наличие топовых школ поблизости.
Ответить
Полезный отзыв?
Добавьте отзыв, заполнив личные данные, или сначала войдите на сайт, тогда информация будет автоматически взята из личного профиля.
Оценка*