Рейтинг@Mail.ru
Переверните экран
Новостройки Квартиры Ипотека Новостройки Москвы Новостройки Подмосковья Новостройки Новой Москвы Готовые новостройки Новостройки на карте Акции от застройщиков Коммерческие помещения Продавцы и застройщики Панорамы новостроек Видеообзор новостроек Экспертиза новостроек Экология Москвы и Подмосковья Студии 1-комнатные 2-комнатные 3-комнатные Квартиры на карте Ипотечный калькулятор Семейная ипотека Военная ипотека Банки и программы Медиа Новости недвижимости Мнение эксперта Аналитика рынка Покупателю Экспертиза новостроек Эксперты и авторы О проекте Контакты Реклама на сайте Vk Youtube Telegram Дзен Машиноместа Апартаменты #траншевая ипотека #рассрочка ИТ-ипотека Квартиры со скидками до 40% Видео 360° новостроек Субсидированная застройщиком Rutube Поиск дома в Москве Программа реновации в Москве Новостройки премиум-класса Новостройки бизнес-класса Рассрочка Траншевая ипотека Дома и коттеджи Бизнес-центры Бизнес-центры в Москве Бизнес-центры рядом с метро Строящиеся бизнес-центры Бизнес-центры класса A Бизнес-центры класса B Ипотека со ставкой 0,1%
Данная квартира является лидером продаж среди трехкомнатных квартир в ЖК «7 небо» по данным Росреестра
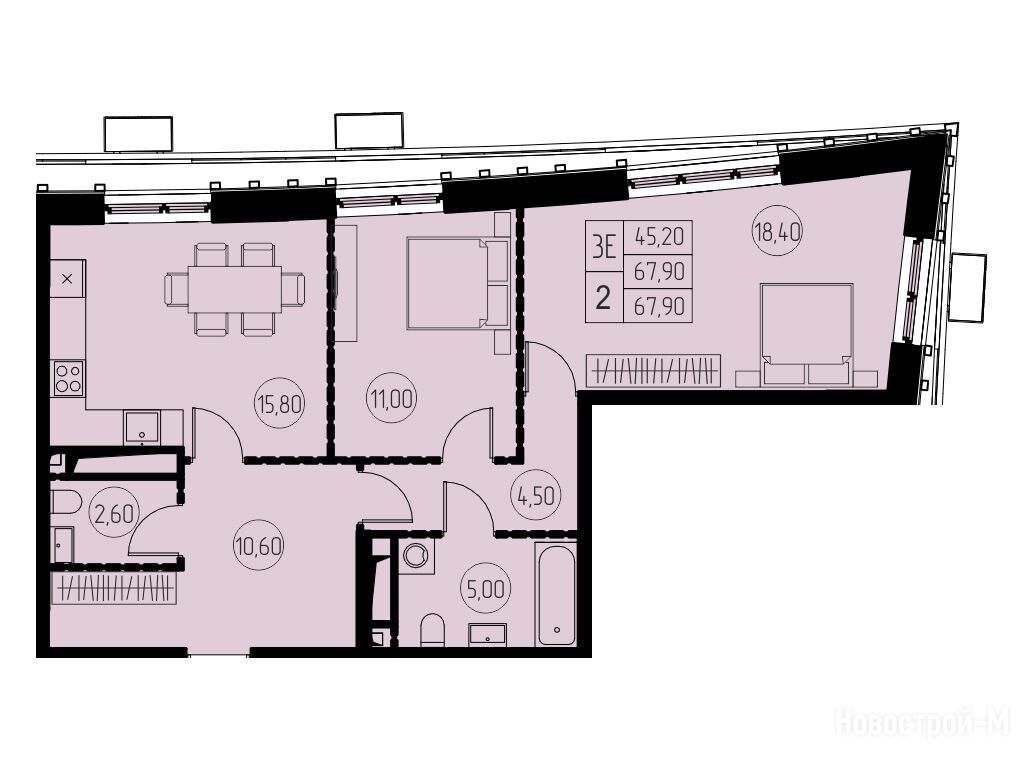
3-комн. квартира, 67.90 м2, 27 этаж
Срок сдачи 2 квартал 2026 года
15 228 462 
224 278 2
обновлено 29 марта

Описание 3-комн. квартиры

Новостройка
Срок ГК
2 квартал 2026 года
Стадия строительства
отделка фасада и внутренние работы
Общая площадь
67.90 м2
Жилая площадь
29.40 м2
Площадь кухни
15.80 м2
Этаж
27 / 28

Расположение 3-комн. квартиры

Станция МЦК
Ж/Д-станция
Дом
Башня Б
Адрес
ул. Писаревская, корп.2, секция Башня Б

Способы покупки

Особенности

Продается трехкомнатная квартира в новостройке ЖК «7 небо» по адресу Московская область, Пушкинский район, Пушкино, ул. Писаревская, корп.2. Общая площадь квартиры - 67.9 кв. м. Тип проекта, по которому построен дом — Монолитно-кирпичный, компания-застройщик — ООО СПЕЦЗАСТРОЙЩИК ПРОФИ-ЭЛИТСТРОЙ, Профи-Инвест. Стоимость квартиры — 15 228 462 руб. Способы оплаты можно уточнить у продавца. Срок сдачи — 2 квартал 2026. Более подробная информация по телефону.
Инфоцентр новостроек
Инфоцентр новостроек
+7 (499) 705-91-41
Время работы 9:00 — 21:00
студия 37,70 м2 9 077 322
Этаж 16/18
МО, ЖК «7 небо»
Ростокино
37 мин.
Строится
студия 37,80 м2 8 985 900
Этаж 26/28
МО, ЖК «7 небо»
Ростокино
37 мин.
Строится
студия 40,80 м2 8 651 866
Этаж 3/28
МО, ЖК «7 небо»
Ростокино
37 мин.
Строится
студия 40,90 м2 9 247 944
Этаж 12/18
МО, ЖК «7 небо»
Ростокино
37 мин.
Строится
Посмотреть 15 квартир в ЖК «7 небо»
1-комн. квартира 37,10 м2 9 295 612
Этаж 18/18
МО, ЖК «7 небо»
Ростокино
37 мин.
Строится
1-комн. квартира 40,90 м2 9 847 812
Этаж 17/18
МО, ЖК «7 небо»
Ростокино
37 мин.
Строится
1-комн. квартира 41,10 м2 9 669 916
Этаж 26/28
МО, ЖК «7 небо»
Ростокино
37 мин.
Строится
1-комн. квартира 42,60 м2 10 022 834
Этаж 26/28
МО, ЖК «7 небо»
Ростокино
37 мин.
Строится
Посмотреть 48 квартир в ЖК «7 небо»
2-комн. квартира 41,20 м2 9 542 378
Этаж 27/28
МО, ЖК «7 небо»
Ростокино
37 мин.
Строится
2-комн. квартира 43,40 м2 10 051 922
Этаж 26/28
МО, ЖК «7 небо»
Ростокино
37 мин.
Строится
2-комн. квартира 45,70 м2 10 277 422
Этаж 17/18
МО, ЖК «7 небо»
Ростокино
37 мин.
Строится
2-комн. квартира 45,80 м2 10 187 956
Этаж 19/28
МО, ЖК «7 небо»
Ростокино
37 мин.
Строится
Посмотреть 17 квартир в ЖК «7 небо»
3-комн. квартира 61,50 м2 13 868 250
Этаж 26/28
МО, ЖК «7 небо»
Ростокино
37 мин.
Строится
3-комн. квартира 65,80 м2 14 918 322
Этаж 25/28
МО, ЖК «7 небо»
Ростокино
37 мин.
Строится
3-комн. квартира 68,00 м2 15 458 666
Этаж 17/18
МО, ЖК «7 небо»
Ростокино
37 мин.
Строится
3-комн. квартира 72,90 м2 16 216 200
Этаж 16/18
МО, ЖК «7 небо»
Ростокино
37 мин.
Строится
Посмотреть 20 квартир в ЖК «7 небо»

Скидки и спецпредложения от застройщиков

ЖК «7 небо» на карте

Выгодные предложения на новостройки

Отзывы о ЖК «7 небо»

Самый полезный отзыв
П
08 декабря 2023
Оценка:
Достоинства
Планировки
Способы покупки
Внешний вид фасада
Расположение
Не очень удобно, что офис с 10 до 8 работает. С утра не успел доехать, пришлось после работы в темпе вальса по квартире решать. Хорошо, хоть менеджеры адекватные.
Ответить
Самый новый отзыв
КЕ
11 января
Оценка:
Достоинства
Внешний вид фасада
Двор, окружение
Расположение
Проект привлек архитектурой и заявленным комфорт-классом без лишнего пафоса. Планировки выглядят разумно, без странных углов и мертвых метров. При этом понимаю, что все решит реализация и работа УК после заселения. Пока оставил в шорт-листе, но без спешки
Ответить

Оставить отзыв

Добавьте отзыв, заполнив личные данные, или сначала войдите на сайт, тогда информация будет автоматически взята из личного профиля.
Оценка*