Рейтинг@Mail.ru
Переверните экран
Новостройки Квартиры Ипотека Новостройки Москвы Новостройки Подмосковья Новостройки Новой Москвы Готовые новостройки Новостройки на карте Акции от застройщиков Коммерческие помещения Продавцы и застройщики Панорамы новостроек Видеообзор новостроек Экспертиза новостроек Экология Москвы и Подмосковья Студии 1-комнатные 2-комнатные 3-комнатные Квартиры на карте Ипотечный калькулятор Семейная ипотека Военная ипотека Банки и программы Медиа Новости недвижимости Мнение эксперта Аналитика рынка Покупателю Экспертиза новостроек Эксперты и авторы О проекте Контакты Реклама на сайте Vk Youtube Telegram Дзен Машиноместа Апартаменты #траншевая ипотека #рассрочка IT-ипотека Квартиры со скидками до 40% Видео 360° новостроек Субсидированная застройщиком Rutube Поиск дома в Москве Программа реновации в Москве Новостройки премиум-класса Новостройки бизнес-класса Рассрочка Траншевая ипотека ГАЛС Дома и коттеджи Бизнес-центры Бизнес-центры в Москве Бизнес-центры рядом с метро Строящиеся бизнес-центры Бизнес-центры класса A Бизнес-центры класса B ЛСР
Данная квартира является лидером продаж среди трехкомнатных квартир в ЖК «Западная Ивантеевка» по данным Росреестра
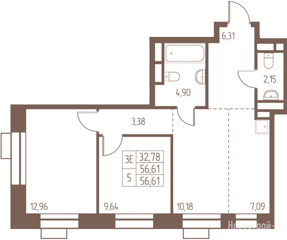
3-комн. квартира, 56.60 м2, 9 этаж
Срок сдачи 4 квартал 2026 года
8 875 112 
156 804 2
обновлено 5 декабря

Описание 3-комн. квартиры

Срок ГК
4 квартал 2026 года
Общая площадь
56.60 м2
Жилая площадь
22.60 м2
Площадь кухни
17.27 м2
Этаж
9 / 24
Отделка
white box
Грузовой лифт
есть

Расположение 3-комн. квартиры

Метро
Станция МЦК
Ж/Д-станция
Дом
1
Адрес
ул. Первомайская, 1 очередь, секция 1

Особенности

Продается трехкомнатная квартира в новостройке ЖК «Западная Ивантеевка» по адресу Московская область, Ивантеевка городской округ, Ивантеевка, ул. Первомайская, 1 очередь. Общая площадь квартиры - 56.6 кв. м. Тип проекта, по которому построен дом — Монолитно-кирпичный, компания-застройщик — Профи-Инвест, ООО СЗ Профи-Первомайская. Стоимость квартиры — 8 875 112 руб. Способы оплаты можно уточнить у продавца. Срок сдачи — 4 квартал 2026. Более подробная информация по телефону.
Профи-Инвест
Профи-Инвест
Сданных 8
|
Строящихся 8
Время работы 10:00 — 20:00
Выбирайте квартиру в ЖК «Западная Ивантеевка» по ценам от застройщика

Похожие квартиры в ЖК «Западная Ивантеевка»

11 этаж
из 24 4 квартал 2026
Московская область, Ивантеевка городской округ
Медведково
24 мин.
1
Корпус
white box
Отделка
2.75 м
Потолки
ЖК «Западная Ивантеевка»
8 995 046
12 этаж
из 24 4 квартал 2026
Московская область, Ивантеевка городской округ
Медведково
24 мин.
1
Корпус
white box
Отделка
2.75 м
Потолки
ЖК «Западная Ивантеевка»
9 025 029
13 этаж
из 24 4 квартал 2026
Московская область, Ивантеевка городской округ
Медведково
24 мин.
1
Корпус
white box
Отделка
2.75 м
Потолки
ЖК «Западная Ивантеевка»
9 025 029
14 этаж
из 24 4 квартал 2026
Московская область, Ивантеевка городской округ
Медведково
24 мин.
1
Корпус
white box
Отделка
2.75 м
Потолки
ЖК «Западная Ивантеевка»
9 055 013
15 этаж
из 24 4 квартал 2026
Московская область, Ивантеевка городской округ
Медведково
24 мин.
1
Корпус
white box
Отделка
2.75 м
Потолки
ЖК «Западная Ивантеевка»
9 055 013
16 этаж
из 24 4 квартал 2026
Московская область, Ивантеевка городской округ
Медведково
24 мин.
1
Корпус
white box
Отделка
2.75 м
Потолки
ЖК «Западная Ивантеевка»
9 114 979
17 этаж
из 24 4 квартал 2026
Московская область, Ивантеевка городской округ
Медведково
24 мин.
1
Корпус
white box
Отделка
2.75 м
Потолки
ЖК «Западная Ивантеевка»
9 114 979
18 этаж
из 24 4 квартал 2026
Московская область, Ивантеевка городской округ
Медведково
24 мин.
1
Корпус
white box
Отделка
2.75 м
Потолки
ЖК «Западная Ивантеевка»
9 144 963
19 этаж
из 24 4 квартал 2026
Московская область, Ивантеевка городской округ
Медведково
24 мин.
1
Корпус
white box
Отделка
2.75 м
Потолки
ЖК «Западная Ивантеевка»
9 174 946
20 этаж
из 24 4 квартал 2026
Московская область, Ивантеевка городской округ
Медведково
24 мин.
1
Корпус
white box
Отделка
2.75 м
Потолки
ЖК «Западная Ивантеевка»
9 234 914
21 этаж
из 24 4 квартал 2026
Московская область, Ивантеевка городской округ
Медведково
24 мин.
1
Корпус
white box
Отделка
2.75 м
Потолки
ЖК «Западная Ивантеевка»
9 294 881
22 этаж
из 24 4 квартал 2026
Московская область, Ивантеевка городской округ
Медведково
24 мин.
1
Корпус
white box
Отделка
2.75 м
Потолки
ЖК «Западная Ивантеевка»
9 294 881
Посмотреть все спецпредложения
студия 29,00 м2 4 996 997
Этаж 15/24
МО, ЖК «Западная Ивантеевка»
Медведково
24 мин.
Строится
студия 30,30 м2 5 012 056
Этаж 6/24
МО, ЖК «Западная Ивантеевка»
Медведково
24 мин.
Строится
студия 30,60 м2 4 959 431
Этаж 3/24
МО, ЖК «Западная Ивантеевка»
Медведково
24 мин.
Строится
студия 30,70 м2 5 001 633
Этаж 8/24
МО, ЖК «Западная Ивантеевка»
Медведково
24 мин.
Строится
Посмотреть 99 квартир в ЖК «Западная Ивантеевка»
1-комн. квартира 32,00 м2 5 547 324
Этаж 21/24
МО, ЖК «Западная Ивантеевка»
Медведково
24 мин.
Строится
1-комн. квартира 32,80 м2 5 225 940
Этаж 10/16
МО, ЖК «Западная Ивантеевка»
Медведково
24 мин.
Строится
1-комн. квартира 32,90 м2 5 161 078
Этаж 4/16
МО, ЖК «Западная Ивантеевка»
Медведково
24 мин.
Строится
1-комн. квартира 33,00 м2 5 256 230
Этаж 10/16
МО, ЖК «Западная Ивантеевка»
Медведково
24 мин.
Строится
Посмотреть 215 квартир в ЖК «Западная Ивантеевка»
2-комн. квартира 37,80 м2 6 081 483
Этаж 17/24
МО, ЖК «Западная Ивантеевка»
Медведково
24 мин.
Строится
2-комн. квартира 40,00 м2 6 269 488
Этаж 5/16
МО, ЖК «Западная Ивантеевка»
Медведково
24 мин.
Строится
2-комн. квартира 40,10 м2 6 288 301
Этаж 3/16
МО, ЖК «Западная Ивантеевка»
Медведково
24 мин.
Строится
2-комн. квартира 43,20 м2 6 640 064
Этаж 2/24
МО, ЖК «Западная Ивантеевка»
Медведково
24 мин.
Строится
Посмотреть 128 квартир в ЖК «Западная Ивантеевка»
3-комн. квартира 51,60 м2 8 301 861
Этаж 6/24
МО, ЖК «Западная Ивантеевка»
Медведково
24 мин.
Строится
3-комн. квартира 51,80 м2 8 450 247
Этаж 15/24
МО, ЖК «Западная Ивантеевка»
Медведково
24 мин.
Строится
3-комн. квартира 53,30 м2 8 464 337
Этаж 6/24
МО, ЖК «Западная Ивантеевка»
Медведково
24 мин.
Строится
3-комн. квартира 53,60 м2 8 546 755
Этаж 9/24
МО, ЖК «Западная Ивантеевка»
Медведково
24 мин.
Строится
Посмотреть 57 квартир в ЖК «Западная Ивантеевка»

Скидки и спецпредложения от застройщиков

ЖК «Западная Ивантеевка» на карте

Выгодные предложения на новостройки

Отзывы о ЖК «Западная Ивантеевка»

Самый полезный отзыв
А
24 июня 2024
Оценка:
Транспортная доступность
Социальная инфраструктура
Способы покупки
Внешний вид фасада
Расположение
Без первоначального взноса конечно квартиру сейчас не купишь, но уточнить все же стоило. Вообще банк нормально одобрил обычную, денег подкопил, но все-таки верил в чудо) Мой рекомендасьон по ЖК, аккуратный вид, удобное расположение, адекватные планировки.
Ответить
Полезный отзыв?
Самый новый отзыв
С
24 октября
Оценка:
Способы покупки
Сейчас скидки хорошие, если брать, то лучше не затягивать, чем дальше, тем дороже
Ответить
Полезный отзыв?
Добавьте отзыв, заполнив личные данные, или сначала войдите на сайт, тогда информация будет автоматически взята из личного профиля.
Оценка*