Рейтинг@Mail.ru
Переверните экран
Новостройки Квартиры Ипотека Новостройки Москвы Новостройки Подмосковья Новостройки Новой Москвы Готовые новостройки Новостройки на карте Акции от застройщиков Коммерческие помещения Продавцы и застройщики Панорамы новостроек Видеообзор новостроек Экспертиза новостроек Экология Москвы и Подмосковья Студии 1-комнатные 2-комнатные 3-комнатные Квартиры на карте Ипотечный калькулятор Семейная ипотека Военная ипотека Банки и программы Медиа Новости недвижимости Мнение эксперта Аналитика рынка Покупателю Экспертиза новостроек Эксперты и авторы О проекте Контакты Реклама на сайте Vk Youtube Telegram Дзен Машиноместа Апартаменты #траншевая ипотека #рассрочка IT-ипотека Квартиры со скидками до 40% Видео 360° новостроек Субсидированная застройщиком Rutube Поиск дома в Москве Программа реновации в Москве Новостройки премиум-класса Новостройки бизнес-класса Рассрочка Траншевая ипотека ГАЛС Дома и коттеджи Бизнес-центры Бизнес-центры в Москве Бизнес-центры рядом с метро Строящиеся бизнес-центры Бизнес-центры класса A Бизнес-центры класса B ЛСР
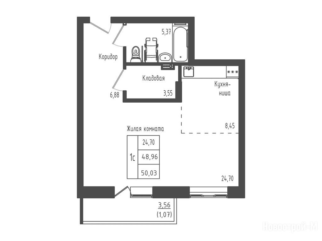
студия, 50.03 м2, 1 этаж
Срок сдачи 4 квартал 2025 года
8 410 364 
168 106 2
обновлено 18 декабря

Описание студии

Срок ГК
4 квартал 2025 года
Общая площадь
50.03 м2
Жилая площадь
24.70 м2
Площадь кухни
8.45 м2
Этаж
1 / 5

Расположение студии

Станция МЦД
Лобня
35 мин.
Ж/Д-станция
Депо
25 мин.
Дом
2
Адрес
2-й Восточный проезд, секция 2

Способы покупки

Особенности

Продается студия в новостройке ЖК «Зеленый Оазис-Город» по адресу Московская область, Дмитровский городской округ, Рыбаки деревня, 2-й Восточный проезд. Общая площадь квартиры - 50.03 кв. м. Тип проекта, по которому построен дом — Монолитно-кирпичный, компания-застройщик — ООО «СЗ «КОНЦЕПТ ИММО ДЕВЕЛОПМЕНТ». Стоимость квартиры — 8 410 364 руб. Способы оплаты можно уточнить у продавца. Срок сдачи — 4 квартал 2025. Более подробная информация по телефону.
Инфоцентр новостроек
Инфоцентр новостроек
Время работы 9:00 — 21:00
Выбирайте квартиру в ЖК «Зеленый Оазис-Город» по ценам от застройщика
Посмотреть все спецпредложения
Этаж 3/5
МО, ЖК «Зеленый Оазис-Город»
Лобня
35 мин.
Строится
Этаж 2/5
МО, ЖК «Зеленый Оазис-Город»
Лобня
35 мин.
Строится
Этаж 5/5
МО, ЖК «Зеленый Оазис-Город»
Лобня
35 мин.
Строится
Этаж 2/5
МО, ЖК «Зеленый Оазис-Город»
Лобня
35 мин.
Строится
Посмотреть 75 квартир в ЖК «Зеленый Оазис-Город»
Этаж 2/5
МО, ЖК «Зеленый Оазис-Город»
Лобня
35 мин.
Строится
Этаж 2/5
МО, ЖК «Зеленый Оазис-Город»
Лобня
35 мин.
Строится
Этаж 1/5
МО, ЖК «Зеленый Оазис-Город»
Лобня
35 мин.
Строится
Этаж 2/5
МО, ЖК «Зеленый Оазис-Город»
Лобня
35 мин.
Строится
Посмотреть 98 квартир в ЖК «Зеленый Оазис-Город»
Этаж 5/5
МО, ЖК «Зеленый Оазис-Город»
Лобня
35 мин.
Строится
Этаж 4/5
МО, ЖК «Зеленый Оазис-Город»
Лобня
35 мин.
Строится

Скидки и спецпредложения от застройщиков

ЖК «Зеленый Оазис-Город» на карте

Выгодные предложения на новостройки

Отзывы о ЖК «Зеленый Оазис-Город»

Самый полезный отзыв
ВП
09 декабря 2024
Оценка:
Социальная инфраструктура
Планировки
Способы покупки
Двор, окружение
Расположение
10 монолитно-кирпичных зданий с отделкой «под ключ». На территории жилого комплекса реализована концепция «двор без машин», будут детский сад, средняя школа, торговый центр, спортивные и детские площадки. В 10 минутах пешком от ЖК расположены два больших озера.
Ответить
Полезный отзыв?
Самый новый отзыв
СЗ
25 сентября
Оценка:
Экология
Планировки
Внешний вид фасада
Двор, окружение
Расположение
Рядом лесные массивы, водоемы. Цены адекватные, зависит еще от периода покупки. Нравится, что застройка пятиэтажная и что есть дух загородной жизни. Архитектура не броская, спокойная и аккуратная. Хороший вариант по расположению, если нет приоритета жить в центре событий, если работа позволяет. Мы работаем удаленно, так что нас это устраивает
Ответить
Полезный отзыв?
Добавьте отзыв, заполнив личные данные, или сначала войдите на сайт, тогда информация будет автоматически взята из личного профиля.
Оценка*