Рейтинг@Mail.ru
Переверните экран
Новостройки Квартиры Ипотека Новостройки Москвы Новостройки Подмосковья Новостройки Новой Москвы Готовые новостройки Новостройки на карте Акции от застройщиков Коммерческие помещения Продавцы и застройщики Панорамы новостроек Видеообзор новостроек Экспертиза новостроек Экология Москвы и Подмосковья Студии 1-комнатные 2-комнатные 3-комнатные Квартиры на карте Ипотечный калькулятор Семейная ипотека Военная ипотека Банки и программы Медиа Новости недвижимости Мнение эксперта Аналитика рынка Покупателю Экспертиза новостроек Эксперты и авторы О проекте Контакты Реклама на сайте Vk Youtube Telegram Дзен Машиноместа Апартаменты #траншевая ипотека #рассрочка ИТ-ипотека Квартиры со скидками до 40% Видео 360° новостроек Субсидированная застройщиком Rutube Поиск дома в Москве Программа реновации в Москве Новостройки премиум-класса Новостройки бизнес-класса Рассрочка Траншевая ипотека Дома и коттеджи Бизнес-центры Бизнес-центры в Москве Бизнес-центры рядом с метро Строящиеся бизнес-центры Бизнес-центры класса A Бизнес-центры класса B Ипотека со ставкой 0,1%
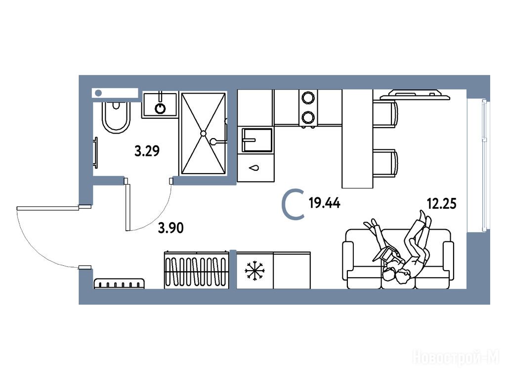
студия, 19.44 м2, 4 этаж
Срок сдачи 3 квартал 2026 года
8 840 000 
454 733 2
обновлено 20 марта

Описание студии

Срок ГК
3 квартал 2026 года
Стадия строительства
монтаж верхних этажей
Тип проекта
Общая площадь
19.44 м2
Жилая площадь
8.80 м2
Площадь кухни
3.45 м2
Высота потолков
2.70
Этаж
4 / 13
Отделка
предчистовая

Расположение студии

Метро
Станция МЦК
Ж/Д-станция
Мытищи
10 мин.
Дом
Дом Перов
Адрес
ул. Комарова-Институтская, корп. Дом Перов, секция 2

Способы покупки

Особенности

Продается студия в новостройке ЖК «Страна. Парковая» по адресу Московская область, Мытищи городской округ, Мытищи, ул. Комарова-Институтская, корп. Дом Перов. Общая площадь квартиры - 19.44 кв. м. Тип проекта, по которому построен дом — Монолитно-каркасный, компания-застройщик — Страна Девелопмент. Стоимость квартиры — 8 840 000 руб. Способы оплаты можно уточнить у продавца. Срок сдачи — 3 квартал 2026. Более подробная информация по телефону.

Правовые документы

Инфоцентр новостроек
Инфоцентр новостроек
+7 (499) 705-91-41
Время работы 9:00 — 21:00

Похожие квартиры в «Стране. Парковой»

5 этаж
из 13 3 квартал 2026
Московская область, Мытищи городской округ
Медведково
17 мин.
Дом Перов
Корпус
предчистовая
Отделка
2.70 м
Потолки
ЖК «Страна. Парковая»
8 900 000
Альфа-Банк, Уралсиб, СберБанк, Сургутнефтегазбанк, ВТБ, Всероссийский банк развития регионов, Азиатско-Тихоокеанский Банк, Совкомбанк, ДОМ.РФ, Промсвязьбанк, Банк Россия, Абсолют Банк, Банк Санкт-Петербург, Россельхозбанк, Московский Кредитный Банк
6.00%
Ставка
30.10%
Первый взнос
от 53 360 /мес.
Все варианты
Этаж 5/13
МО, ЖК «Страна. Парковая»
Медведково
17 мин.
Строится
Этаж 6/19
МО, ЖК «Страна. Парковая»
Медведково
17 мин.
Строится
студия 20,53 м2 8 530 000
Этаж 18/25
МО, ЖК «Страна. Парковая»
Медведково
17 мин.
Строится
Этаж 13/13
МО, ЖК «Страна. Парковая»
Медведково
17 мин.
Строится
Посмотреть 87 квартир в «Стране. Парковой»
Этаж 19/19
МО, ЖК «Страна. Парковая»
Медведково
17 мин.
Строится
Этаж 12/18
МО, ЖК «Страна. Парковая»
Медведково
17 мин.
Строится
Этаж 8/25
МО, ЖК «Страна. Парковая»
Медведково
17 мин.
Строится
Этаж 8/25
МО, ЖК «Страна. Парковая»
Медведково
17 мин.
Строится
Посмотреть 228 квартир в «Стране. Парковой»
Этаж 7/25
МО, ЖК «Страна. Парковая»
Медведково
17 мин.
Строится
Этаж 11/11
МО, ЖК «Страна. Парковая»
Медведково
17 мин.
Строится
Этаж 23/25
МО, ЖК «Страна. Парковая»
Медведково
17 мин.
Строится
Этаж 10/11
МО, ЖК «Страна. Парковая»
Медведково
17 мин.
Строится
Посмотреть 106 квартир в «Стране. Парковой»
Этаж 12/25
МО, ЖК «Страна. Парковая»
Медведково
17 мин.
Строится
Этаж 13/13
МО, ЖК «Страна. Парковая»
Медведково
17 мин.
Строится
Этаж 15/25
МО, ЖК «Страна. Парковая»
Медведково
17 мин.
Строится
Этаж 14/16
МО, ЖК «Страна. Парковая»
Медведково
17 мин.
Строится
Посмотреть 32 квартиры в «Стране. Парковой»
Этаж 19/19
МО, ЖК «Страна. Парковая»
Медведково
17 мин.
Строится
Этаж 12/13
МО, ЖК «Страна. Парковая»
Медведково
17 мин.
Строится
Этаж 2/13
МО, ЖК «Страна. Парковая»
Медведково
17 мин.
Строится

Скидки и спецпредложения от застройщиков

ЖК «Страна. Парковая» на карте

Выгодные предложения на новостройки

Отзывы о «Стране. Парковой»

Самый полезный отзыв
СК
20 ноября 2024
Оценка:
Достоинства
Планировки
Внешний вид фасада
Двор, окружение
Расположение
Шикарный проект, прям в центре города! Планировка шикарная, квартиры большие, и с хорошей планировкой, цены хорошие, дизайн домов шикарный! Я в восторге!!! И в шоке от планировок таких домиков!
Ответить
Самый новый отзыв
СМ
10 марта
Оценка:
Достоинства
Планировки
Предлагаются различные планировки, в том числе редкие варианты с лоджиями и террасами.
Ответить

Оставить отзыв

Добавьте отзыв, заполнив личные данные, или сначала войдите на сайт, тогда информация будет автоматически взята из личного профиля.
Оценка*