Рейтинг@Mail.ru
Переверните экран
Новостройки Квартиры Ипотека Новостройки Москвы Новостройки Подмосковья Новостройки Новой Москвы Готовые новостройки Новостройки на карте Акции от застройщиков Коммерческие помещения Продавцы и застройщики Панорамы новостроек Видеообзор новостроек Экспертиза новостроек Экология Москвы и Подмосковья Студии 1-комнатные 2-комнатные 3-комнатные Квартиры на карте Ипотечный калькулятор Семейная ипотека Военная ипотека Банки и программы Медиа Новости недвижимости Мнение эксперта Аналитика рынка Покупателю Экспертиза новостроек Эксперты и авторы О проекте Контакты Реклама на сайте Vk Youtube Telegram Дзен Машиноместа Апартаменты #траншевая ипотека #рассрочка ИТ-ипотека Квартиры со скидками до 40% Видео 360° новостроек Субсидированная застройщиком Rutube Поиск дома в Москве Программа реновации в Москве Новостройки премиум-класса Новостройки бизнес-класса Рассрочка Траншевая ипотека Дома и коттеджи Бизнес-центры Бизнес-центры в Москве Бизнес-центры рядом с метро Строящиеся бизнес-центры Бизнес-центры класса A Бизнес-центры класса B Ипотека со ставкой 0,1%
Данное предложение на 01.04.2026 неактуально. Пожалуйста, ознакомьтесь с другими похожими предложениями в ЖК «Одинцово сити» .
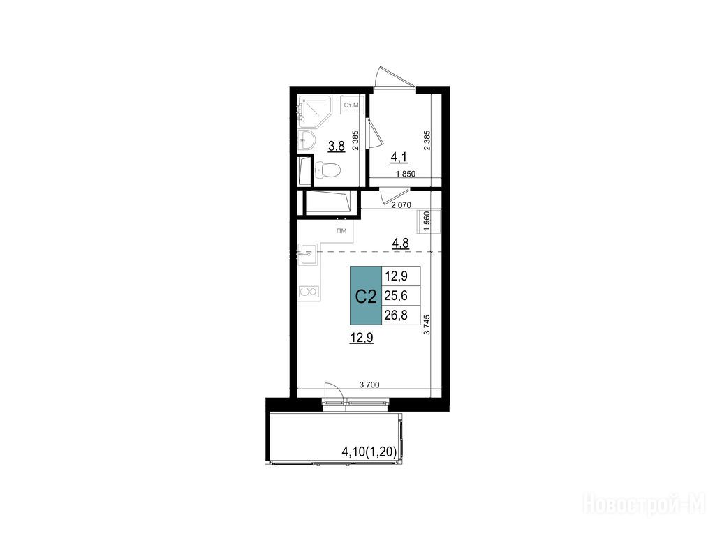
студия, 26.80 м2, 5 этаж
Срок сдачи 3 квартал 2026 года
6 409 122 
239 146 2
обновлено 19 января

Описание студии

Новостройка
Срок ГК
3 квартал 2026 года
Стадия строительства
Общая площадь
26.80 м2
Жилая площадь
12.90 м2
Площадь кухни
4.80 м2
Этаж
5 / 25

Расположение студии

Станция МЦД
Дом
23
Адрес
ул. Бэри, корп. 23, секция 2

Особенности

Продается студия в новостройке ЖК «Одинцово сити» по адресу Московская область, Одинцовский район, Одинцово, ул. Бэри, корп. 23. Общая площадь квартиры - 26.8 кв. м. Тип проекта, по которому построен дом — Монолитно-кирпичный, компания-застройщик — ООО СЗ «АТЛАНТИС СКАЙ СИТИ». Стоимость квартиры — 6 409 122 руб. Способы оплаты можно уточнить у продавца. Срок сдачи — 3 квартал 2026. Более подробная информация по телефону.
Инфоцентр новостроек
Инфоцентр новостроек
+7 (499) 705-91-41
Время работы 9:00 — 21:00

Похожие квартиры в ЖК «Одинцово сити»

25 этаж
из 25 3 квартал 2026
Московская область, Одинцовский район
Одинцово
20 мин.
23
Корпус
нет данных
Отделка
2.70 м
Потолки
ЖК «Одинцово сити»
7 302 008
студия 26,80 м2 7 302 008
Этаж 25/25
МО, ЖК «Одинцово сити»
Одинцово
20 мин.
Строится
студия 26,90 м2 6 509 800
Этаж 3/25
МО, ЖК «Одинцово сити»
Одинцово
20 мин.
Строится
студия 27,90 м2 6 751 800
Этаж 3/25
МО, ЖК «Одинцово сити»
Одинцово
20 мин.
Строится
студия 28,00 м2 6 776 000
Этаж 2/25
МО, ЖК «Одинцово сити»
Одинцово
20 мин.
Строится
Посмотреть 96 квартир в ЖК «Одинцово сити»
1-комн. квартира 35,90 м2 9 196 539
Этаж 11/25
МО, ЖК «Одинцово сити»
Одинцово
20 мин.
Строится
1-комн. квартира 37,90 м2 9 697 738
Этаж 8/25
МО, ЖК «Одинцово сити»
Одинцово
20 мин.
Строится
1-комн. квартира 38,60 м2 9 457 000
Этаж 4/26
МО, ЖК «Одинцово сити»
Одинцово
20 мин.
Строится
1-комн. квартира 39,30 м2 9 510 600
Этаж 2/25
МО, ЖК «Одинцово сити»
Одинцово
20 мин.
Строится
Посмотреть 149 квартир в ЖК «Одинцово сити»
2-комн. квартира 49,00 м2 11 956 490
Этаж 5/26
МО, ЖК «Одинцово сити»
Одинцово
20 мин.
Строится
Этаж 23/26
МО, ЖК «Одинцово сити»
Одинцово
20 мин.
Строится
2-комн. квартира 53,60 м2 13 052 567
Этаж 4/26
МО, ЖК «Одинцово сити»
Одинцово
20 мин.
Строится
2-комн. квартира 55,40 м2 13 518 976
Этаж 5/26
МО, ЖК «Одинцово сити»
Одинцово
20 мин.
Строится
Посмотреть 82 квартиры в ЖК «Одинцово сити»
Этаж 23/26
МО, ЖК «Одинцово сити»
Одинцово
20 мин.
Строится
3-комн. квартира 58,20 м2 14 633 419
Этаж 5/26
МО, ЖК «Одинцово сити»
Одинцово
20 мин.
Строится
3-комн. квартира 77,30 м2 15 073 585
Этаж 3/25
МО, ЖК «Одинцово сити»
Одинцово
20 мин.
Строится
Этаж 23/26
МО, ЖК «Одинцово сити»
Одинцово
20 мин.
Строится
Посмотреть 75 квартир в ЖК «Одинцово сити»
Этаж 23/26
МО, ЖК «Одинцово сити»
Одинцово
20 мин.
Строится

Скидки и спецпредложения от застройщиков

ЖК «Одинцово сити» на карте

Выгодные предложения на новостройки

Отзывы о ЖК «Одинцово сити»

Самый полезный отзыв
ОЧ
11 февраля 2025
Оценка:
Достоинства
Экология
Планировки
Способы покупки
Двор, окружение
Расположение
Место прекрасное, развита инфраструктура. ЭКО ЗОНА. Буду брать квартиру там по цене, мне подходит!Менеджеры все объяснили предложили программы банков для меня подходящую! Довольна всем! Все понятно и доступно! Рекомендую застройщика и ЖК
Ответить
Самый новый отзыв
А
24 ноября 2025
Оценка:
Рядом кладбище. нет парковок. нет инфраструктуры
Ответить

Оставить отзыв

Добавьте отзыв, заполнив личные данные, или сначала войдите на сайт, тогда информация будет автоматически взята из личного профиля.
Оценка*