Рейтинг@Mail.ru
Переверните экран
Новостройки Квартиры Ипотека Новостройки Москвы Новостройки Подмосковья Новостройки Новой Москвы Готовые новостройки Новостройки на карте Акции от застройщиков Коммерческие помещения Продавцы и застройщики Панорамы новостроек Видеообзор новостроек Экспертиза новостроек Экология Москвы и Подмосковья Студии 1-комнатные 2-комнатные 3-комнатные Квартиры на карте Ипотечный калькулятор Семейная ипотека Военная ипотека Банки и программы Медиа Новости недвижимости Мнение эксперта Аналитика рынка Покупателю Экспертиза новостроек Эксперты и авторы О проекте Контакты Реклама на сайте Vk Youtube Telegram Дзен Машиноместа Апартаменты #траншевая ипотека #рассрочка IT-ипотека Квартиры со скидками до 40% Видео 360° новостроек Субсидированная застройщиком Rutube Поиск дома в Москве Программа реновации в Москве Новостройки премиум-класса Новостройки бизнес-класса Рассрочка Траншевая ипотека Дома и коттеджи Бизнес-центры Бизнес-центры в Москве Бизнес-центры рядом с метро Строящиеся бизнес-центры Бизнес-центры класса A Бизнес-центры класса B
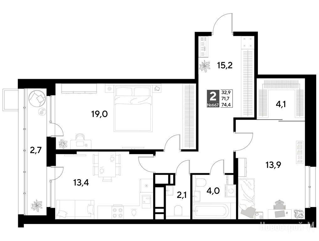
2-комн. квартира, 74.40 м2, 12 этаж
Срок сдачи 2 квартал 2027 года
9 419 040 
126 600 2
обновлено 21 января

Описание 2-комн. квартиры

Новостройка
Застройщик
Срок ГК
2 квартал 2027 года
Стадия строительства
монтаж нижних этажей
Общая площадь
74.40 м2
Жилая площадь
32.90 м2
Площадь кухни
13.40 м2
Этаж
12 / 21
Отделка
нет
Грузовой лифт
есть

Расположение 2-комн. квартиры

Локация
Дом
1
Адрес
ул. Светловская, корп. 1

Способы покупки

Особенности

Продается двухкомнатная квартира в новостройке ЖК «Снегири» по адресу Омская область, Омск, ул. Светловская, корп. 1. Общая площадь квартиры - 74.4 кв. м. Тип проекта, по которому построен дом — Монолитно-кирпичный, компания-застройщик — DOGMA, ООО СЗ ДОГМА-ОМСК. Стоимость квартиры — 9 419 040 руб. Способы оплаты можно уточнить у продавца. Срок сдачи — 2 квартал 2027. Более подробная информация по телефону.
DOGMA
DOGMA
Сданных 0
|
Строящихся 8
Время работы 09:00 — 20:00
Выбирайте квартиру в ЖК «Снегири» по ценам от застройщика

Похожие квартиры в ЖК «Снегири»

7 этаж
из 21 2 квартал 2027
Омская область, Омская область
1
Корпус
нет
Отделка
2.69 м
Потолки
ЖК «Снегири»
9 300 000
СберБанк
4.00%
Ставка
30.00%
Первый взнос
от 44 400 /мес.
Все варианты
10 этаж
из 21 2 квартал 2027
Омская область, Омская область
1
Корпус
нет
Отделка
2.69 м
Потолки
ЖК «Снегири»
9 374 400
СберБанк
4.00%
Ставка
30.00%
Первый взнос
от 44 755 /мес.
Все варианты
16 этаж
из 21 2 квартал 2027
Омская область, Омская область
1
Корпус
нет
Отделка
2.69 м
Потолки
ЖК «Снегири»
9 448 800
СберБанк
4.00%
Ставка
30.00%
Первый взнос
от 45 110 /мес.
Все варианты
Посмотреть все спецпредложения
Этаж 21/21
МО, ЖК «Снегири»
Строится
Этаж 3/21
МО, ЖК «Снегири»
Строится
Этаж 19/21
МО, ЖК «Снегири»
Строится
Посмотреть 26 квартир в ЖК «Снегири»
Этаж 19/21
МО, ЖК «Снегири»
Строится
Этаж 12/21
МО, ЖК «Снегири»
Строится
Этаж 18/21
МО, ЖК «Снегири»
Строится
Этаж 6/21
МО, ЖК «Снегири»
Строится
Посмотреть 63 квартиры в ЖК «Снегири»
Этаж 13/21
МО, ЖК «Снегири»
Строится
Этаж 20/21
МО, ЖК «Снегири»
Строится
Этаж 21/21
МО, ЖК «Снегири»
Строится
Этаж 12/21
МО, ЖК «Снегири»
Строится
Посмотреть 62 квартиры в ЖК «Снегири»
Этаж 18/21
МО, ЖК «Снегири»
Строится
Этаж 20/21
МО, ЖК «Снегири»
Строится
Этаж 12/21
МО, ЖК «Снегири»
Строится
Этаж 20/21
МО, ЖК «Снегири»
Строится
Посмотреть 20 квартир в ЖК «Снегири»

Скидки и спецпредложения от застройщиков

ЖК «Снегири» на карте

Выгодные предложения на новостройки

Отзывы о ЖК «Снегири»

Будьте первым, кто оставит отзыв
о ЖК «Снегири»
Добавьте отзыв, заполнив личные данные, или сначала войдите на сайт, тогда информация будет автоматически взята из личного профиля.
Оценка*