Рейтинг@Mail.ru
Переверните экран
Новостройки Квартиры Ипотека Новостройки Москвы Новостройки Подмосковья Новостройки Новой Москвы Готовые новостройки Новостройки на карте Акции от застройщиков Коммерческие помещения Продавцы и застройщики Панорамы новостроек Видеообзор новостроек Экспертиза новостроек Экология Москвы и Подмосковья Студии 1-комнатные 2-комнатные 3-комнатные Квартиры на карте Ипотечный калькулятор Семейная ипотека Военная ипотека Банки и программы Медиа Новости недвижимости Мнение эксперта Аналитика рынка Покупателю Экспертиза новостроек Эксперты и авторы О проекте Контакты Реклама на сайте Vk Youtube Telegram Дзен Машиноместа Апартаменты #траншевая ипотека #рассрочка IT-ипотека Квартиры со скидками до 40% Видео 360° новостроек Субсидированная застройщиком Rutube Поиск дома в Москве Программа реновации в Москве Новостройки премиум-класса Новостройки бизнес-класса Рассрочка Траншевая ипотека ГАЛС Дома и коттеджи Бизнес-центры Бизнес-центры в Москве Бизнес-центры рядом с метро Строящиеся бизнес-центры Бизнес-центры класса A Бизнес-центры класса B ЛСР
2-комн. квартира, 97.00 м2, 5 этаж
Сдан
30 070 000 
310 000 2
обновлено 5 декабря

Описание 2-комн. квартиры

Застройщик
Срок ГК
Дом сдан
Стадия строительства
выдача ключей + заселение
Тип проекта
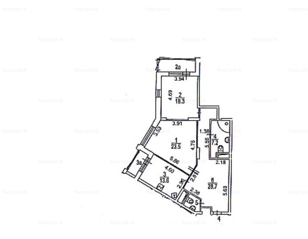
Общая площадь
97.00 м2
Этаж
5 / 40
Отделка
чистовая
Грузовой лифт
есть

Расположение 2-комн. квартиры

Локация
Метро
Станция МЦК
Коптево
32 мин.
Дом
1 (38к.1)
Адрес
ул. Дыбенко, д. 38 корп. 1

Способы покупки

Особенности

Продается двухкомнатная квартира в новостройке ЖК на ул. Дыбенко, корп. 1, вл. 38 (ЖК Корона Севера) по адресу Москва, САО, Западное Дегунино, ул. Дыбенко, д. 38 корп. 1. Общая площадь квартиры - 97 кв. м. Тип проекта, по которому построен дом — Монолитно-кирпичный, компания-застройщик — ДОКОН. Стоимость квартиры — 30 070 000 руб. Способы оплаты можно уточнить у продавца. Более подробная информация по телефону.
Время работы 9:00 — 21:00
Выбирайте квартиру в ЖК на ул. Дыбенко, корп. 1, вл. 38 (ЖК Корона Севера) по ценам от застройщика
Посмотреть все спецпредложения

Еще квартиры в ЖК на ул. Дыбенко, корп. 1, вл. 38 (ЖК Корона Севера)

2-комн. квартира 97,90 м2 30 349 000
Этаж 14/40
Москва, ЖК на ул. Дыбенко, корп. 1, вл. 38 (ЖК Корона Севера)
Речной Вокзал
10 мин.
Сдан

Скидки и спецпредложения от застройщиков

ЖК на ул. Дыбенко, корп. 1, вл. 38 (ЖК Корона Севера) на карте

Выгодные предложения на новостройки

Отзывы о ЖК на ул. Дыбенко, корп. 1, вл. 38 (ЖК Корона Севера)

Самый полезный отзыв
Г
17 августа 2016
конечно плкупка квартиры в этом жк была ощутима для нашего бюджета , цена низкой не показалась ) но зато она адекватно соответствует комфорту проживания здесь. Ни с инфраструктурой, ни с экологией, ни с транспортной доступностью проблем нет
Ответить
Полезный отзыв?
Самый новый отзыв
G
17 января 2017
Нашу башню видно издалека, так и притягивает взгляд) Расположение радует: и МКАД недалеко, и при этом территория Москвы. Правда, если без машины по утрам добираться до метро (на автобусе или маршрутке), то можно застрять в пробках. Ждем когда метро Ховрино откроют, будет полегче.
Ответить
Полезный отзыв?
Добавьте отзыв, заполнив личные данные, или сначала войдите на сайт, тогда информация будет автоматически взята из личного профиля.
Оценка*