Рейтинг@Mail.ru
Переверните экран
Новостройки Квартиры Ипотека Новостройки Москвы Новостройки Подмосковья Новостройки Новой Москвы Готовые новостройки Новостройки на карте Акции от застройщиков Коммерческие помещения Продавцы и застройщики Панорамы новостроек Видеообзор новостроек Экспертиза новостроек Экология Москвы и Подмосковья Студии 1-комнатные 2-комнатные 3-комнатные Квартиры на карте Ипотечный калькулятор Семейная ипотека Военная ипотека Банки и программы Медиа Новости недвижимости Мнение эксперта Аналитика рынка Покупателю Экспертиза новостроек Эксперты и авторы О проекте Контакты Реклама на сайте Vk Youtube Telegram Дзен Машиноместа Апартаменты #траншевая ипотека #рассрочка IT-ипотека Квартиры со скидками до 40% Видео 360° новостроек Субсидированная застройщиком Rutube Поиск дома в Москве Программа реновации в Москве Новостройки премиум-класса Новостройки бизнес-класса Рассрочка Траншевая ипотека ГАЛС Дома и коттеджи Бизнес-центры Бизнес-центры в Москве Бизнес-центры рядом с метро Строящиеся бизнес-центры Бизнес-центры класса A Бизнес-центры класса B ЛСР
Данная квартира является лидером продаж среди двухкомнатных квартир в ЖК MYPRIORITY Мневники (Май Приорити Мневники) по данным Росреестра
Данное предложение на 17.12.2025 неактуально. Пожалуйста, ознакомьтесь с другими похожими предложениями в ЖК MYPRIORITY Мневники (Май Приорити Мневники) .
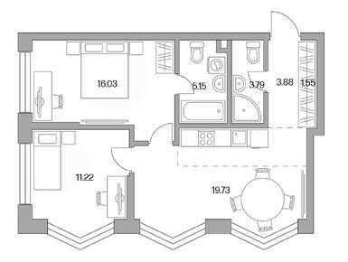
2-комн. квартира, 61.35 м2, 2 этаж
Срок сдачи 2 квартал 2028 года
26 721 615 
29 423 801
435 560 2
обновлено 6 октября

Описание 2-комн. квартиры

Срок ГК
2 квартал 2028 года
Стадия строительства
котлован/фундамент
Тип проекта
Общая площадь
61.35 м2
Жилая площадь
27.25 м2
Площадь кухни
19.73 м2
Этаж
2 / 27
Отделка
нет

Расположение 2-комн. квартиры

Локация
Станция МЦК
Зорге
13 мин.
Дом
1
Адрес
ул. Народного Ополчения, вл. 34, корп. 1, секция 1

Способы покупки

Особенности

Продается двухкомнатная квартира в новостройке ЖК MYPRIORITY Мневники (Май Приорити Мневники) по адресу Москва, СЗАО, Хорошево-Мневники, ул. Народного Ополчения, вл. 34, корп. 1. Общая площадь квартиры - 61.35 кв. м. Тип проекта, по которому построен дом — Монолит, компания-застройщик — ГК «Гранель», ООО СЗ ГРАНЕЛЬ АЛЬФА. Стоимость квартиры — 26 721 615 руб. Способы оплаты можно уточнить у продавца. Срок сдачи — 2 квартал 2028. Более подробная информация по телефону.
ГК «Гранель»
ГК «Гранель»
Сданных 16
|
Строящихся 16
Время работы 09:00 — 21:00
Выбирайте квартиру в ЖК MYPRIORITY Мневники (Май Приорити Мневники) по ценам от застройщика

Похожие квартиры в ЖК MYPRIORITY Мневники (Май Приорити Мневники)

3 этаж
из 27 2 квартал 2028
Москва, СЗАО
Октябрьское Поле
13 мин.
1
Корпус
нет
Отделка
3.20 м
Потолки
ЖК MYPRIORITY Мневники (Май Приорити Мневники)
30 121 561 35 565 217
Всероссийский банк развития регионов, Азиатско-Тихоокеанский Банк, СберБанк, Совкомбанк, Банк Санкт-Петербург, Примсоцбанк, Металлинвестбанк, Абсолют Банк, Россельхозбанк, ДОМ.РФ, Уралсиб, Промсвязьбанк, Севергазбанк, Московский Кредитный Банк, МТС Банк, Альфа-Банк, Сургутнефтегазбанк, ВТБ
5.80%
Ставка
20.10%
Первый взнос
от 176 739 /мес.
Все варианты
Посмотреть все спецпредложения
студия 28,02 м2 17 975 758
Этаж 7/9
Москва, ЖК MYPRIORITY Мневники (Май Приорити Мневники)
Октябрьское Поле
13 мин.
Строится
студия 28,03 м2 16 100 630
Этаж 3/39
Москва, ЖК MYPRIORITY Мневники (Май Приорити Мневники)
Октябрьское Поле
13 мин.
Строится
студия 28,04 м2 17 047 481
Этаж 6/9
Москва, ЖК MYPRIORITY Мневники (Май Приорити Мневники)
Октябрьское Поле
13 мин.
Строится
студия 28,05 м2 16 838 374
Этаж 2/27
Москва, ЖК MYPRIORITY Мневники (Май Приорити Мневники)
Октябрьское Поле
13 мин.
Строится
Посмотреть 75 квартир в ЖК MYPRIORITY Мневники (Май Приорити Мневники)
1-комн. квартира 31,47 м2 17 986 057
Этаж 2/39
Москва, ЖК MYPRIORITY Мневники (Май Приорити Мневники)
Октябрьское Поле
13 мин.
Строится
1-комн. квартира 31,50 м2 18 003 203
Этаж 2/39
Москва, ЖК MYPRIORITY Мневники (Май Приорити Мневники)
Октябрьское Поле
13 мин.
Строится
1-комн. квартира 32,82 м2 19 009 403
Этаж 8/39
Москва, ЖК MYPRIORITY Мневники (Май Приорити Мневники)
Октябрьское Поле
13 мин.
Строится
1-комн. квартира 32,87 м2 17 682 983
Этаж 11/27
Москва, ЖК MYPRIORITY Мневники (Май Приорити Мневники)
Октябрьское Поле
13 мин.
Строится
Посмотреть 174 квартиры в ЖК MYPRIORITY Мневники (Май Приорити Мневники)
2-комн. квартира 55,49 м2 29 372 895
Этаж 4/9
Москва, ЖК MYPRIORITY Мневники (Май Приорити Мневники)
Октябрьское Поле
13 мин.
Строится
Этаж 3/9
Москва, ЖК MYPRIORITY Мневники (Май Приорити Мневники)
Октябрьское Поле
13 мин.
Строится
Этаж 5/9
Москва, ЖК MYPRIORITY Мневники (Май Приорити Мневники)
Октябрьское Поле
13 мин.
Строится
2-комн. квартира 56,37 м2 29 622 489
Этаж 2/9
Москва, ЖК MYPRIORITY Мневники (Май Приорити Мневники)
Октябрьское Поле
13 мин.
Строится
Посмотреть 50 квартир в ЖК MYPRIORITY Мневники (Май Приорити Мневники)
Этаж 10/39
Москва, ЖК MYPRIORITY Мневники (Май Приорити Мневники)
Октябрьское Поле
13 мин.
Строится
Этаж 15/27
Москва, ЖК MYPRIORITY Мневники (Май Приорити Мневники)
Октябрьское Поле
13 мин.
Строится
3-комн. квартира 59,37 м2 28 067 706
Этаж 4/39
Москва, ЖК MYPRIORITY Мневники (Май Приорити Мневники)
Октябрьское Поле
13 мин.
Строится
3-комн. квартира 59,49 м2 28 580 818
Этаж 7/27
Москва, ЖК MYPRIORITY Мневники (Май Приорити Мневники)
Октябрьское Поле
13 мин.
Строится
Посмотреть 53 квартиры в ЖК MYPRIORITY Мневники (Май Приорити Мневники)
Этаж 27/39
Москва, ЖК MYPRIORITY Мневники (Май Приорити Мневники)
Октябрьское Поле
13 мин.
Строится
Этаж 24/27
Москва, ЖК MYPRIORITY Мневники (Май Приорити Мневники)
Октябрьское Поле
13 мин.
Строится

Скидки и спецпредложения от застройщиков

ЖК MYPRIORITY Мневники (Май Приорити Мневники) на карте

Выгодные предложения на новостройки

Отзывы о ЖК MYPRIORITY Мневники (Май Приорити Мневники)

Самый полезный отзыв
АО
20 января
Оценка:
Социальная инфраструктура
Планировки
Способы покупки
Внешний вид фасада
Двор, окружение
Недавно купил квартиру в Mypriority Мневники. Первое, что меня порадовало — это отличная инфраструктура. В шаговой доступности находятся магазины, аптеки и развлекательные заведения. В комплексе будут все условия для активного отдыха: уютные парки, спортивные площадки и зоны для детей. Квартиры просторные, с современными планировками и хорошей звукоизоляцией. На территории видеонаблюдение, круглосуточно работает охрана. В целом, доволен своим выбором!
Ответить
Полезный отзыв?
Самый новый отзыв
ИЮ
08 июля
Оценка:
Транспортная доступность
Двор, окружение
Расположение
Главным плюсом для меня является пешая доступность – всего 10 минут до метро Октябрьское поле. Объективно удобно, особенно учитывая московские пробки. С утра можно спокойно прогуляться, выпить кофе
Ответить
Полезный отзыв?
Добавьте отзыв, заполнив личные данные, или сначала войдите на сайт, тогда информация будет автоматически взята из личного профиля.
Оценка*