Рейтинг@Mail.ru
Переверните экран
Новостройки Квартиры Ипотека Новостройки Москвы Новостройки Подмосковья Новостройки Новой Москвы Готовые новостройки Новостройки на карте Акции от застройщиков Коммерческие помещения Продавцы и застройщики Панорамы новостроек Видеообзор новостроек Экспертиза новостроек Экология Москвы и Подмосковья Студии 1-комнатные 2-комнатные 3-комнатные Квартиры на карте Ипотечный калькулятор Семейная ипотека Военная ипотека Банки и программы Медиа Новости недвижимости Мнение эксперта Аналитика рынка Покупателю Экспертиза новостроек Эксперты и авторы О проекте Контакты Реклама на сайте Vk Youtube Telegram Дзен Машиноместа Апартаменты #траншевая ипотека #рассрочка IT-ипотека Квартиры со скидками до 40% Видео 360° новостроек Субсидированная застройщиком Rutube Поиск дома в Москве Программа реновации в Москве Новостройки премиум-класса Новостройки бизнес-класса Рассрочка Траншевая ипотека Дома и коттеджи Бизнес-центры Бизнес-центры в Москве Бизнес-центры рядом с метро Строящиеся бизнес-центры Бизнес-центры класса A Бизнес-центры класса B
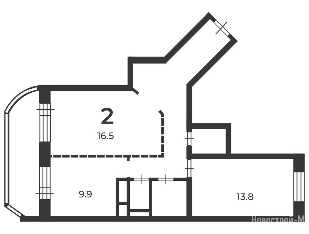
2-комн. квартира, 61.00 м2, 2 этаж
Сдан
10 454 424 
171 384 2
обновлено 30 января

Описание 2-комн. квартиры

Застройщик
Срок ГК
Дом сдан
Стадия строительства
выдача ключей + заселение
Тип проекта
Общая площадь
61.00 м2
Этаж
2 / 16

Расположение 2-комн. квартиры

Локация
Метро
Пыхтино
13 мин.
Дом
1
Адрес
д. Марушкино, Северная ул., д. 21, к. 1

Особенности

Продается двухкомнатная квартира в новостройке Жилой дом «Северная ул., д. 21, к. 1, 2, 3, 4» по адресу Москва, ЗАО, Внуково, д. Марушкино, Северная ул., д. 21, к. 1. Общая площадь квартиры - 61 кв. м. Тип проекта, по которому построен дом — Монолит, компания-застройщик — Фонд реновации. Стоимость квартиры — 10 454 424 руб. Способы оплаты можно уточнить у продавца. Более подробная информация по телефону.
Время работы 9:00 — 21:00
Выбирайте квартиру в Жилой дом «Северная ул., д. 21, к. 1, 2, 3, 4» по ценам от застройщика
Жилой дом «Северная ул., д. 21, к. 1, 2, 3, 4» Жилой дом «Северная ул., д. 21, к. 1, 2, 3, 4»|Новострой-М
Посмотреть все спецпредложения
1-комн. квартира 37,40 м2 7 118 268
Этаж 1/16
Москва, Жилой дом «Северная ул., д. 21, к. 1, 2, 3, 4»
Пыхтино
13 мин.
Сдан
1-комн. квартира 37,50 м2 7 137 300
Этаж 1/16
Москва, Жилой дом «Северная ул., д. 21, к. 1, 2, 3, 4»
Пыхтино
13 мин.
Сдан
Этаж 1/16
Москва, Жилой дом «Северная ул., д. 21, к. 1, 2, 3, 4»
Пыхтино
13 мин.
Сдан
Этаж 2/16
Москва, Жилой дом «Северная ул., д. 21, к. 1, 2, 3, 4»
Пыхтино
13 мин.
Сдан
Посмотреть 11 квартир в Жилом доме «Северная ул., д. 21, к. 1, 2, 3, 4»
Этаж 1/16
Москва, Жилой дом «Северная ул., д. 21, к. 1, 2, 3, 4»
Пыхтино
13 мин.
Сдан
Этаж 2/16
Москва, Жилой дом «Северная ул., д. 21, к. 1, 2, 3, 4»
Пыхтино
13 мин.
Сдан
Этаж 14/16
Москва, Жилой дом «Северная ул., д. 21, к. 1, 2, 3, 4»
Пыхтино
13 мин.
Сдан
Этаж 2/16
Москва, Жилой дом «Северная ул., д. 21, к. 1, 2, 3, 4»
Пыхтино
13 мин.
Сдан
Посмотреть 50 квартир в Жилом доме «Северная ул., д. 21, к. 1, 2, 3, 4»

Скидки и спецпредложения от застройщиков

Жилой дом «Северная ул., д. 21, к. 1, 2, 3, 4» на карте

Выгодные предложения на новостройки

Отзывы о Жилом доме «Северная ул., д. 21, к. 1, 2, 3, 4»

Самый новый отзыв
П
10 декабря 2025
Оценка:
Транспортная доступность
Подземный паркинг
Зелёная зона . Много автобусов. Дорога 2,5 км Станция электричка до Москвы.
Ответить
Полезный отзыв?
Добавьте отзыв, заполнив личные данные, или сначала войдите на сайт, тогда информация будет автоматически взята из личного профиля.
Оценка*