Рейтинг@Mail.ru
Переверните экран
Новостройки Квартиры Ипотека Новостройки Москвы Новостройки Подмосковья Новостройки Новой Москвы Готовые новостройки Новостройки на карте Акции от застройщиков Коммерческие помещения Продавцы и застройщики Панорамы новостроек Видеообзор новостроек Экспертиза новостроек Экология Москвы и Подмосковья Студии 1-комнатные 2-комнатные 3-комнатные Квартиры на карте Ипотечный калькулятор Семейная ипотека Военная ипотека Банки и программы Медиа Новости недвижимости Мнение эксперта Аналитика рынка Покупателю Экспертиза новостроек Эксперты и авторы О проекте Контакты Реклама на сайте Vk Youtube Telegram Дзен Машиноместа Апартаменты #траншевая ипотека #рассрочка IT-ипотека Квартиры со скидками до 40% Видео 360° новостроек Субсидированная застройщиком Rutube Поиск дома в Москве Программа реновации в Москве Новостройки премиум-класса Новостройки бизнес-класса Рассрочка Траншевая ипотека ГАЛС Дома и коттеджи Бизнес-центры Бизнес-центры в Москве Бизнес-центры рядом с метро Строящиеся бизнес-центры Бизнес-центры класса A Бизнес-центры класса B ЛСР
Данное помещение является лидером продаж среди двухкомнатных помещений в Инвест-отеле «Адрес» по данным Росреестра
2-комн. помещение, 36.20 м2, 8 этаж
Срок сдачи 1 квартал 2026 года
6 588 400 
182 000 2
обновлено 5 декабря

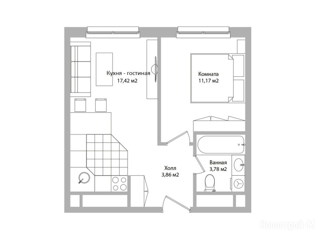
Описание 2-комн. помещения

Срок ГК
1 квартал 2026 года
Стадия строительства
монтаж верхних этажей
Общая площадь
36.20 м2
Жилая площадь
11.17 м2
Площадь кухни
17.42 м2
Этаж
8 / 16

Расположение 2-комн. помещения

Метро
Ж/Д-станция
Дом
1
Адрес
ул. Сукромка, секция 1

Особенности

Продается двухкомнатное помещение в новостройке Инвест-отель «Адрес» по адресу Московская область, Мытищи городской округ, Мытищи, ул. Сукромка. Общая площадь помещения - 36.2 кв. м. Тип проекта, по которому построен дом — Монолитно-кирпичный, компания-застройщик — ООО СЗ АРТКЛАСС-ДЕВЕЛОПМЕНТ. Стоимость помещения — 6 588 400 руб. Способы оплаты можно уточнить у продавца. Срок сдачи — 1 квартал 2026. Более подробная информация по телефону.
Инфоцентр новостроек
Инфоцентр новостроек
Время работы 9:00 — 21:00
Выбирайте помещения в Инвест-отель «Адрес» по ценам от застройщика

Похожие помещения в Инвест-отеле «Адрес»

14 этаж
из 16 1 квартал 2026
Московская область, Мытищи городской округ
Медведково
29 мин.
1
Корпус
нет данных
Отделка
2.70 м
Потолки
Инвест-отель «Адрес»
6 588 400
14 этаж
из 16 1 квартал 2026
Московская область, Мытищи городской округ
Медведково
29 мин.
1
Корпус
нет данных
Отделка
2.70 м
Потолки
Инвест-отель «Адрес»
6 588 400
16 этаж
из 16 1 квартал 2026
Московская область, Мытищи городской округ
Медведково
29 мин.
1
Корпус
нет данных
Отделка
2.70 м
Потолки
Инвест-отель «Адрес»
6 588 400
Посмотреть все спецпредложения
помещение-студия 21,30 м2 5 069 400
Этаж 16/16
МО, Инвест-отель «Адрес»
Медведково
29 мин.
Строится
помещение-студия 24,20 м2 5 021 500
Этаж 16/16
МО, Инвест-отель «Адрес»
Медведково
29 мин.
Строится
помещение-студия 24,60 м2 5 092 200
Этаж 6/16
МО, Инвест-отель «Адрес»
Медведково
29 мин.
Строится
помещение-студия 25,60 м2 5 171 200
Этаж 4/16
МО, Инвест-отель «Адрес»
Медведково
29 мин.
Строится
Посмотреть 11 помещений в Инвест-отеле «Адрес»
2-комн. помещение 33,60 м2 6 316 800
Этаж 4/16
МО, Инвест-отель «Адрес»
Медведково
29 мин.
Строится
2-комн. помещение 36,00 м2 6 552 000
Этаж 15/16
МО, Инвест-отель «Адрес»
Медведково
29 мин.
Строится
2-комн. помещение 36,20 м2 6 588 400
Этаж 14/16
МО, Инвест-отель «Адрес»
Медведково
29 мин.
Строится
2-комн. помещение 36,70 м2 6 679 400
Этаж 16/16
МО, Инвест-отель «Адрес»
Медведково
29 мин.
Строится
Посмотреть 39 помещений в Инвест-отеле «Адрес»
3-комн. помещение 61,40 м2 9 968 290
Этаж 5/16
МО, Инвест-отель «Адрес»
Медведково
29 мин.
Строится
Посмотреть 6 помещений в Инвест-отеле «Адрес»

Скидки и спецпредложения от застройщиков

Инвест-отель «Адрес» на карте

Выгодные предложения на новостройки

Отзывы о Инвест-отеле «Адрес»

Самый полезный отзыв
МД
20 ноября 2024
Оценка:
Планировки
Двор, окружение
Расположение
Хорошее благоустройство. Перспективное место. Планировки на любой вкус. Инфраструктура вся рядом - район Мытищи меня полностью устраивает. Отличные велодорожки. что тоже далеко не везде.
Ответить
Полезный отзыв?
Самый новый отзыв
К
14 ноября
Оценка:
Впервые столкнулся с такой идеей и думаю, что она может привлечь молодежь и людей, предпочитающих активный стиль жизни. Красивые общие зоны и стильный дизайн совершенно точно создают атмосферу уюта.
Ответить
Полезный отзыв?
Добавьте отзыв, заполнив личные данные, или сначала войдите на сайт, тогда информация будет автоматически взята из личного профиля.
Оценка*