Рейтинг@Mail.ru
Переверните экран
Новостройки Квартиры Ипотека Новостройки Москвы Новостройки Подмосковья Новостройки Новой Москвы Готовые новостройки Новостройки на карте Акции от застройщиков Коммерческие помещения Продавцы и застройщики Панорамы новостроек Видеообзор новостроек Экспертиза новостроек Экология Москвы и Подмосковья Студии 1-комнатные 2-комнатные 3-комнатные Квартиры на карте Ипотечный калькулятор Семейная ипотека Военная ипотека Банки и программы Медиа Новости недвижимости Мнение эксперта Аналитика рынка Покупателю Экспертиза новостроек Эксперты и авторы О проекте Контакты Реклама на сайте Vk Youtube Telegram Дзен Машиноместа Апартаменты #траншевая ипотека #рассрочка IT-ипотека Квартиры со скидками до 40% Видео 360° новостроек Субсидированная застройщиком Rutube Поиск дома в Москве Программа реновации в Москве Новостройки премиум-класса Новостройки бизнес-класса Рассрочка Траншевая ипотека Дома и коттеджи Коттеджные поселки в Новой Москве Готовые коттеджные поселки Строящиеся коттеджные поселки Коттеджные поселки в лесу Коттеджные поселки у водоема Коттеджные поселки в ипотеку ГАЛС Бизнес-центры Коттеджи Таунхаусы
Данная квартира является лидером продаж среди студий в ЖК «Ильинойс» по данным Росреестра
студия, 24.40 м2, 22 этаж
Срок сдачи 3 квартал 2028 года
7 476 084 
8 421 336
306 397 2
обновлено 13 ноября

Описание студии

Новостройка
Срок ГК
3 квартал 2028 года
Стадия строительства
котлован/фундамент
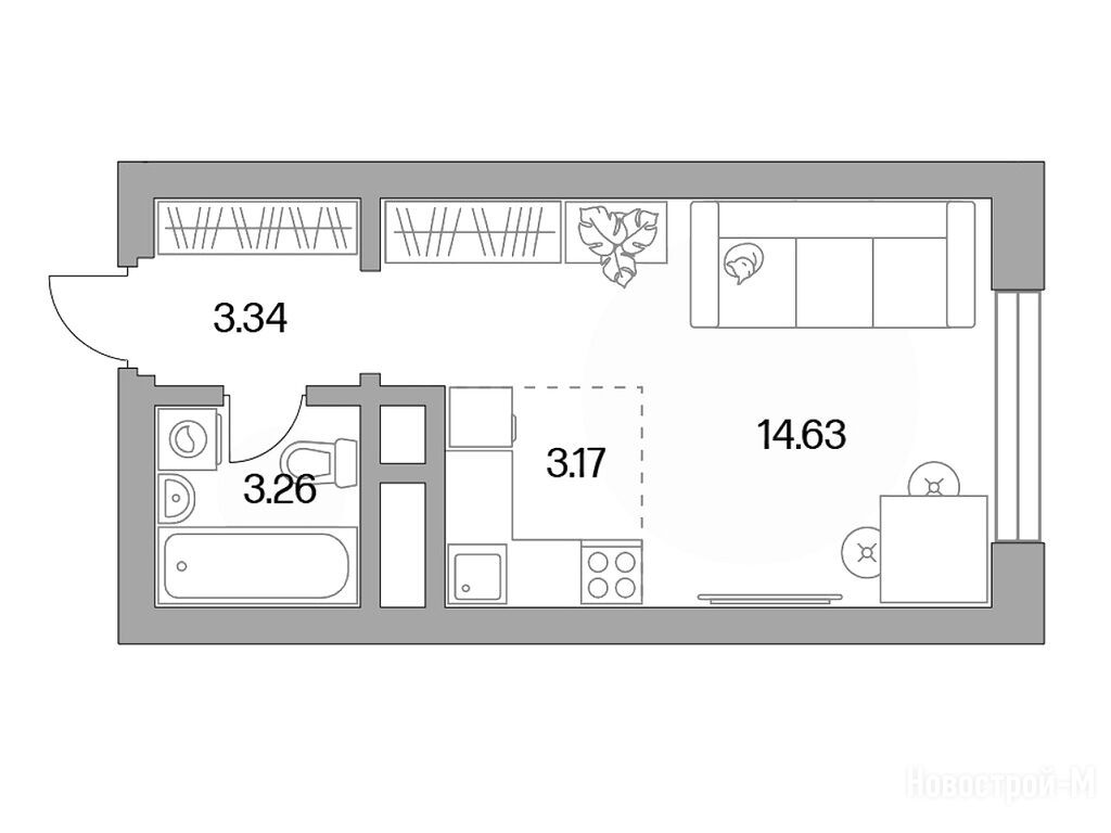
Общая площадь
24.40 м2
Жилая площадь
14.63 м2
Площадь кухни
3.17 м2
Этаж
22 / 22
Отделка
чистовая
Грузовой лифт
есть

Расположение студии

Станция МЦД
Дом
3
Адрес
ЖК «Ильинойс», корп. 3, секция 8

Способы покупки

Особенности

Продается студия в новостройке ЖК «Ильинойс» по адресу Московская область, Красногорск городской округ, Красногорск, ЖК «Ильинойс», корп. 3. Общая площадь квартиры - 24.4 кв. м. Тип проекта, по которому построен дом — Монолитно-кирпичный, компания-застройщик — ГК «Гранель», ООО СЗ ОФЕРТА. Стоимость квартиры — 7 476 084 руб. Способы оплаты можно уточнить у продавца. Срок сдачи — 3 квартал 2028. Более подробная информация по телефону.
ГК «Гранель»
ГК «Гранель»
Сданных 16
|
Строящихся 15
Выбирайте квартиру в ЖК «Ильинойс» по ценам от застройщика

Похожие квартиры в ЖК «Ильинойс»

6 этаж
из 22 3 квартал 2028
Московская область, Красногорск городской округ
Красногорская
15 мин.
3
Корпус
чистовая
Отделка
2.80 м
Потолки
ЖК «Ильинойс»
7 330 446 8 257 284
ВТБ, Альфа-Банк, Всероссийский банк развития регионов, СберБанк, Азиатско-Тихоокеанский Банк, Банк Санкт-Петербург, Совкомбанк, Россельхозбанк, Абсолют Банк, Металлинвестбанк, Примсоцбанк, ДОМ.РФ, Уралсиб, Промсвязьбанк, Севергазбанк, Московский Кредитный Банк, МТС Банк, Сургутнефтегазбанк
6.00%
Ставка
40.10%
Первый взнос
от 43 950 /мес.
Все варианты
8 этаж
из 22 3 квартал 2028
Московская область, Красногорск городской округ
Красногорская
15 мин.
3
Корпус
чистовая
Отделка
2.80 м
Потолки
ЖК «Ильинойс»
7 330 446 8 257 284
ВТБ, Альфа-Банк, Всероссийский банк развития регионов, СберБанк, Азиатско-Тихоокеанский Банк, Банк Санкт-Петербург, Совкомбанк, Россельхозбанк, Абсолют Банк, Металлинвестбанк, Примсоцбанк, ДОМ.РФ, Уралсиб, Промсвязьбанк, Севергазбанк, Московский Кредитный Банк, МТС Банк, Сургутнефтегазбанк
6.00%
Ставка
40.10%
Первый взнос
от 43 950 /мес.
Все варианты
20 этаж
из 22 3 квартал 2028
Московская область, Красногорск городской округ
Красногорская
15 мин.
3
Корпус
чистовая
Отделка
2.80 м
Потолки
ЖК «Ильинойс»
7 476 084 8 421 336
ВТБ, Альфа-Банк, Всероссийский банк развития регионов, СберБанк, Азиатско-Тихоокеанский Банк, Банк Санкт-Петербург, Совкомбанк, Россельхозбанк, Абсолют Банк, Металлинвестбанк, Примсоцбанк, ДОМ.РФ, Уралсиб, Промсвязьбанк, Севергазбанк, Московский Кредитный Банк, МТС Банк, Сургутнефтегазбанк
6.00%
Ставка
40.10%
Первый взнос
от 44 823 /мес.
Все варианты
Посмотреть все спецпредложения
1-комн. квартира 32,50 м2 7 953 387
Этаж 22/23
МО, ЖК «Ильинойс»
Красногорская
15 мин.
Строится
1-комн. квартира 32,80 м2 8 026 802
Этаж 22/23
МО, ЖК «Ильинойс»
Красногорская
15 мин.
Строится
Посмотреть 9 квартир в ЖК «Ильинойс»
2-комн. квартира 35,21 м2 8 721 657
Этаж 19/23
МО, ЖК «Ильинойс»
Красногорская
15 мин.
Строится
2-комн. квартира 35,41 м2 8 771 197
Этаж 22/23
МО, ЖК «Ильинойс»
Красногорская
15 мин.
Строится
2-комн. квартира 35,48 м2 10 200 350
Этаж 19/23
МО, ЖК «Ильинойс»
Красногорская
15 мин.
Строится
2-комн. квартира 36,94 м2 8 709 212
Этаж 16/23
МО, ЖК «Ильинойс»
Красногорская
15 мин.
Строится
Посмотреть 85 квартир в ЖК «Ильинойс»
3-комн. квартира 52,68 м2 11 948 523
Этаж 2/23 лоджия
МО, ЖК «Ильинойс»
Красногорская
15 мин.
Строится
3-комн. квартира 52,79 м2 12 393 594
Этаж 22/23 лоджия
МО, ЖК «Ильинойс»
Красногорская
15 мин.
Строится
3-комн. квартира 54,89 м2 12 449 780
Этаж 2/23 лоджия
МО, ЖК «Ильинойс»
Красногорская
15 мин.
Строится
3-комн. квартира 55,01 м2 12 914 787
Этаж 21/23 лоджия
МО, ЖК «Ильинойс»
Красногорская
15 мин.
Строится
Посмотреть 58 квартир в ЖК «Ильинойс»
Этаж 9/23
МО, ЖК «Ильинойс»
Красногорская
15 мин.
Строится
Этаж 9/23
МО, ЖК «Ильинойс»
Красногорская
15 мин.
Строится
студия 24,40 м2 7 476 084
Этаж 20/23
МО, ЖК «Ильинойс»
Красногорская
15 мин.
Строится
студия 25,98 м2 7 753 433
Этаж 23/24
МО, ЖК «Ильинойс»
Красногорская
15 мин.
Строится
Посмотреть 20 квартир в ЖК «Ильинойс»

Скидки и спецпредложения от застройщиков

ЖК «Ильинойс» на карте

Выгодные предложения на новостройки

Отзывы о ЖК «Ильинойс»

Самый полезный отзыв
О
29 сентября 2022
Оценка:
Способы покупки
Я на протяжении года живу в Красногорске, и влюбилась в этот город. Недавно увидела рекламу нового жилого комплекса Ильинойс, а так как мне бы хотелось приобрести квартиру на этапе застройки, это был отличный вариант для покупки. Оформила все быстро, в офисе продаж мне все объяснили и рассказали, жду срок сдачи))
Ответить
Полезный отзыв?
Самый новый отзыв
АП
08 ноября
Оценка:
Способы покупки
В ЖК «Ильинойс» меня зацепила деталь: «После 15 ноября планируется индексация, повышение на 2-10%». В сумме проект производит хорошее впечатление.
Ответить
Полезный отзыв?
Добавьте отзыв, заполнив личные данные, или сначала войдите на сайт, тогда информация будет автоматически взята из личного профиля.
Оценка*