Рейтинг@Mail.ru
Переверните экран
Новостройки Квартиры Ипотека Новостройки Москвы Новостройки Подмосковья Новостройки Новой Москвы Готовые новостройки Новостройки на карте Акции от застройщиков Коммерческие помещения Продавцы и застройщики Панорамы новостроек Видеообзор новостроек Экспертиза новостроек Экология Москвы и Подмосковья Студии 1-комнатные 2-комнатные 3-комнатные Квартиры на карте Ипотечный калькулятор Семейная ипотека Военная ипотека Банки и программы Медиа Новости недвижимости Мнение эксперта Аналитика рынка Покупателю Экспертиза новостроек Эксперты и авторы О проекте Контакты Реклама на сайте Vk Youtube Telegram Дзен Машиноместа Апартаменты #траншевая ипотека #рассрочка IT-ипотека Квартиры со скидками до 35% Видео 360° новостроек Субсидированная застройщиком Rutube Поиск дома в Москве Программа реновации в Москве Новостройки премиум-класса Новостройки бизнес-класса Рассрочка Траншевая ипотека Дома и коттеджи Коттеджные поселки в Новой Москве Готовые коттеджные поселки Строящиеся коттеджные поселки Коттеджные поселки в лесу Коттеджные поселки у водоема Коттеджные поселки в ипотеку ГАЛС Бизнес-центры Коттеджи Таунхаусы
Данная квартира является лидером продаж среди двухкомнатных квартир в ЖК «Ильинойс» по данным Росреестра
Данное предложение на 10.11.2025 неактуально. Пожалуйста, ознакомьтесь с другими похожими предложениями в ЖК «Ильинойс» .
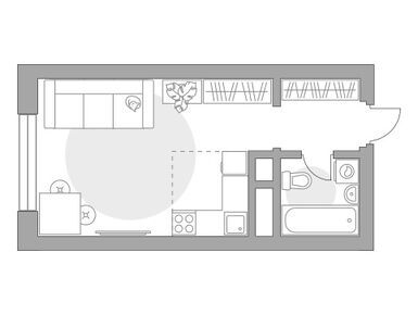
2-комн. квартира, 36.94 м2, 3 этаж
Срок сдачи 3 квартал 2028 года
8 683 869 
9 562 013
235 080 2
обновлено 9 ноября

Описание 2-комн. квартиры

Новостройка
Срок ГК
3 квартал 2028 года
Стадия строительства
котлован/фундамент
Общая площадь
36.94 м2
Жилая площадь
11.79 м2
Площадь кухни
16.81 м2
Этаж
3 / 22
Отделка
нет
Грузовой лифт
есть

Расположение 2-комн. квартиры

Станция МЦД
Дом
3
Адрес
ЖК «Ильинойс», корп. 3, секция 7

Способы покупки

Особенности

Продается двухкомнатная квартира в новостройке ЖК «Ильинойс» по адресу Московская область, Красногорск городской округ, Красногорск, ЖК «Ильинойс», корп. 3. Общая площадь квартиры - 36.94 кв. м. Тип проекта, по которому построен дом — Монолитно-кирпичный, компания-застройщик — ГК «Гранель», ООО СЗ ОФЕРТА. Стоимость квартиры — 8 683 869 руб. Способы оплаты можно уточнить у продавца. Срок сдачи — 3 квартал 2028. Более подробная информация по телефону.
ГК «Гранель»
ГК «Гранель»
Сданных 16
|
Строящихся 15
Выбирайте квартиру в ЖК «Ильинойс» по ценам от застройщика

Похожие квартиры в ЖК «Ильинойс»

11 этаж
из 22 3 квартал 2028
Московская область, Красногорск городской округ
Красногорская
15 мин.
3
Корпус
нет
Отделка
2.80 м
Потолки
ЖК «Ильинойс»
8 598 968 9 686 194
ВТБ, Альфа-Банк, Всероссийский банк развития регионов, СберБанк, Азиатско-Тихоокеанский Банк, Банк Санкт-Петербург, Совкомбанк, Абсолют Банк, Металлинвестбанк, Примсоцбанк, Россельхозбанк, ДОМ.РФ, Уралсиб, Промсвязьбанк, Севергазбанк, Московский Кредитный Банк, МТС Банк, Сургутнефтегазбанк
6.00%
Ставка
40.10%
Первый взнос
от 51 555 /мес.
Все варианты
22 этаж
из 22 3 квартал 2028
Московская область, Красногорск городской округ
Красногорская
15 мин.
3
Корпус
нет
Отделка
2.80 м
Потолки
ЖК «Ильинойс»
8 709 212 9 810 376
ВТБ, Альфа-Банк, Всероссийский банк развития регионов, СберБанк, Азиатско-Тихоокеанский Банк, Банк Санкт-Петербург, Совкомбанк, Абсолют Банк, Металлинвестбанк, Примсоцбанк, Россельхозбанк, ДОМ.РФ, Уралсиб, Промсвязьбанк, Севергазбанк, Московский Кредитный Банк, МТС Банк, Сургутнефтегазбанк
6.00%
Ставка
40.10%
Первый взнос
от 52 216 /мес.
Все варианты
19 этаж
из 22 3 квартал 2028
Московская область, Красногорск городской округ
Красногорская
15 мин.
3
Корпус
нет
Отделка
2.80 м
Потолки
ЖК «Ильинойс»
8 709 212 9 810 376
ВТБ, Альфа-Банк, Всероссийский банк развития регионов, СберБанк, Азиатско-Тихоокеанский Банк, Банк Санкт-Петербург, Совкомбанк, Абсолют Банк, Металлинвестбанк, Примсоцбанк, Россельхозбанк, ДОМ.РФ, Уралсиб, Промсвязьбанк, Севергазбанк, Московский Кредитный Банк, МТС Банк, Сургутнефтегазбанк
6.00%
Ставка
40.10%
Первый взнос
от 52 216 /мес.
Все варианты
Посмотреть все спецпредложения
1-комн. квартира 32,50 м2 7 791 732
Этаж 22/23
МО, ЖК «Ильинойс»
Красногорская
15 мин.
Строится
1-комн. квартира 32,80 м2 9 234 086
Этаж 12/23
МО, ЖК «Ильинойс»
Красногорская
15 мин.
Строится
Посмотреть 9 квартир в ЖК «Ильинойс»
2-комн. квартира 35,21 м2 8 546 523
Этаж 23
МО, ЖК «Ильинойс»
Красногорская
15 мин.
Строится
Этаж 13/23
МО, ЖК «Ильинойс»
Красногорская
15 мин.
Строится
2-комн. квартира 35,48 м2 10 023 873
Этаж 22/23
МО, ЖК «Ильинойс»
Красногорская
15 мин.
Строится
2-комн. квартира 36,94 м2 8 709 212
Этаж 22/23
МО, ЖК «Ильинойс»
Красногорская
15 мин.
Строится
Посмотреть 41 квартира в ЖК «Ильинойс»
3-комн. квартира 52,79 м2 12 393 594
Этаж 22/23 лоджия
МО, ЖК «Ильинойс»
Красногорская
15 мин.
Строится
3-комн. квартира 54,89 м2 12 449 780
Этаж 2/23 лоджия
МО, ЖК «Ильинойс»
Красногорская
15 мин.
Строится
3-комн. квартира 55,01 м2 12 914 787
Этаж 21/23 лоджия
МО, ЖК «Ильинойс»
Красногорская
15 мин.
Строится
3-комн. квартира 56,35 м2 15 191 366
Этаж 2/23 лоджия
МО, ЖК «Ильинойс»
Красногорская
15 мин.
Строится
Посмотреть 35 квартир в ЖК «Ильинойс»
студия 24,40 м2 7 354 719
Этаж 22/23
МО, ЖК «Ильинойс»
Красногорская
15 мин.
Строится
студия 25,98 м2 7 753 433
Этаж 23/24
МО, ЖК «Ильинойс»
Красногорская
15 мин.
Строится
Посмотреть 5 квартир в ЖК «Ильинойс»

Скидки и спецпредложения от застройщиков

ЖК «Ильинойс» на карте

Выгодные предложения на новостройки

Отзывы о ЖК «Ильинойс»

Самый полезный отзыв
О
29 сентября 2022
Оценка:
Способы покупки
Я на протяжении года живу в Красногорске, и влюбилась в этот город. Недавно увидела рекламу нового жилого комплекса Ильинойс, а так как мне бы хотелось приобрести квартиру на этапе застройки, это был отличный вариант для покупки. Оформила все быстро, в офисе продаж мне все объяснили и рассказали, жду срок сдачи))
Ответить
Полезный отзыв?
Самый новый отзыв
АП
08 ноября
Оценка:
Способы покупки
В ЖК «Ильинойс» меня зацепила деталь: «После 15 ноября планируется индексация, повышение на 2-10%». В сумме проект производит хорошее впечатление.
Ответить
Полезный отзыв?
Добавьте отзыв, заполнив личные данные, или сначала войдите на сайт, тогда информация будет автоматически взята из личного профиля.
Оценка*